Bildegalleri

Velkommen til Plahteskogen 15!
Spektakulær eiendom - Unike Plahteskogen 15 til salgs!
Nøkkelinfo
- Boligtype
- Enebolig
- Eieform
- Eier (Selveier)
- Soverom
- 6
- Primærrom
- 518 m²
- Bruksareal
- 621 m²
- Byggeår
- 2012
- Energimerking
- B - Mørkegrønn
- Tomteareal
- 1 848 m² (eiet)
- Boligselgerforsikring
- Ja
Fasiliteter
Om boligen
Et hus av de sjeldne - Meget påkostet og en gjennomført villa hvor ingen ting er overlatt til tilfeldighetene. Utvendig består huset i hovdtrekk av Cortèn stålplater, Sedertre, glass og betong. Huset ble tegnet av Ole Wiig og bygget i 2012 av Jensen Bygg Team.
- Beliggende på et høydedrag med sol fra morgen til kveld
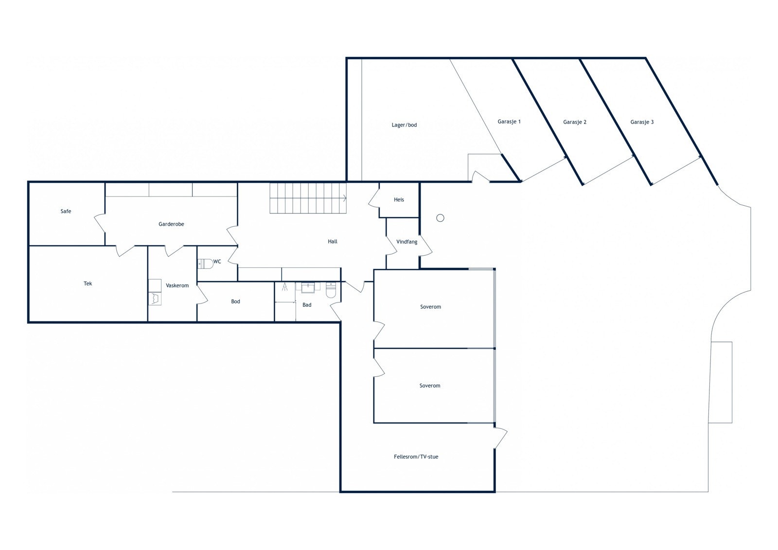
- Innholdsrik villa med bla. 3 stuer, spisestue, 6 soverom, 4 bad, trimrom etc
- Flere solrike uteplasser
- Lettstelt hage utformet av Ole Ludvig Akre
- Vannbåren varme i tilnærmet alle gulv og trapper
- 18 Solcellepanel etablert i 2017 fra Otovo
- Moderne gasspeis i spisestue - Åpen peis i stue med Oppdalskifer
- Innvenndig personheis fra bakkeplan til 3.etg
- All belysninger er nøye plassert av Consept Design
- 3 garasjer + rom for oppbevaring av sportsutstyr
- Plassbygget innredninger fra Gjeving og Rival
Salgsoppgaven beskriver vesentlig og lovpålagt informasjon om eiendommen
Se komplett salgsoppgaveNyttige lenker
Nærområdet
Sem & Johnsen
Prisstatistikk
Plahteskogen 15
på annonsen
prisantydning per kvadratmeter
Prisfordeling
Pris per m² ligger 36 386 kr over snittet for eneboliger i Bærum.
Grafen viser antall eneboliger solgt i Bærum siste året fordelt på pris per m² - totalt 455 eneboliger
Antall boliger
Kvadratmeterpris tilsvarer prisantydning pluss fellesgjeld per kvadratmeter (p-rom eller BRA-i). Prisene i grafen er avrundet til nærmeste 1000 kr.
Annonsene kan være mangelfulle i forhold til lovpålagt opplysningsplikt. Før bindende avtale inngås oppfordres interessenter til å innhente komplett informasjon fra meglerforetaket, selger eller utleier.















































