Bildegalleri

Fjellgata 30 A i populære Kavaleren sameie - velkommen til visning!
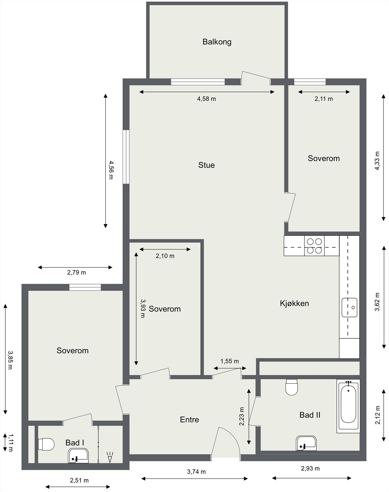
Rodeløkka: 4-roms hjørneleil. (2018) - Solrik balkong, to bad og garasjeplass med elbillader- Utsikt - Fine kvaliteter
Nøkkelinfo
- Boligtype
- Leilighet
- Eieform
- Eier (Selveier)
- Soverom
- 3
- Primærrom
- 90 m²
- Bruksareal
- 90 m²
- Etasje
- 5
- Byggeår
- 2018
- Energimerking
- C - Mørkegrønn
- Rom
- 4
- Tomteareal
- 4 258 m² (eiet)
Fasiliteter
Om boligen
- Påkostede løsninger i leiligheten
- Flott utsikt fra stue/kjøkken
- Stort, delikat hovedbad med badekar
- Ensuite bad med dusj
- Vestvendt balkong på cirka 9 m²
- Heis ned til garasjeanlegg
- Garasjeplass med elbillader
- Solrik felles takterrasse med rå utsikt
- Kjellerbod på cirka 9 m²
- Lave felleskostnader: Varmtvann/oppvarming og TV/internett inkl.
Velkommen til visning!
Salgsoppgaven beskriver vesentlig og lovpålagt informasjon om eiendommen
Se komplett salgsoppgaveNyttige lenker
Nærområdet
Nordvik Røa
Prisstatistikk
Fjellgata 30A
på annonsen
prisantydning per kvadratmeter
Prisfordeling
Pris per m² ligger 3 778 kr under snittet for leiligheter i Grünerløkka - Sofienberg.
Grafen viser antall leiligheter solgt i Grünerløkka - Sofienberg siste året fordelt på pris per m² - totalt 2 430 leiligheter
Antall boliger
Kvadratmeterpris tilsvarer prisantydning pluss fellesgjeld per kvadratmeter (p-rom eller BRA-i). Prisene i grafen er avrundet til nærmeste 1000 kr.
Annonseinformasjon
| FINN-kode | 251793925 |
|---|---|
| Sist endret | 27. mars 2022 10:49 |
| Referanse | 63b2d50f-79c5-44d8-8874-ceea76256de9 |
Annonsene kan være mangelfulle i forhold til lovpålagt opplysningsplikt. Før bindende avtale inngås oppfordres interessenter til å innhente komplett informasjon fra meglerforetaket, selger eller utleier.














































