Bildegalleri
Utsikten
5
Prosjektets status
Planlegging
2022
Salgsstart
2022
Byggestart
2023
Overtakelse
2024
Nøkkelinfo
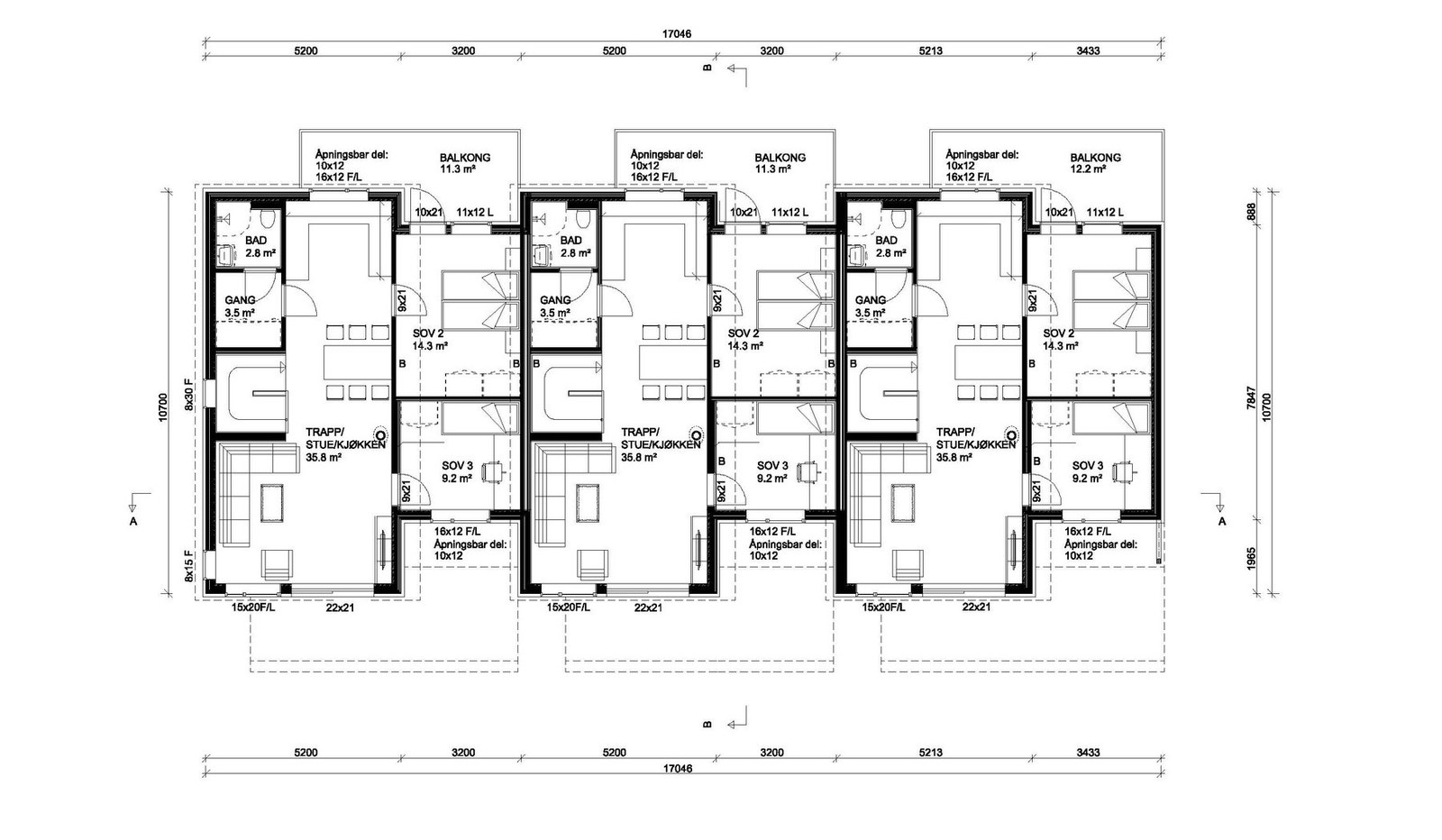
- Boligtype
- Rekkehus
- Soverom
- 3
- Primærrom
- 114 m²
- Bruksareal
- 121 m²
Beskrivelse
Innhold
Takstmannen har målt opp boligen og har oppgitt de arealene som fremkommer av denne oppgave. Arealene er ikke kontrollert av megler.
Standard
Boligen fremstår som .... (husk balansert informasjon )
Entre
Kjøkken
Stue
Soverom
Bad
Nedenfor gjengis en kort oppsummering der den bygningssakkkyndige har beskrevet avvik ved boligen som har fått tilstandsgrad 2 (TG 2) eller 3 (TG 3).
TG2:
TG3:
Deler av informasjonen i dette avsnittet er hentet fra tilstandsrapporten. Opplistingen over er ikke uttømmende og du oppfordres til å lese og sette deg grundig inn i alt salgsmateriell.
Oppvarming
Vannbåren varme i gulv i alle rom unntatt soverom og bod med termostater til hvert rom for styring, samt balansert ventilasjon m/varmegjenvinning som sikrer et godt inneklima og bomiljø.
Ildsted kan leveres som tilvalg.
Adkomst
For detaljert beskrivelse fra din posisjon kan kart til høyre i nettannonsen benyttes.
Parkeringsforhold
Lading av El-bil/Hybrid:
Megler har ikke undersøkt om det er tilrettelagt for lading av El-biler og Hybrider i borettslaget/sameiet. Hvorvidt det er mulighet for slike anlegg eller installasjoner må kjøper selv undersøke.
Diverse
Utdrag fra selgers egenerklæring:
Det oppfordres til å lese hele rapporten og spesielt punkter med TG 2 og TG 3. Bygningsdeler eller forhold med TG 2 kan gjelde slitasje eller skader, kort gjenværende forventet levetid eller andre forhold som er beskrevet i eierskifterapporten på gjeldende bygningsdel.
Eventuelle forhold/mangler med TG 3 kan være ulovlige
forhold/mangler eller bygningsdeler som er så dårlige at de må forventes byttet i løpet av kort tid eller umiddelbart.
Hvitevarer / tilbehør
Integrerte hvitevarer medfølger i handelen. Frittstående hvitevarer og brunevarer medfølger ikke i salget med mindre det tydelig fremgår av salgsoppgaven. Dette avviker fra bransjens tilbehørsliste.
Fellesgjeld og lånebetingelser
Forkjøpsrett
Andelseier(e) kan kun eie en andel. Andelseier må selv bebo leiligheten. Kun fysiske personer kan eie andel. Stat, kommune, fylkeskommune m.fl. kan likevel eie andel eller andeler opp til 10% av andelene i borettslaget, der det er fem eller flere andeler.
Det kan være fastsatt i vedtektene at stat, kommune, fylkeskommune, boligbyggelag, institusjon eller sammenslutning med samfunnsnyttig formål og dessuten arbeidsgiver som skal leie ut boligen til sine ansatte, kan eie opp til 20% av andelene i tillegg. Kjøper av andelen må godkjennes av borettslagets styre for at ervervet skal bli gyldig. Kjøper bærer selv risikoen for at godkjenning blir gitt og må
videreselge boligen for egen regning og risiko dersom styret ikke godkjenner kjøper som ny andelseier.
Boligkjøperforsikring
EiendomsMegler 1 formidler Boligkjøperforsikring fra HELP Forsikring AS. Det er en rettshjelpsforsikring som gir trygghet og profesjonell juridisk hjelp dersom det oppdages uventede feil eller mangler de neste fem årene. Du kan ta kontakt med megler for å få informasjon om boligkjøperforsikring eller lese mer på help.no.
Forsikringen tilbys kun til privatpersoner som kjøper eiendom til eget eller nærmeste families bruk, og det er en forutsetning at kjøpsavtalen reguleres av avhendingsloven. Ved kjøp av landbrukseiendom/ småbruk, er det kun forhold tilknyttet til våningshuset som omfattes av forsikringen. For nærmere detaljer henvises det til forsikringsvilkårene. Megler mottar tegningsprovisjon fra HELP.
Nyttige lenker
Nærområdet
EiendomsMegler 1 Harstad
Annonseinformasjon
| FINN-kode | 251759578 |
|---|---|
| Sist endret | 01. sep. 2025 10:30 |
| Referanse | 32210018 |
Annonsene kan være mangelfulle i forhold til lovpålagt opplysningsplikt. Før bindende avtale inngås oppfordres interessenter til å innhente komplett informasjon fra meglerforetaket, selger eller utleier.






