Bildegalleri

Nordvik avd. Frogner har gleden av å presentere Neuberggata 1B!
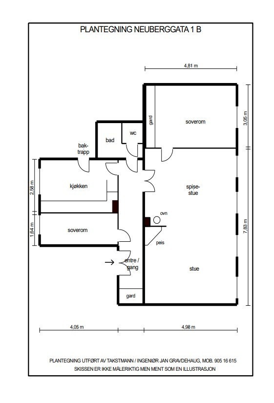
Stor og gjennomgående 3/4-roms selveier med oppussingsbehov. God takhøyde. Store vinduer. "stue på stue". Peis.
Nøkkelinfo
- Boligtype
- Leilighet
- Eieform
- Eier (Selveier)
- Soverom
- 2
- Primærrom
- 92 m²
- Bruksareal
- 92 m²
- Etasje
- 4
- Byggeår
- 1896
- Energimerking
- G - Rød
- Rom
- 3
- Tomteareal
- 789 m² (eiet)
Fasiliteter
Om boligen
Leiligheten har en generøs takhøyde, store vindusflater som bidrar til en god atmosfære og inneholder entré/gang, bad, wc, kjøkken, stue - spisestue og 2 soverom.
Her bor du med umiddelbar nærhet til alt av severdigheter og offentlig kommunikasjon.
Verdt å merke seg:
- Peis
- God takhøyde
- Veldrevet sameie
- Rikelig med bodplass
- Umiddelbar nærhet til flere parker
- Vinduer med 2-lags isolerglass fra 2000
- Offentlig kommunikasjon i kort gangavstand
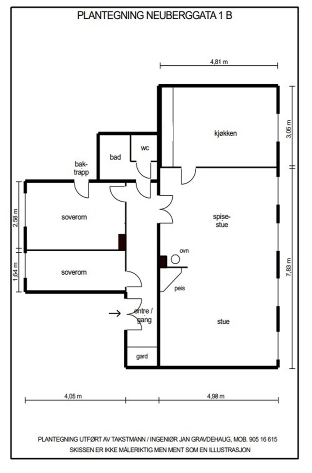
- Mulighet for å flytte kjøkken ut i stue. Se alternativ planløsning.
Salgsoppgaven beskriver vesentlig og lovpålagt informasjon om eiendommen
Se komplett salgsoppgaveNyttige lenker
Nærområdet
Nordvik Frogner
Prisstatistikk
Neuberggata 1B
på annonsen
prisantydning per kvadratmeter
Prisfordeling
Pris per m² ligger 33 943 kr under snittet for leiligheter i Uranienborg - Majorstuen.
Grafen viser antall leiligheter solgt i Uranienborg - Majorstuen siste året fordelt på pris per m² - totalt 1 461 leiligheter
Antall boliger
Kvadratmeterpris tilsvarer prisantydning pluss fellesgjeld per kvadratmeter (p-rom eller BRA-i). Prisene i grafen er avrundet til nærmeste 1000 kr.
Annonseinformasjon
| FINN-kode | 251562262 |
|---|---|
| Sist endret | 01. apr. 2022 10:14 |
| Referanse | c618f138-0af2-441a-86e0-6b8f3db24ef3 |
Annonsene kan være mangelfulle i forhold til lovpålagt opplysningsplikt. Før bindende avtale inngås oppfordres interessenter til å innhente komplett informasjon fra meglerforetaket, selger eller utleier.

































