Bildegalleri

Nordvik avd. Frogner har gleden av å presentere St. Jørgens vei 20.
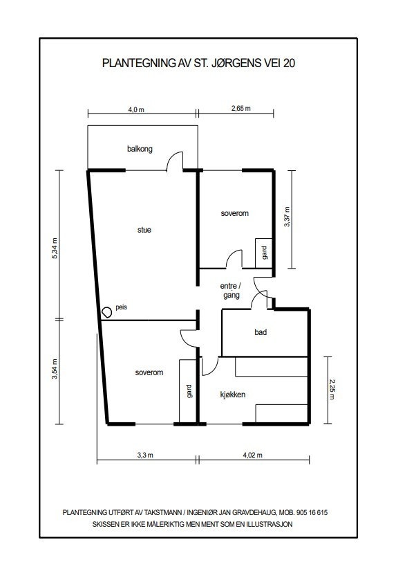
Lys, pen og gjennomgående 3-roms med solrik balkong og flott beliggenhet. Peis. Utsikt. Grønt og frodig. Ingen dok.avg!
Nøkkelinfo
- Boligtype
- Leilighet
- Eieform
- Andel
- Soverom
- 2
- Primærrom
- 65 m²
- Bruksareal
- 65 m²
- Etasje
- 3
- Byggeår
- 1955
- Energimerking
- G - Rød
- Rom
- 3
- Tomteareal
- 61 435 m² (eiet)
Fasiliteter
Om boligen
Enkel adkomst til både T-bane og buss. Store grønne friområder rett utenfor døren. Meget hyggelig bomiljø og godt naboskap.
Leiligheten disponerer borettslagets fellesarealer opparbeidet med lekeplass, plantekasse, gangveier, flaggplass, gress, trær og busker. Mulighet for leie av parkeringsplass og forsamlingshus.
Kort oppsummert:
- Peis
- Balkong på ca. 8 m²
- God bodplass med 3 boder
- Svært usjenert med lite innsyn
- Nye vinduer og balkongdører 2017
- Rikelig med plass til garderobeskap i begge soverom
- Populær beliggenhet midt på feltet, rett ved grøntarealer og nært kollektivt
Salgsoppgaven beskriver vesentlig og lovpålagt informasjon om eiendommen
Se komplett salgsoppgaveNyttige lenker
Nærområdet
Nordvik Frogner
Prisstatistikk
St. Jørgens vei 20
på annonsen
prisantydning per kvadratmeter
Prisfordeling
Pris per m² ligger 19 339 kr under snittet for leiligheter i Helsfyr - Sinsen.
Grafen viser antall leiligheter solgt i Helsfyr - Sinsen siste året fordelt på pris per m² - totalt 1 697 leiligheter
Antall boliger
Kvadratmeterpris tilsvarer prisantydning pluss fellesgjeld per kvadratmeter (p-rom eller BRA-i). Prisene i grafen er avrundet til nærmeste 1000 kr.
Annonseinformasjon
| FINN-kode | 250894380 |
|---|---|
| Sist endret | 28. mars 2022 12:19 |
| Referanse | b4a291d8-8886-4e9a-81f8-3b89698ed9e6 |
Annonsene kan være mangelfulle i forhold til lovpålagt opplysningsplikt. Før bindende avtale inngås oppfordres interessenter til å innhente komplett informasjon fra meglerforetaket, selger eller utleier.






































