Bildegalleri

Inaktiv
Hytte med stort anneks, i praksis to hytter. Flott utsikt og gode solforhold!
Prisantydning4 750 000 kr
- Omkostninger
- 120 150 kr
- Totalpris
- 4 870 150 kr
- Kommunale avg.
- 4 388 kr per år
- Formuesverdi
- 241 755 kr
Nøkkelinfo
- Beliggenhet
- På fjellet
- Boligtype
- Hytte
- Eieform
- Eier (Selveier)
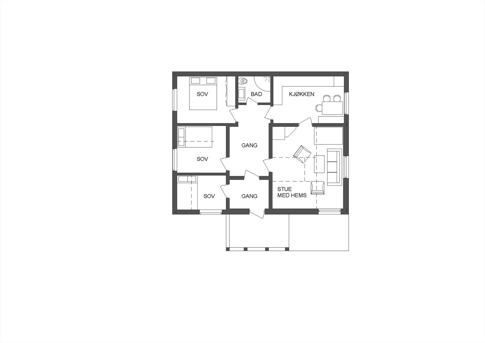
- Primærrom
- 111 m²
- Bruksareal
- 139 m²
- Tomteareal
- 2 700 m² (eiet)
- Byggeår
- 1895
- Soverom
- 4
- Rom
- 6
- Overtakelse
- Etter nærmere avtale med selger. Vær vennlig å angi ønsket overtagelsesdato i vedlagte budskjema.
Fasiliteter
Alpinanlegg
Barnevennlig
Bilvei frem
Peis/Ildsted
Rolig
Utsikt
Innlagt strøm
Turterreng
Visning
Ta kontakt for å avtale visning.Husk å lese komplett salgsoppgave før visning. Bestill komplett, utskriftsvennlig salgsoppgave.
VisningspåmeldingOm boligen
Eiendommen ligger sørvendt med fin utsikt og gode solforhold. Skjermet fra naboer og med fine uteplasser hvor du kan nyte både morgensolen og en afterski i solveggen. Hytten ligger ca. 500 m fra Halsteinsgård skisenter, og her er det bare å rusle bort på morgenen og stå på skiene ned til ytterdøren om ettermiddagen. For langrenn kan man starte turen fra hytta, og gå ned til Ustedalsfjorden. Det er gangavstand til Geilo sentrum med sine fasiliteter.
Hytta har anneks som gir svært fleksibelt bruk, for to familier sammen eller hver for seg, her er også mulighet for utleie.
Gamlestua i hytta er helt unik, da dette er ei original Hallingstue . Her er du plutselig over 120 år tilbake i tid, på en svært sjarmerende måte. Til tross for dette har hytta moderne fasiliteter, som bad og kjøkken.
Hytta har anneks som gir svært fleksibelt bruk, for to familier sammen eller hver for seg, her er også mulighet for utleie.
Gamlestua i hytta er helt unik, da dette er ei original Hallingstue . Her er du plutselig over 120 år tilbake i tid, på en svært sjarmerende måte. Til tross for dette har hytta moderne fasiliteter, som bad og kjøkken.
NB: Knappen for å vise hele beskrivelsen har kun en visuell effekt.
NB: Knappen for å vise hele beskrivelsen har kun en visuell effekt.
Salgsoppgaven beskriver vesentlig og lovpålagt informasjon om eiendommen
Se komplett salgsoppgaveNyttige lenker
Nærområdet
EIE Fjellmegleren Geilo
Annonseinformasjon
| FINN-kode | 250660499 |
|---|---|
| Sist endret | 02. des. 2022 08:55 |
| Referanse | 1530220047 |
Annonsene kan være mangelfulle i forhold til lovpålagt opplysningsplikt. Før bindende avtale inngås oppfordres interessenter til å innhente komplett informasjon fra meglerforetaket, selger eller utleier.
























































