Bildegalleri

Velkommen til Marstrandgata 12!
Innholdsrik toppetasjes townhouse-leilighet over 2 plan | Stor, solrik balkong | Garasjeplass m/lader | Utsikt | Heis
Nøkkelinfo
- Boligtype
- Leilighet
- Eieform
- Eier (Selveier)
- Soverom
- 2
- Primærrom
- 87 m²
- Bruksareal
- 87 m²
- Etasje
- 6
- Byggeår
- 2014
- Energimerking
- C - Mørkegrønn
- Rom
- 3
- Tomteareal
- 746 m² (eiet)
Fasiliteter
Om boligen
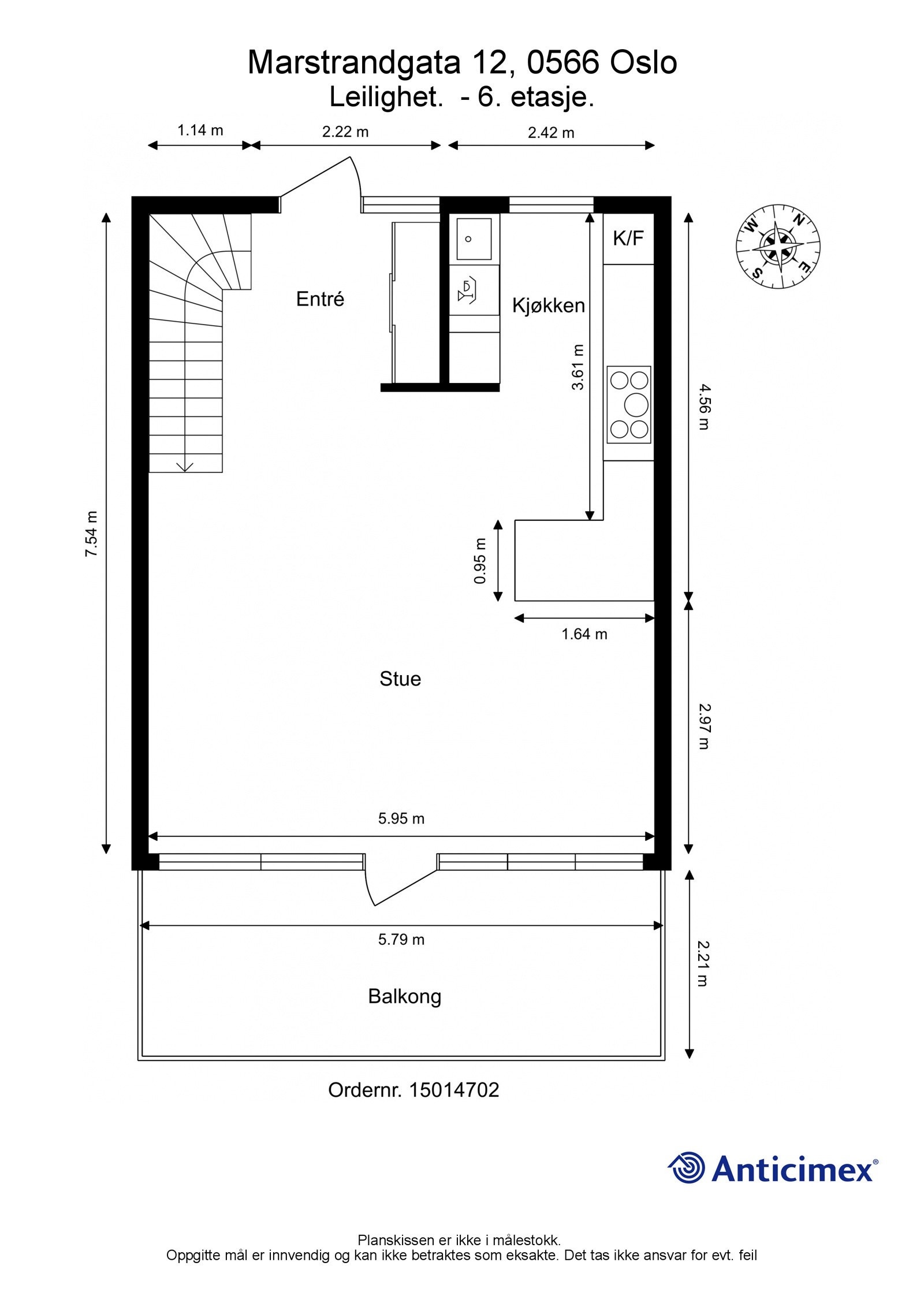
Velkommen til denne unike, moderne og innholdsrike 3-roms townhouse-leilighetrn som strekker seg over to plan, 6. og 7. etasje. En kombinasjon av gjennomgående og romslig planløsning, sammen med store vindusflater som slipper inn rikelig med naturlig lys, gir denne leiligheten en herlig romfølelse og atmosfære. Bygget er fra 2014 og holder en generelt god standard.
Her bor du i et rolig og familievennlig område på Rodeløkka/Grünerløkka, med umiddelbar nærhet til alle fasiliteter!
- Stor og solrik balkong med lite innsyn
- Lys og romslig stue med god takhøyde
- Flott kjøkken fra Drømmekjøkken
- Pent flislagt bad
- To soverom
- Romslig gang/trapperom
- Kjellerbod på 8 kvm
- Egen inngang
- Garasjeplass med lader og heisadkomst
- Balansert ventilasjon
- Akonto fyring og varmtvann inkl.
- Fibernett fra NextGenTel inkl.
- Heis
Salgsoppgaven beskriver vesentlig og lovpålagt informasjon om eiendommen
Se komplett salgsoppgaveNyttige lenker
Nærområdet
Schala & Partners Carl Berner
Prisstatistikk
Marstrandgata 12
på annonsen
prisantydning per kvadratmeter
Prisfordeling
Pris per m² ligger 7 299 kr under snittet for leiligheter i Grünerløkka - Sofienberg.
Grafen viser antall leiligheter solgt i Grünerløkka - Sofienberg siste året fordelt på pris per m² - totalt 2 449 leiligheter
Antall boliger
Kvadratmeterpris tilsvarer prisantydning pluss fellesgjeld per kvadratmeter (p-rom eller BRA-i). Prisene i grafen er avrundet til nærmeste 1000 kr.
Annonseinformasjon
| FINN-kode | 249798486 |
|---|---|
| Sist endret | 16. mars 2023 12:14 |
| Referanse | 17220045 |
Annonsene kan være mangelfulle i forhold til lovpålagt opplysningsplikt. Før bindende avtale inngås oppfordres interessenter til å innhente komplett informasjon fra meglerforetaket, selger eller utleier.
















































