Bildegalleri

Romslig hytte, 4 sov. og 2 bad til fastpris i skieldoradoet Oppdal | Innflytningsklar feb. 23.Ta kontakt for visning |T1
- Omkostninger
- 60 012 kr
- Totalpris
- 6 610 012 kr
Nøkkelinfo
- Beliggenhet
- På fjellet
- Boligtype
- Hytte
- Eieform
- Eier (Selveier)
- Tomt
- Eiet
- Byggeår
- 2025
- Soverom
- 4
Fasiliteter
Visning
Ta kontakt for å avtale visning.Om eiendommen
Beliggenhet
Oppdal og Vangslia er rett i nærheten av det fineste høyfjellet kan by på, med kun 2 timers vakker kjøretur fra Trondheim er veien behagelig kort når fjellet kaller. Og Molde og Kristiansund ligger bare 3 små timer unna.
Vil du koble helt av, er jernbane et behagelig alternativ fra Trondheim. Togturen gjennom praktfulle fjellandskap er verdt reisen alene, og fra Oppdal stasjon ligger Vangslia kun 10 små minutter unna. Før du aner ordet av det, står du på hytteterrassen og ser fjellheimen glitre i det fjerne. Velkommen til eventyret, velkommen til Vangslia og Oppdal.
Adkomst/Tomteforhold
Fra Oppdal sentrum, kjør vestover på R70 i ca. 2,5 km. Ta så til høyre opp mot Vangslia skisenter og ta så til høyre mot Vangslia Fjellandsby etter ca. 1 km. Det vil bli skiltet i regi av EiendomsMegler 1 ved fellesvisning.
Generelt
Rundt Oppdal finner du nær sagt uendelige skimuligheter. Her kan du ski inn/ut i flere nedfarter og eget barneområde.
Med høydeforskjell på over 700 meter fordelt på 18 heiser, finner du flotte nedfarter for alle ferdighetsnivåer. De lange bakkene er gøyale og varierte, med magisk utsikt over fjellheimen. Her er også en rå terrengpark med luftige big jumps. Når beina blir slitne, finner du nye krefter i den lune caféen midt i anlegget. Foretrekker du langrenn, kan du spenne på deg skiene og gå milevis i oppkjørte vidder med fantastisk utsikt som belønning
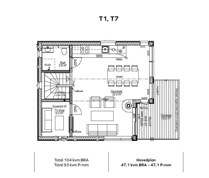
Tinde Chalet er effektive hytter med stue/kjøkken, 4 soverom, 2 bad, vaskerom, utebod, samt en terrasse i 2. etasje hvor man kan nyte solen og Oppdals beste utsikt. Her er det foretatt gode valg av materialer og farger, og vil fremstå som en moderne hytte.
Leveranse
• Innvendig farge Skigardsgrå på vegger, himlinger, listverk og utforinger
• Beiset dragere i stue i samme farge som himling
• Ferdig grunnet ytterkledning farge brunsort
• Eik Granite Lively parkett fra Kährs
• Mørke grå ytterdør og boddør
• Mørke grå kjøkkeninnredning
• Svarte kontaktpunkt på el
• Mørke grå vindussprosser
• Grå baderomsinnredning
• Mørke grå innerdører
• Integrerte hvitevarer
• Torv på tak
Tilleggskostnader i forbindelse med tomtekjøp:
Dokumentavgift på skjøte til staten (2,5 %) kr. 58 750,-
Tinglysingsgebyr for skjøte til staten kr. 545,-
Tinglysingsgebyr for pantedokument kr. 545,-
Panteattest kr. 172
Vei, vann og kloakk
Kjøper plikter selv å sørge for tilknytning til vei, vann og avløp. Alle utgifter i forbindelse med tilknytningsavgifter som må betales for å gjøre tomten byggeklar er ikke inkludert i kjøpesummen og må betales av kjøper.
Selger fraskriver seg ansvar for grunnens beskaffenhet.
Veilag/hytteforening er etablert og har en årlig kostnad på kr. 4500,- (bestemmes årlig av årsmøtet). Kostnader for brøyting av gårdsplass avtales direkte med brøyter.
Ved kjøp av hytte vil det skrives 3 kontrakter. En kontrakt for selve hytta med Tinde Hytter AS, en kontrakt for graving og grunnmur med Tradisjonsmur AS og en kontrakt på tomt med Eiendomsmegler1 V/ Per Hårstad.
Ta kontakt med megler for komplett informasjon
Nærområdet
Tindehytter AS
Annonsene kan være mangelfulle i forhold til lovpålagt opplysningsplikt. Før bindende avtale inngås oppfordres interessenter til å innhente komplett informasjon fra meglerforetaket, selger eller utleier.













