Bildegalleri

Nordvik Bolig har gleden av å presentere Badstulistikken 2 - Bildet viser hytten under oppføring
Inaktiv
LYGNA/LYGNALIA
Hyttedrøm i Lygnalia - kun 1 time fra Oslo! God planløsning, moderne standard og idyllisk beliggenhet -
Prisantydning4 500 000 kr
- Omkostninger
- 27 842 kr
- Totalpris
- 4 527 842 kr
Nøkkelinfo
- Beliggenhet
- På fjellet
- Boligtype
- Hytte
- Eieform
- Eier (Selveier)
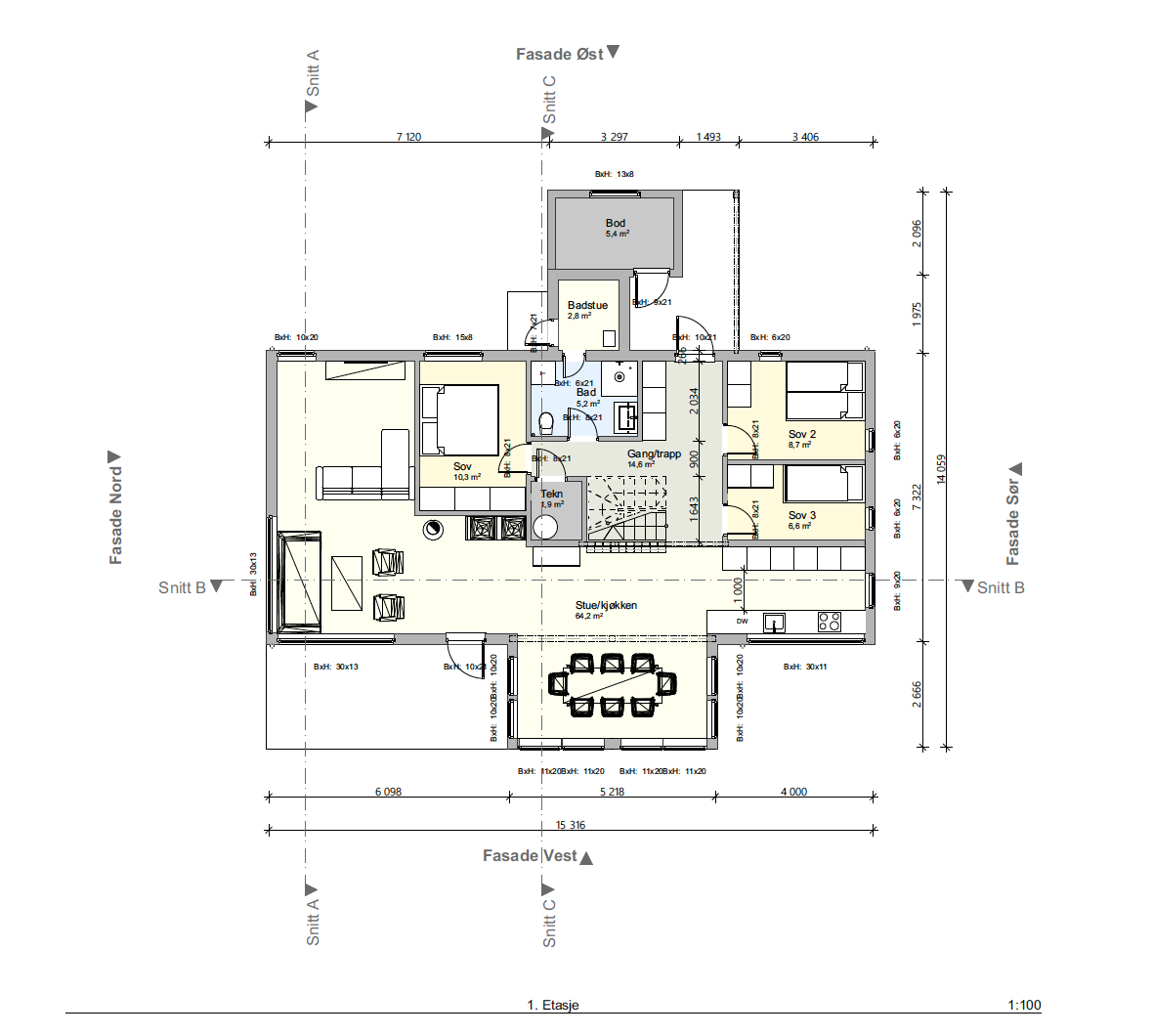
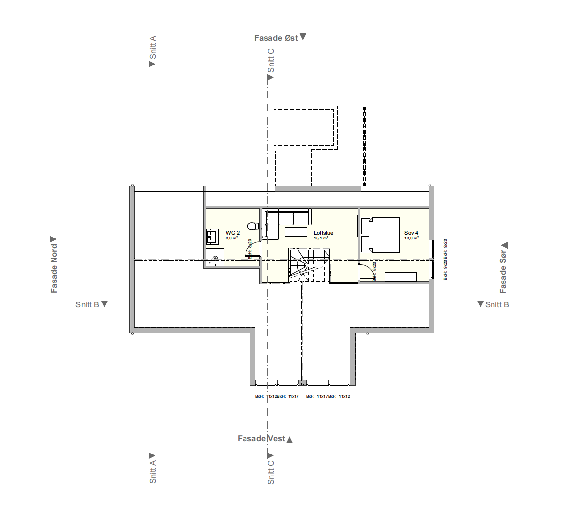
- Primærrom
- 155 m²
- Bruksareal
- 161 m²
- Tomteareal
- 1 122 m² (eiet)
- Byggeår
- 2022
- Soverom
- 4
- Rom
- 6
- Overtakelse
- Overtakelse er ved ferdigstillelse av hytten. Dette avklares med byggherre.
Fasiliteter
Alpinanlegg
Balkong/Terrasse
Barnevennlig
Bilvei frem
Garasje/P-plass
Peis/Ildsted
Rolig
Innlagt strøm
Offentlig vann/kloakk
Turterreng
Visning
Ta kontakt for å avtale visning.Husk å lese komplett salgsoppgave før visning. Bestill komplett, utskriftsvennlig salgsoppgave.
VisningspåmeldingOm boligen
Nordvik Bolig har gleden av å presentere hytte under oppføring (tomt for oppføring er nr. 539) i flotte Lygnalia. Tomten har en meget god og attraktiv beliggenhet i utsolgt hyttefelt.
Hytten blir oppført i moderne standard med smarte løsninger, og med bruk av store vindusflater som gjør at man opplever nær kontakt med naturen utenfor. Hytta har en meget god planløsning med oppholdsrom liggende i fronten av hyttas lengde. Store vindusflater som skaper en lys og hyggelig atmosfære og gir det følelsen av å få fjellet inn i stuen.
Lygna ligger 620 m.o.h. og, har flotte forhold for langrenn, skiturer, sykkelturer, bærplukking, fiske m.v. Lygna-området med alle sine aktiviteter og fasiliteter er et yndet utfartsted/reisemål sommer og vinter.
Ta kontakt med megler ved interesse!
Hytten blir oppført i moderne standard med smarte løsninger, og med bruk av store vindusflater som gjør at man opplever nær kontakt med naturen utenfor. Hytta har en meget god planløsning med oppholdsrom liggende i fronten av hyttas lengde. Store vindusflater som skaper en lys og hyggelig atmosfære og gir det følelsen av å få fjellet inn i stuen.
Lygna ligger 620 m.o.h. og, har flotte forhold for langrenn, skiturer, sykkelturer, bærplukking, fiske m.v. Lygna-området med alle sine aktiviteter og fasiliteter er et yndet utfartsted/reisemål sommer og vinter.
Ta kontakt med megler ved interesse!
NB: Knappen for å vise hele beskrivelsen har kun en visuell effekt.
NB: Knappen for å vise hele beskrivelsen har kun en visuell effekt.
Salgsoppgaven beskriver vesentlig og lovpålagt informasjon om eiendommen
Se komplett salgsoppgaveNyttige lenker
Nærområdet
Nordvik St.Hanshaugen
Annonseinformasjon
| FINN-kode | 249322639 |
|---|---|
| Sist endret | 31. aug. 2023 08:46 |
| Referanse | NOP5.21565 |
Annonsene kan være mangelfulle i forhold til lovpålagt opplysningsplikt. Før bindende avtale inngås oppfordres interessenter til å innhente komplett informasjon fra meglerforetaket, selger eller utleier.
































































