Bildegalleri

Velkommen til Låveveien 50! Boligen er presentert av Nordvik Frogner ved Maren Goderstad.
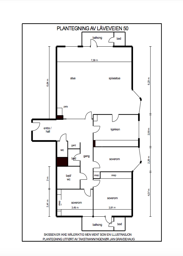
Lys 4(5)-roms endeleilighet i 7.etg med 2 balkonger. Nye våtrom 2021. V.V inkl. Heis. Parkering* Renoveringsbehov.
Nøkkelinfo
- Boligtype
- Leilighet
- Eieform
- Eier (Selveier)
- Soverom
- 3
- Primærrom
- 123 m²
- Bruksareal
- 125 m²
- Etasje
- 7
- Byggeår
- 1968
- Energimerking
- G - Rød
- Rom
- 4
- Tomteareal
- 6 763 m² (eiet)
Fasiliteter
Om boligen
Barnevennlig beliggenhet på Skøyenåsen/Oppsal. Her har du nærhet til Skøyenåsen senter, Østensjøvannet samt kort vei til sentrum med T-bane.
Kort oppsummert:
- Heis
- IN-ordning
- Soil og vannrør tatt høst 2021
- Parkeringsleie i regi av sameiet.
- Nærhet til Østensjøvannet og Østmarka
- 3 boder i leiligheten på til sammen 13 m²
- Varmtvann og tv/nett inkl i felleskostnadene
- Nordvestvendt balkong ut fra stue og sørøstvendt balkong ut fra soverom
Salgsoppgaven beskriver vesentlig og lovpålagt informasjon om eiendommen
Se komplett salgsoppgaveNyttige lenker
Nærområdet
Nordvik Frogner
Prisstatistikk
Låveveien 50
på annonsen
prisantydning per kvadratmeter
Prisfordeling
Pris per m² ligger 26 508 kr under snittet for leiligheter i Østensjø.
Grafen viser antall leiligheter solgt i Østensjø siste året fordelt på pris per m² - totalt 459 leiligheter
Antall boliger
Kvadratmeterpris tilsvarer prisantydning pluss fellesgjeld per kvadratmeter (p-rom eller BRA-i). Prisene i grafen er avrundet til nærmeste 1000 kr.
Annonseinformasjon
| FINN-kode | 248820584 |
|---|---|
| Sist endret | 04. mars 2022 13:44 |
| Referanse | 544faec8-2e23-4e28-bc3b-925b026f3e6c |
Annonsene kan være mangelfulle i forhold til lovpålagt opplysningsplikt. Før bindende avtale inngås oppfordres interessenter til å innhente komplett informasjon fra meglerforetaket, selger eller utleier.




























