Bildegalleri

Illustrasjon
Kvitfjell Vest- Segelstadseterlia 10 og 25, klare for overtagelse!
- Omkostninger
- 19 185 kr
- Totalpris
- 7 169 185 kr
Nøkkelinfo
- Beliggenhet
- På fjellet
- Boligtype
- Tomannsbolig
- Eieform
- Eier (Selveier)
- Bruksareal
- 127 m²
- Tomt
- Eiet
- Byggeår
- 2022
- Soverom
- 4
- Meter over havet
- 713
Fasiliteter
Visning
Ta kontakt for å avtale visning.Om eiendommen
Beliggenhet
Generelt
Kvitfjell vest AS, har for salg to vertikaldelte tomanns fritidsboliger.
Bygningene ligger sydvendt på Kvitfjells vestside med utsikt mot øst, syd og sydvest. Husene er plassert for å oppnå optimale sol- og utsiktsforhold.
Eiendommene får egen tilkomst, med fordeling ut til hver enhets inngangsparti. Bebyggelsen er tilpasset terrenget.
Det anordnes til sammen 4 biloppstillingsplasser på terreng. To av disse blir forberedt for elbil lader.
Bygningene, som er vertikaldelt, har to boenheter begge over to plan. Alle enheter har separat inngang.
Det etableres seksjonssameie med to eierseksjoner for hver av de to eiendommene, som er selveiet.
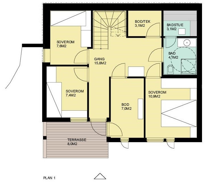
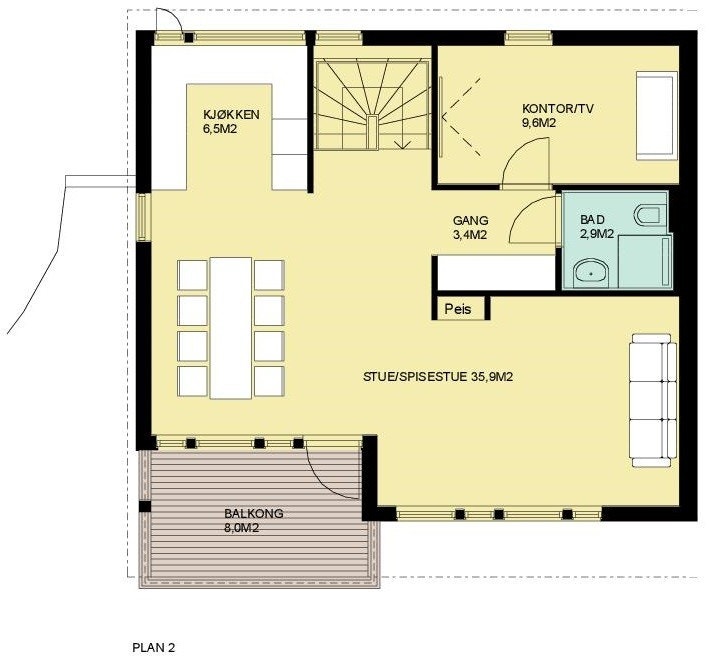
Segelstadseterlia 10: Inngang fra syd på plan 1, der det også er bod, 3 sov., 1 bad med badstue og vask/ teknisk. På plan 2 er det stue/kjøkken (ca. 42m2), 1 kontor/tv/sov, 1 bad og balkong.
Tomteareal ca. 743m2. Tomannsboligen er klar for overtagelse.
Segelstadseterlia 25: Inngang fra nord på plan 2, der det også er bod, bad med dusj, kjøkken og stue med balkong. På plan 1, er det fire soverom herav ett med utgang til terrasse, bad med badstue og vask/ teknisk.
Tomteareal ca. 982m2. Tomannsboligen vil være klar for overtagelse før jul.
Status:
Segelstadseterlia 10, Leil. 5A (øst) prisforlangende kr 7 200 000,- Ledig
Segelstadseterlia 10, Leil. 5B (vest) prisforlangende kr 7 200 000,- Ledig
Segelstadseterlia 25, Leil. 6A (øst) prisforlangende kr 7 300 000,- Ledig
Segelstadseterlia 25, Leil. 6B (vest) prisforlangende kr 7 150 000,- Ledig
Adkomst/Tomteforhold
Innhold
Standard
Ta kontakt med megler for komplett informasjon
Nærområdet
Kvitfjell Vest As
Annonsene kan være mangelfulle i forhold til lovpålagt opplysningsplikt. Før bindende avtale inngås oppfordres interessenter til å innhente komplett informasjon fra meglerforetaket, selger eller utleier.












