Bildegalleri

Velkommen til Disenveien 47 - presentert av Krogsveen ved Hanne Pettersen
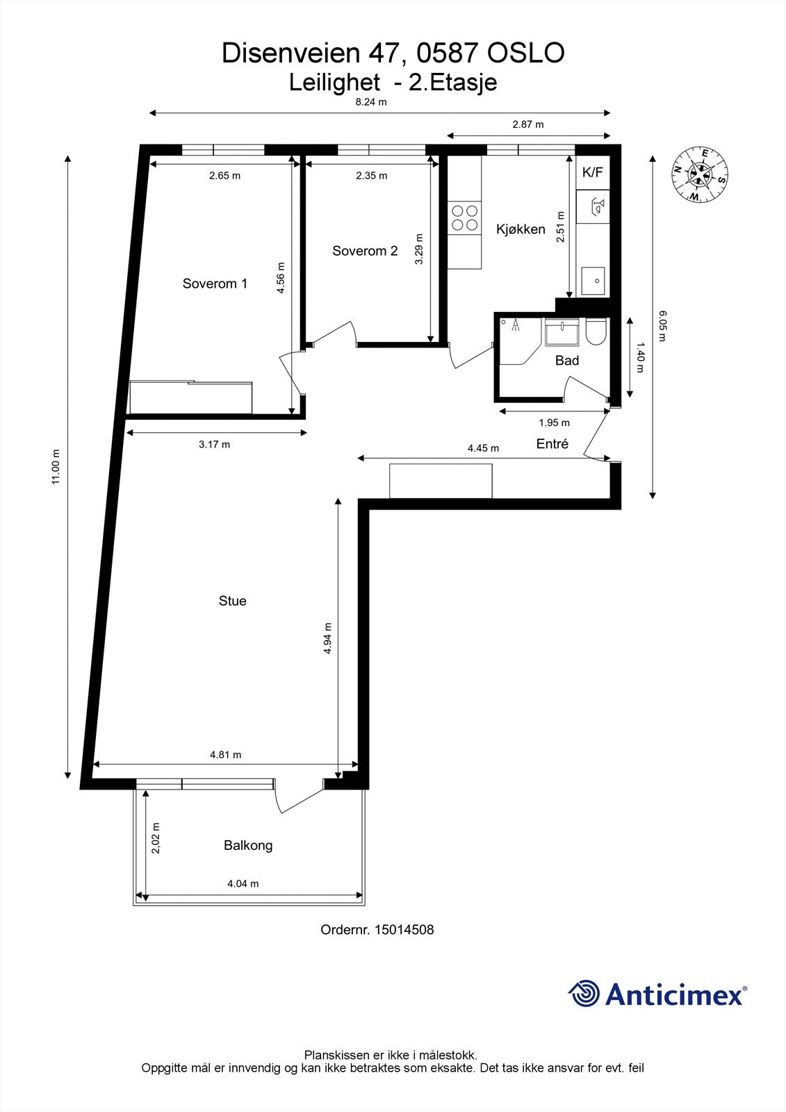
STILREN PERLE! Stor 3-roms med vestvendt balkong på 8 kvm - tilgang til parkplass m/elbil-lader*
Nøkkelinfo
- Boligtype
- Leilighet
- Eieform
- Andel
- Soverom
- 2
- Primærrom
- 74 m²
- Bruksareal
- 74 m²
- Etasje
- 2
- Byggeår
- 1959
- Energimerking
- F - Mørkegrønn
- Rom
- 3
- Tomteareal
- 30 262 m² (eiet)
Fasiliteter
Om boligen
- Helsparklede vegger malt i tidsriktige farger
- Gj.gående 1-stavs parkett
- Stilren IKEA-kjøkkeninnredning m/integrerte hvitevarer vesentlig oppgradert i 2022
- Stuen er større enn i de vanlige 3-roms leilighetene i Disenveien
- Flislagt bad med varmekabler i gulv.
- Vestvendt balkong på 8 kvm
- Kjellerbod på ca. 3,7 kvm + matbod
- Ingen forkjøpsrett
- Varmtvann og fyring inkl. i felleskostn.
- 11 ladestasjoner m tilgang for beboere*
Salgsoppgaven beskriver vesentlig og lovpålagt informasjon om eiendommen
Se komplett salgsoppgaveNyttige lenker
Nærområdet
Krogsveen Årvoll
Prisstatistikk
Disenveien 47
på annonsen
prisantydning per kvadratmeter
Prisfordeling
Pris per m² ligger 29 380 kr under snittet for leiligheter i Grefsen - Kjelsås.
Grafen viser antall leiligheter solgt i Grefsen - Kjelsås siste året fordelt på pris per m² - totalt 467 leiligheter
Antall boliger
Kvadratmeterpris tilsvarer prisantydning pluss fellesgjeld per kvadratmeter (p-rom eller BRA-i). Prisene i grafen er avrundet til nærmeste 1000 kr.
Annonseinformasjon
| FINN-kode | 248380444 |
|---|---|
| Sist endret | 15. juni 2022 08:05 |
| Referanse | KR39.2219 |
Annonsene kan være mangelfulle i forhold til lovpålagt opplysningsplikt. Før bindende avtale inngås oppfordres interessenter til å innhente komplett informasjon fra meglerforetaket, selger eller utleier.






























































