Bildegalleri

Nøkkelferdig hytte rett ved langrennsløyper og alpinbakken. Ski inn / ski ut
- Omkostninger
- 585 kr
- Totalpris
- 4 290 585 kr
Nøkkelinfo
- Beliggenhet
- På fjellet
- Boligtype
- Hytte
- Eieform
- Eier (Selveier)
- Internt bruksareal
- 86 m² (BRA-i)
- Bruksareal
- 86 m²
- Balkong/Terrasse
- 4 m² (TBA)
- Tomt
- Eiet
- Soverom
- 4
- Rom
- 5
- Meter over havet
- 850
Fasiliteter
Visning
Ta kontakt for å avtale visning.Om eiendommen
Beliggenhet
Vaset Skiheiser hyttefelt ligger fint til på Vaset i Valdres. Området kalles Vasetlia og ligger helt inntil alpinbakken. Vaset ligger tilbaketrukkent til
på snaufjellet, i Valdres.
Adkomst/Tomteforhold
Fra Fagernes kjør E16 vestover mot Ulnes. Ta av mot Vaset og Panoramavegen. Etter 10 km kommer man til Vaset. Hyttefeltet ligger like før bommen på venstre side (se skilt).
Generelt
Ski inn/ut til skiheisen og langrennsløyper like nedenfor hytta.
Fantastisk utsikt til Vasetvannet og fjella rundt! Gåavstand til
fasilitetene i området med gangveg like nedenfor hytta. Hytta er tilknyttet offentlig vann og avløp. Trådløst bredbånd tilgjengelig. Adkomst fra Panoramaveien. Muligheter for utleie.
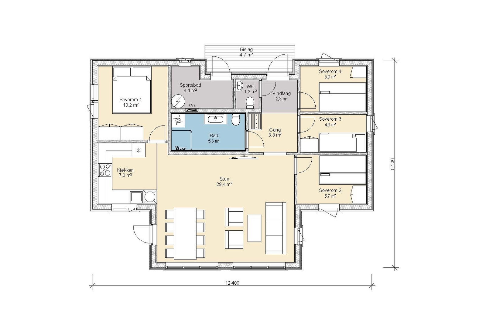
Rondane 86 har alt du trenger på ett plan. Hytta har ei lys og trivelig stue med skråhimling i taket, som gjør at du får mye lys inn. Det er romslig spisestue/ stue med adskilt kjøkkenkrok. Fire soverom, stort bad og eget gjestetoalett. Egen inngang til isolert bod.
Generell utførelse
• Stående låvepanel mix bredder (ubehandlet), 20 cm isolasjon i yttervegg.
• Torv på tak
• Takstige og snøfangere der det er krav.
• Vinduer iht. tegning. 2-lag energiglass, standard farge hvit inne/ute hvit NC SS 0502Y. Vinduer med gjennomgående sprosser.
• Takrenner i sort stål.
• Tinde ytterdør m/vindu, malt hvit.
• Eventuell sportsbod / utebod har Tinde boddør u/vindu, malt hvit.
• Terrasse leveres der det er vist på tegninger uten rekkverk.
• Isolasjon 25 cm i tak, 20 cm yttervegg og 10 cm i innervegger.
• Flytende gulv med 13 mm eikeparkett 3-stavs, type Kährs.
• Innvendige furupanel fra Moelven: 13 mm Sprekkpanel på vegger og himling, ubehandlet.
• Glatt standard listverk, ubehandlet.
• Furu 3-speils innerdører, ubehandlet.
• For hytter som leveres med hems/ loft er det inkludert trapp i ubehandlet utførelse.
• For hytter med badstue leveres benk i gran ubehandlet.
• Kjøkken fra Aubo Kjøkken av typen Unik NCS S 3502-Y, med laminat benkeplate og Slimline kjøkkenventilator (hvitevarer følger ikke med).
Rørlegger/innvendig sanitær
Rørleggerarbeid med utstyr iht. standard rørleggeroppsett. I utstyrsoversikt kan nevnes:
• Bunnledninger (rør som ligger i betongplate innenfor ringmur fram til toalett, sluker osv.).
• Rette slagdører i dusjnisje evnt. Dusjnisjedør (iht. tegning) med dusjgarnityr.
• Vegghengt toalett med innebygd sisterne.
• Unidrainsluk på bad.
• Baderomsinnredning m/skuffer, porselensvask og speil.
• Innredning med vask og speilskap leveres det det er separat WC rom.
• Varmtvannsbereder 200 liter.
• 1-greps blandebatterier på kjøkken, bad og evnt. andre våtrom.
• Opplegg for tilkobling av kjøkkenbenk m/ 1-greps benkebatteri med høy tut, samt opplegg for tilkobling av oppvaskmaskin.
• Lekkasjesikring/vannstoppeventil.
Murer, Flis, pipe og ildsted
• Peisovn fra Nordpeis med sideglass og m/glassplate montert på sort stålpipe.
• Flislagt gulv i vindfang med 30x60cm flis.
• Flislagt gulv på bad med 30 x 60 fliser. Ved eget WC-rom og badstue leveres det også 30x60 cm flis.
• Flislagte vegger på bad med 30x60 cm flis.
• Har hytta eget vaskerom, innvendig bod eller sportsbod leveres det med 30x30 cm flis.
Elektroinstallasjoner og utstyr
Elektrikerarbeid med utstyr iht. standard elektrikeroppsett. I utstyrsoversikt kan nevnes:
• Inntaksskap og kabel mellom inntak og sikringsskap.
• Sikringsskap m/overbelastningsvern, jordfeilautomater og overspenningsvern.
• EL-punkter (iht. NEK 400).
• Varmekabler med termostat og føler i vindfang og våtrom.
• Strømforsyning til seriekoblet røkvarslere m/backup batteri.
• Astrour-styrte utelamper.
• Downlights leveres i vindfang og bad. Om hytta har WC og gang i tillegg leveres det også downlights her.
• Taklamper leveres i soverom. For de hyttene som har vaskerom og bod, leveres det taklamper her.
• Panelovner, stikkontakter, komfyrvakt og badstuovn leveres i tråd med tegning.
Oppgradering av leveransen
• Taktyper som tilpasses ønsker og/evt reguleringsplan.
• Beiset sprekkpanel på vegger og himling, listverk, utforinger og innvendig trapp/stige i en av Tinde sine standard farger.
• Innerdører, vinduer, ytterdør og evnt. boddør malt i valgfri NCS farge.
• Hvitevarepakke og kjøkkenløsning
Felles for alle leveranser
• Tinde Hytter har ansvar for byggesøknadsprosessen.
• Utførelse og leveranse i henhold til dagens tekniske krav.
• Garanti: 10% av kontraktssum i byggeperioden, 5% i reklamasjonstiden (5 år).
• Kontrakt fra Norsk Standard 3425 (med henvisninger til Bustadoppføringsloven).
• Trykktestet i henhold til Tek 17.
Tomteverdi fra kr. 800 000,- Verdig grunnarbeider, stipulert fra kr. 500 000,-
For pris, diverse avgifter og kostnader - se https://www.tindehytter.no/hyttefelt/vaset-skiheiser
Prisene er beregnet med sist kjente indeks fra SSB, og vil bli justert til enhver tids gjeldende indeks.
Det tas forbehold om endelig godkjenning fra kommunen.
Salgsoppgaven beskriver vesentlig og lovpålagt informasjon om eiendommen
Se komplett salgsoppgaveNærområdet
Tindehytter AS
Annonsene kan være mangelfulle i forhold til lovpålagt opplysningsplikt. Før bindende avtale inngås oppfordres interessenter til å innhente komplett informasjon fra meglerforetaket, selger eller utleier.






















