Bildegalleri

Alta

Dragsund

Store, flotte einebustadar til sals i Dragsund

Einebustad Alta

Prisantydning6 150 000 kr
Totalpris
6 150 000 kr
Omkostninger
0 kr

Kort om prosjektet

Det skal byggast to store og flotte einebustadar i enden av Dragsundråsa. Alle einebustadane har ei relativt lik planløysing med like mange soverom og opphaldsrom. Utvendig har dei eit veldig ulikt arkitektonisk uttrykk frå kvarandre.

  • Planlegging

    Grunnarbeid pågår

  • Salgsstart

    Januar 2025

  • Byggestart

    Avhengig av sal

  • Overtakelse

    2025 / 2026

Nøkkelinfo

Boligtype
Enebolig
Etasje
2
Soverom
4
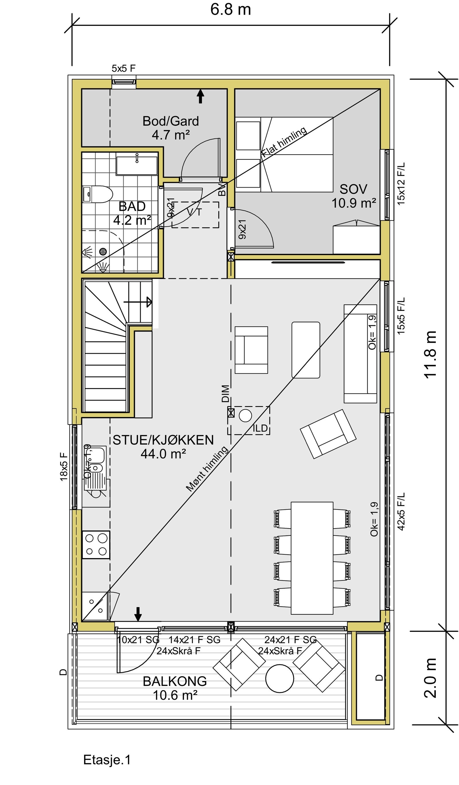
Bruksareal
196 m²
Eksternt bruksareal
23 m² (BRA-e)
Energimerking
B - Oransje

Les mer om bruksareal her

Fasiliteter

Balkong/Terrasse
Ingen gjenboere
Offentlig vann/kloakk
Utsikt
Barnevennlig
Garasje/P-plass
Parkett
Balansert ventilasjon
Bredbåndstilknytning
Lademulighet
Peis/Ildsted
Turterreng

Visning

Ta kontakt for å avtale visning.

Beskrivelse

Stor og moderne einebustad med, to opphaldssoner med stove og TV-stove, fire soverom, kjøken, terrasse med glasrekkverk, bad, bod, carport inkl sportsbod.

Nærområdet

Annonseinformasjon

FINN-kode245186690
Sist endret15. mars 2024 14:53

Rapporter annonse

Annonsene kan være mangelfulle i forhold til lovpålagt opplysningsplikt. Før bindende avtale inngås oppfordres interessenter til å innhente komplett informasjon fra meglerforetaket, selger eller utleier.