Bildegalleri

Perspektiv
Dragsund
Store, flotte einebustadar til sals i Dragsund
Einebustad Nordstrand
Prisantydning6 530 000 kr
Kort om prosjektet
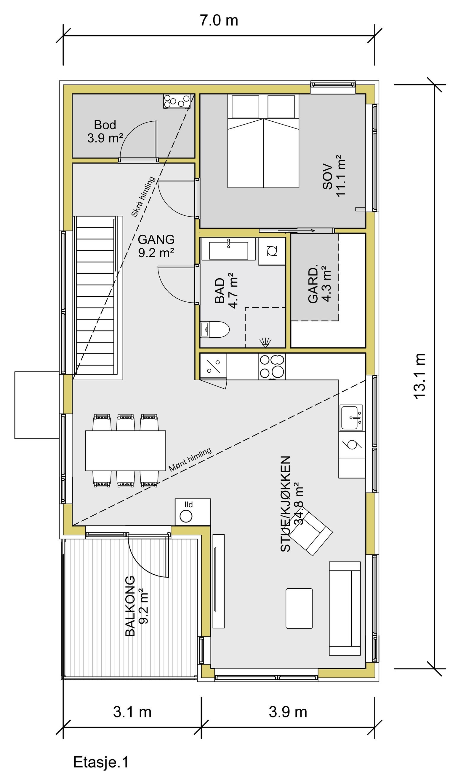
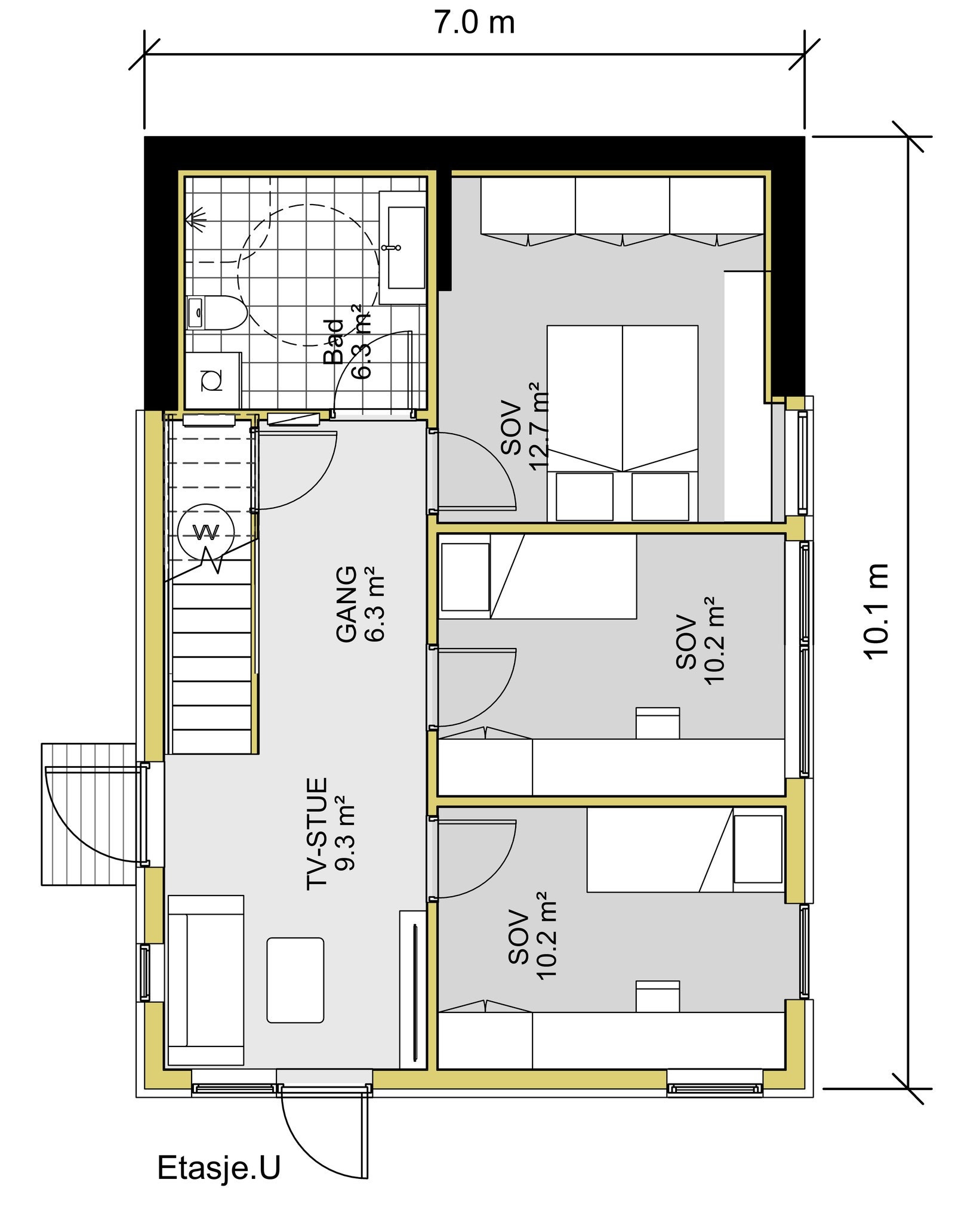
Det skal byggast to store og flotte einebustadar i enden av Dragsundråsa. Alle einebustadane har ei relativt lik planløysing med like mange soverom og opphaldsrom. Utvendig har dei eit veldig ulikt arkitektonisk uttrykk frå kvarandre.
Prosjektets status
Planlegging
Grunnarbeid pågår
Salgsstart
Januar 2025
Byggestart
Avhengig av sal
Overtakelse
2025 / 2026
Nøkkelinfo
- Boligtype
- Enebolig
- Etasje
- 2
- Soverom
- 4
- Bruksareal
- 145 m²
- Energimerking
- B - Oransje
Fasiliteter
Balkong/Terrasse
Ingen gjenboere
Offentlig vann/kloakk
Utsikt
Barnevennlig
Garasje/P-plass
Parkett
Balansert ventilasjon
Bredbåndstilknytning
Lademulighet
Peis/Ildsted
Turterreng
Visning
Ta kontakt for å avtale visning.Beskrivelse
Stor og moderne einebustad av hustypen Nordstrand med to opphaldssoner med, stove og TV-stove, fire soverom, kjøken, altan med glassrekkverk, bad, bod, carport inkl sportsbod.
NB: Knappen for å vise hele beskrivelsen har kun en visuell effekt.
NB: Knappen for å vise hele beskrivelsen har kun en visuell effekt.
Nærområdet
Mesterhus Sunnmøre
Annonsene kan være mangelfulle i forhold til lovpålagt opplysningsplikt. Før bindende avtale inngås oppfordres interessenter til å innhente komplett informasjon fra meglerforetaket, selger eller utleier.











