Bildegalleri

Joker Kleive
3
Prosjektets status
Planlegging
2021
Salgsstart
Årsskifte 2021/2022
Byggestart
2021
Overtakelse
Oktober - desember 2022
Nøkkelinfo
- Boligtype
- Leilighet
- Soverom
- 2
- Primærrom
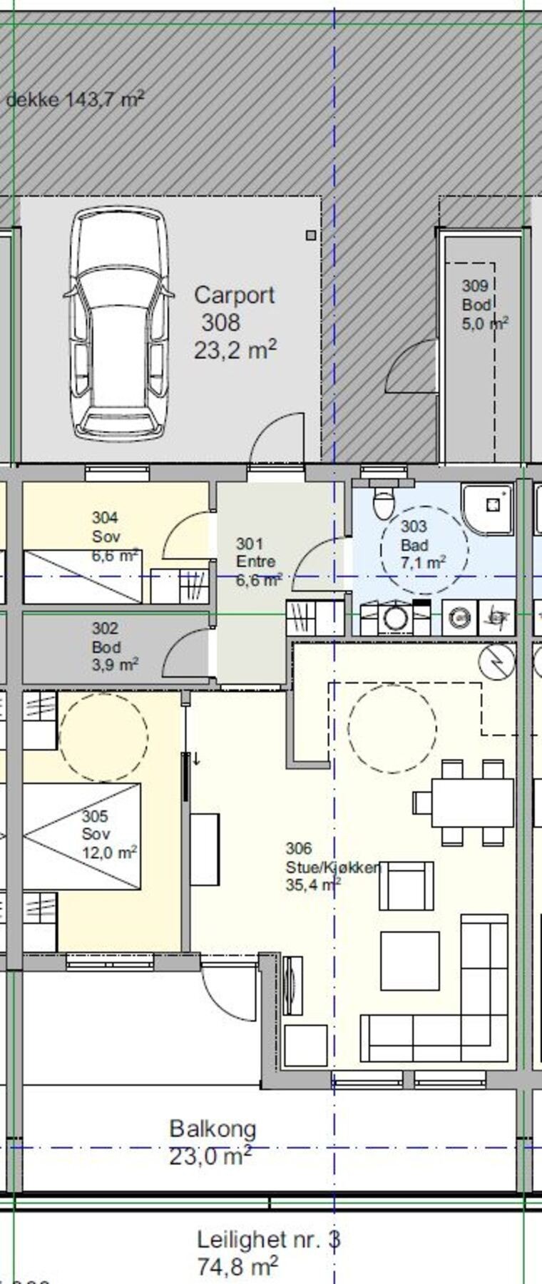
- 71 m²
- Bruksareal
- 75 m²
- Energimerking
- A - Oransje
Beskrivelse
Innhold
Leiligheten har alle rom på ett plan og inneholder: Entré, bad, 2 soverom, stue/kjøkken og bod
Beliggenhet
Eiendommen ligger fint til i veletablert boligfelt på Kleive i Molde Kommune. Det er nydelig utsikt fra prosjektet utover fjord og fjell, og det er gode solforhold. Det er kort vei til både skole og barnehage og dagligvarebutikk i underetasjen. I nærheten er det fine turmuligheter både sommer som vinter.
Adkomst
Fra Molde kjører man østover til du kommer til Kleive, ta av til venstre like før Joker og videre til høyre inn Nesvegen. Boligene vil ligge på høyre hånd ved Joker. Leilighetene skal oppføres i etasjen ovenfor Joker-butikken. Adkomst fra Nesvegen.
Parkeringsforhold
I egen carport, samt på felles tomt
Ferdigattest
Selger plikter å fremskaffe ferdigattest når eiendommen er ferdigstilt.
Beskrivelse (type bolig)
Andelsleilighet
Fellesgjeld og lånebetingelser
Andel fellesgjeld
Gjeld kr 1 960 000,-
Forkjøpsrett
Andelseier(e) kan kun eie en andel. Andelseier må selv bebo leiligheten. Kun fysiske personer kan eie andel. Stat, kommune, fylkeskommune m.fl. kan likevel eie andel
eller andeler opp til 10% av andelene i borettslaget, der det er fem eller flere andeler. Det kan være fastsatt i vedtektene at stat, kommune, fylkeskommune, boligbyggelag, institusjon eller sammenslutning med samfunnsnyttig formål og
dessuten arbeidsgiver som skal leie ut boligen til sine ansatte, kan eie opp til 20% av andelene i tillegg. Kjøper av andelen må godkjennes av borettslagets styre for at ervervet skal bli gyldig. Kjøper bærer selv risikoen for at godkjenning blir gitt og må videreselge boligen for egen regning og risiko dersom styret ikke godkjenner kjøper som ny andelseier.
Dersom borettslaget er tilknyttet et boligbyggelag, så er det ofte et krav fra boligbyggelagets side at kjøper må melde seg inn i boligbyggelaget før kjøper kan bli godkjent som ny andelseier i det aktuelle borettslaget. Det gjøres i den forbindelse oppmerksom på at det vil kunne påløpe et innmeldingsgebyr til boligbyggelaget, og de fleste boligbyggelagene krever at innmeldingsavgiften skal være innbetalt før godkjenningen blir gitt. Innmeldingsgebyret faktureres kjøper direkte.
Ligningsverdi (formuesverdi)
Formuesverdi fastsettes av skatteetaten etter ferdigstillelse.
Nyttige lenker
Nærområdet
EiendomsMegler 1 Molde
Annonseinformasjon
| FINN-kode | 243125767 |
|---|---|
| Sist endret | 10. juni 2025 10:52 |
| Referanse | 132110046 |
Annonsene kan være mangelfulle i forhold til lovpålagt opplysningsplikt. Før bindende avtale inngås oppfordres interessenter til å innhente komplett informasjon fra meglerforetaket, selger eller utleier.
