Bildegalleri

Hyttens plassering på feltet
Lauplandsvågen på Bokn. Nyoppført hytte ved sjøen. Båtplass og naustbod. Strand like ved
Nøkkelinfo
- Beliggenhet
- Ved sjøen
- Boligtype
- Hytte
- Eieform
- Eier (Selveier)
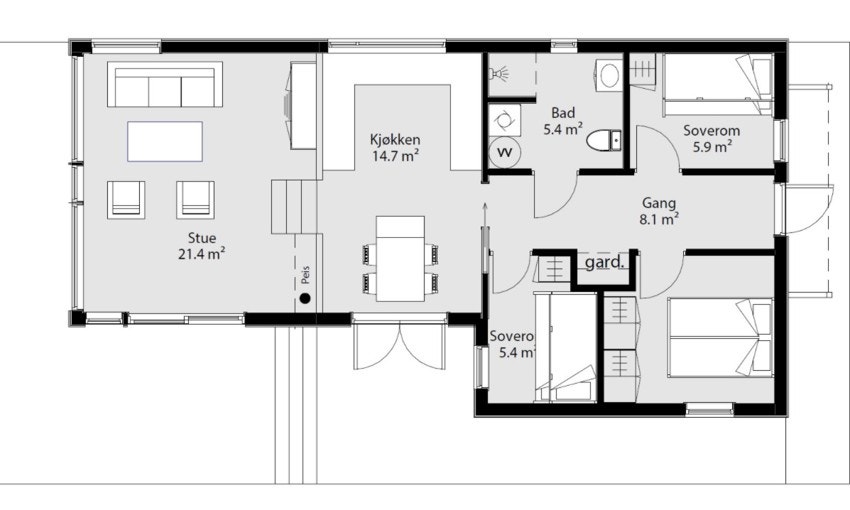
- Primærrom
- 74 m²
- Bruksareal
- 74 m²
- Tomteareal
- 303 m² (eiet)
- Grunnflate
- 80 m²
- Byggeår
- 2021
- Soverom
- 3
- Rom
- 1
- Sengeplasser
- 6
- Energimerking
- D - Oransje
Fasiliteter
Visning
Ta kontakt for å avtale visning.Husk å lese komplett salgsoppgave før visning. Bestill komplett, utskriftsvennlig salgsoppgave.
Visningsp åmeldingOm boligen
Velkommen til Lauplandsvågen hyttefelt på sørspissen av Bokn!
Hytten har selveiertomt, og rettigheter til båtplass og naustbod
Eiendommen befinner seg inderst mot nord i hyttefeltet, med panoramavinduer som vender mot vågen og Ryfylkefjellene. Landskapet er unikt, relativt flatt, men med høydekurver og terrengtilpasning som gir lune kroker på flere sider. Hytten ligger ca. 12 meter over havflaten og ca. 50 m. å gå ned til strandkanten
Velforeningen forvalter fellesareal på ca 28 mål m. brygge, naust, båtplass, vei mv. iht til vedtekter
Feltet er i dag bebygd med 11 fritidsboliger, brygge og kai, utriggere for båtplass, sløyeplass for fisk, og egen strand.
Salgsoppgaven beskriver vesentlig og lovpålagt informasjon om eiendommen
Se komplett salgsoppgaveNyttige lenker
Nærområdet
ÅÅ Huus & Partners
Annonsene kan være mangelfulle i forhold til lovpålagt opplysningsplikt. Før bindende avtale inngås oppfordres interessenter til å innhente komplett informasjon fra meglerforetaket, selger eller utleier.



















