Bildegalleri

Kvitfjell! Sju idylliske selveiertomter med PREG hytter på Solekvea!
- Omkostninger
- 41 312 kr
- Totalpris
- 6 278 148 kr
Nøkkelinfo
- Beliggenhet
- På fjellet
- Boligtype
- Hytte
- Eieform
- Eier (Selveier)
- Tomt
- Eiet
- Soverom
- 4
- Meter over havet
- 828
Fasiliteter
Visning
Ta kontakt for å avtale visning.Om eiendommen
Beliggenhet
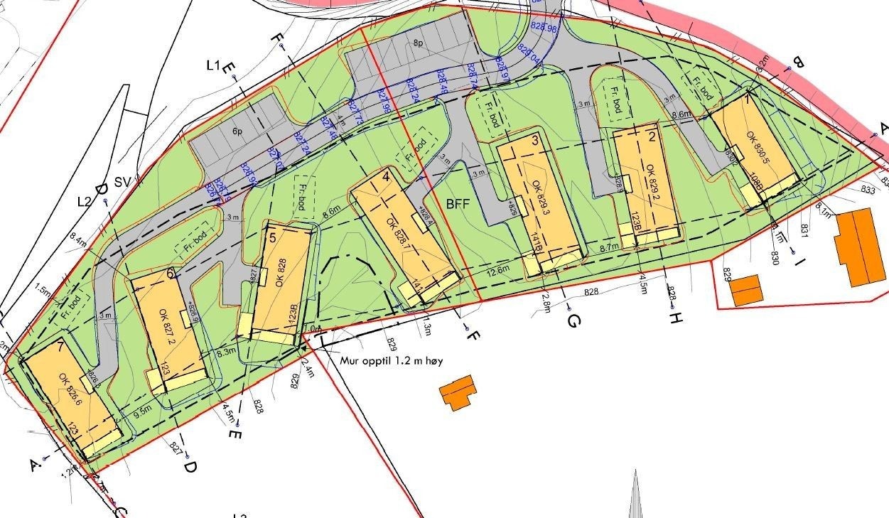
Solekvea ligger ca. 830 meter over havet ved Gammelsetra og er en del av det som kalles østsida i den populære turistdestinasjonen Kvitfjell. Solekvea er en del av Gammelsetra-området, som består av både aktive landbruksområder, noe gjengroende kulturmark, gamle seterbygninger og nyere fritidsboliger.
Generelt
Jøra Bygg AS tilbyr sju idylliske selveiertomter med den populære hyttemodellen PREG. Det er også mulighet til å få kjøpt med bod til hytta. Hyttene er levert nøkkelferdig. Hyttetomtene blir tildelt hvert sitt gårds- og bruksnummer med egen ankomst. Området får også et fellesareal for parkering.
Til tomtene hører 1/7 av 112/97 til felles parkeringsareal. Det er også egen ankomst med biloppstillingsplass ved hver hytte. Tomtene er ikke fysisk oppmålt.
Hyttene er byggesøkt og godkjent, så endringer kan ikke gjøres. Men man kan velge fritt mellom farger på innvendig panel, gulv osv.
Det vil bygges 3 forskjellige modeller av PREG på Solekvea, Preg 108, Preg 123 og Preg 141. Prisene gjelder for nøkkelferdig hytte med tomt. Dokumentavgift til staten på 2,5% av tomteverdi, tinglysning av skjøte, tilkobling vann, avløp og strøm vil komme i tillegg.
Overtagelse av gårds- og bruksnummer vil følge bustadoppføringslova. Oppgjøret foretas ved at første del av kjøpesummen betales til oppgjørsmegler i forbindelse med at den enkelte tomt overskjøtes til kjøper, mens resten betales direkte til utbygger etter hvert som verdier blir tilført det aktuelle bygget. Kjøper foretar ingen betaling før utbygger har stilt garanti etter bustadoppføringslova §12.
Adkomst/Tomteforhold
Adkomst fra E6 ved Fåvang via Kvitfjellvegen fram til krysset mot Gammelsætra, der vegen tar av til høyre. Etter ca. 500m deler vegen seg og fortsetter mot Strandesætra og Hestknappen til høyre. Inne ved Gammelsætra tar en neste avkjørsel inn til venstre. Her ligger planområdet vest for Dæhli-hytta og rett sør for Hestesenteret.
Kvitfjell, Solekvea!
Innhold
Standard
I PREG-serien skal naturen prege rommene, både ute og inne. Hytta har derfor store vinduer, gjennomlys og utsyn i alle retninger. Den lange, smale og rolige saltaks formen glir godt inn i landskapet og kan enkelt tilpasses terrenget.
I hyttemodellens planløsning er det lagt vekt på funksjonelle og praktiske løsninger for den aktive familien. Hytta er sonedelt med et raust inngangsparti med våtrom, egen oppholdssone og soveromsavdeling med hems.
Med sitt enkle uttrykk, praktiske løsninger og robust materialbruk forankret i den historiske seterbebyggelsen og norske hyttetradisjonen. Respekt for natur og landskap har vært viktig ved utforming av PREG modellen.
Leveransebeskrivelse
- Ferdig oppsatt hytte iht. leveransebeskrivelse.
- Elektrisk arbeid
- Røleggerarbeider
- Murerarbeider
- Heltrekjøkken uten hvitevarer
- Sort stålpipe og peisovn
- Grunnet utv. kledning
- Behandlet innv. overflater
- Tretak
- Heltre furugulv på tilfarere
- Elflex gulvvarme
Ta kontakt med megler for komplett informasjon
Nyttige lenker
Nærområdet

Jøra Bygg AS
Annonseinformasjon
| FINN-kode | 239666264 |
|---|---|
| Sist endret | 01. aug. 2023 09:01 |
| Referanse | Jøra Bygg AS |
Annonsene kan være mangelfulle i forhold til lovpålagt opplysningsplikt. Før bindende avtale inngås oppfordres interessenter til å innhente komplett informasjon fra meglerforetaket, selger eller utleier.





























