Bildegalleri

Velkommen til Thorvald Meyers gate 81 presentert av Bjørn Johan Grini ved Nordvik.
Solgt
Grünerløkka
Grünerløkka - Oppussingsobjekt med stort potensial. Hjørneleilighet - Peis - Godkjent bygging av vestvendt balkong
Prisantydning6 750 000 kr
Nøkkelinfo
- Boligtype
- Leilighet
- Eieform
- Eier (Selveier)
- Soverom
- 2
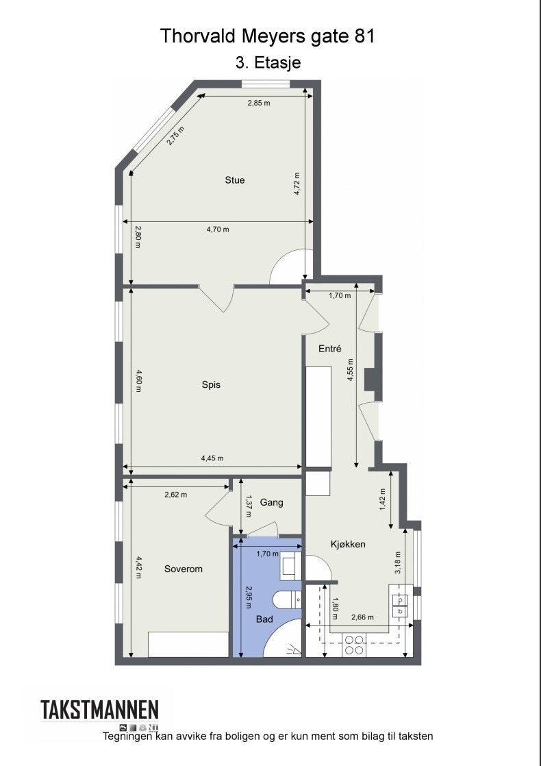
- Primærrom
- 90 m²
- Bruksareal
- 90 m²
- Etasje
- 3
- Byggeår
- 1855
- Energimerking
- G - Oransje
- Rom
- 4
- Tomteareal
- 377 m² (eiet)
- Bruttoareal
- 99 m²
Fasiliteter
Balkong/Terrasse
Kjæledyr tillatt
Ingen gjenboere
Kabel-TV
Peis/Ildsted
Sentralt
Om boligen
Oppussingsobjekt på Grünerløkka med godt potensial for å lage din drømmeleilighet. Det foreligger godkjent søknad for bygging av balkong. Balkong er planlagt mot bakgård med utgang fra nåværende kjøkken(vestvendt). Kjøkken kan flyttes ut i stue for åpen løsning. Baderommet er fint plassert og av god størrelse. Hele boligen krever modernisering. Konferer med megler for å se tilbud på etablering av balkong.
Kort fortalt:
- Søknad godkjent for vestvendt balkong, foreligger tilbud
- Stor Hyggelig bakgård
- Varmtvann inkludert
- Mulighet for å gjøre om planløsning
- 2 peiser
- Klassisk leilighet med god takhøyde
- Store vinduer som gir mye lys og flott utsyn
- Kort vei til alt Grünerløkka har å by på
- Kort vei til kollektivtransport
- Bod i kjeller og i trappegang
Kort fortalt:
- Søknad godkjent for vestvendt balkong, foreligger tilbud
- Stor Hyggelig bakgård
- Varmtvann inkludert
- Mulighet for å gjøre om planløsning
- 2 peiser
- Klassisk leilighet med god takhøyde
- Store vinduer som gir mye lys og flott utsyn
- Kort vei til alt Grünerløkka har å by på
- Kort vei til kollektivtransport
- Bod i kjeller og i trappegang
NB: Knappen for å vise hele beskrivelsen har kun en visuell effekt.
NB: Knappen for å vise hele beskrivelsen har kun en visuell effekt.
Salgsoppgaven beskriver vesentlig og lovpålagt informasjon om eiendommen
Se komplett salgsoppgaveNyttige lenker
Nærområdet
Nordvik Bygdøy Allé
Annonseinformasjon
| FINN-kode | 239335442 |
|---|---|
| Sist endret | 23. jan. 2022 12:00 |
| Referanse | 6aaed746-5036-4fef-a3dc-d3d5fb05b768 |
Annonsene kan være mangelfulle i forhold til lovpålagt opplysningsplikt. Før bindende avtale inngås oppfordres interessenter til å innhente komplett informasjon fra meglerforetaket, selger eller utleier.



























