Bildegalleri

Fasade for bygg J/K hvor ROM ligger
Grünerløkka / Schous - Rimelig kontorfellesskap sentralt på Løkka - Fleksible kontrakter - kreative omgivelser
Nøkkelinfo
- Areal
- 8 - 100 m²
- Etasje
- 5.
Type lokale
Om eiendommen
- En del av ROM Kontorfellesskap drevet av KLP Eiendom
- Trikk rett utenfor
- Urbant og kreativt miljø med et rikt kulturtilbud
- Mange spennende forretninger, restauranter, treningssenter, utesteder i nærheten
- Enkle kontrakter
- 3 mnd oppsigelsestid
- Prisgunstig
- Sosiale soner og eget avsatt sted for bespisning
Sjelden mulighet i ROM kontorfellesskap på Schous.
Her er det stort sett helt fullt, men nå åpner det seg en mulighet.
Schous Bryggeri har lang historie, men er i dag et moderne sted hvor blandt annet Riksscenen, Popsenteret, dansesenter og flere restauranter holder til. I tillegg er det vanlige firmaer, skole og helseforetak på stedet.
I Schous-kvartalet er det flere serveringssteder, bl.a Trattoria Popolare, populære restaurant Txotx og Mikrobryggeriet. I tillegg finner du treningssenteret SATS.
Det er kort gangavstand til restaurant Sudøst, Trancher, Delicatessen, Godt Brød m.fl.
Beliggenhet
Adkomst
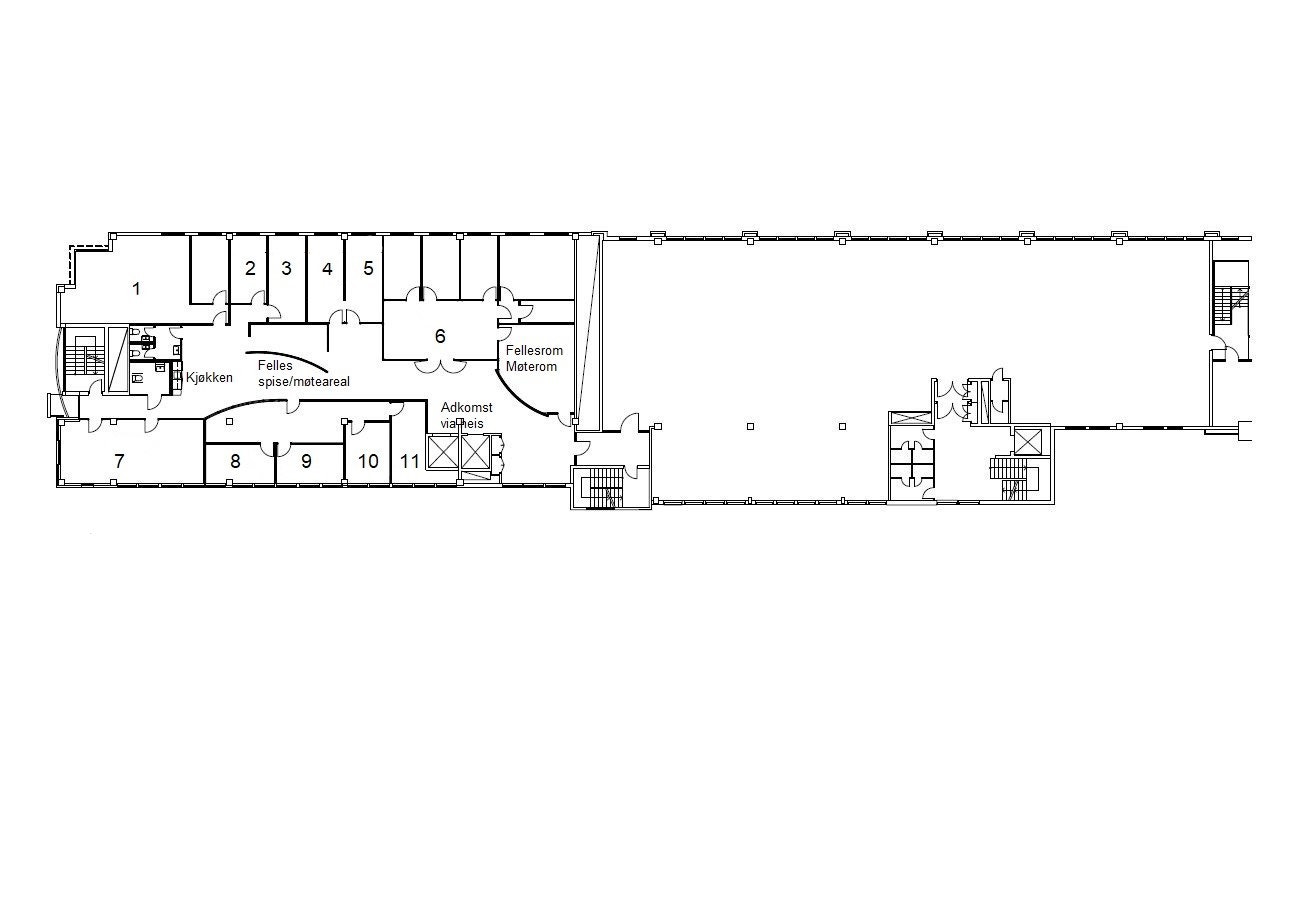
Innhold
Rom 1: Utleid
Rom 2: Utleid
Rom 3: Utleid
Rom 4: Utleid
Rom 5: Utleid
Rom 6: Ledig 92 kvm BTA, 26.000 per mnd eks mva
Rom 7: Utleid
Rom 8: Utleid
Rom 9: Utleid
Rom 10: Utleid
Rom 11: Utleid
Det er 3 mnd oppsigelsestid.
Vi har ulike rom og størrelser fra cellekontor med plass til en eller to til større grupperom med plass til inntil ti, ta kontakt for mer informasjon. Alle arealer som er oppgitt er BTA
Visning
Ta kontakt for å avtale visning.
KLP Eiendom Oslo AS
Nærområdet
Annonsene kan være mangelfulle i forhold til lovpålagt opplysningsplikt. Før bindende avtale inngås oppfordres interessenter til å innhente komplett informasjon fra meglerforetaket, selger eller utleier.










