Bildegalleri

Oversikt over området fra eiendom og ned til sjøen
Eiendom med stor tomt og båtnaust ved sjøen.
Nøkkelinfo
- Boligtype
- Enebolig
- Eieform
- Eier (Selveier)
- Primærrom
- 89 m²
- Bruksareal
- 89 m²
- Byggeår
- 1860
- Tomteareal
- 6 700 m² (eiet)
Fasiliteter
Om boligen
Solrik og flott beliggende eiendom (stor boligtomt) i Austad med eldre bygninger, samt eiendomsrett til båtnaust ved sjøen. Det er ikke boplikt.
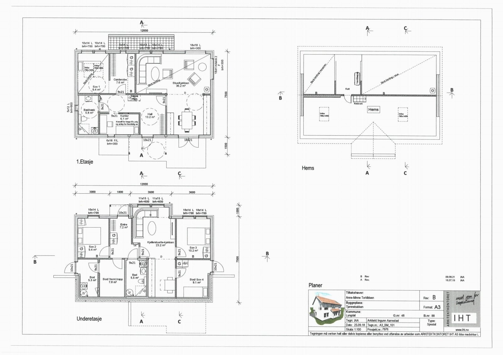
Det må påregnes riving eller total renovering av alle bygninger. Det er godkjent rammetillatelse for riving og oppføring av ny bolig og garasje/uthus. Ny bolig med BRA ca. 163 m2. Garasje/uthus: BRA 74 m2.
Tomten består av to teiger, ikke nøyaktig oppmålt, ca. 5-6 dekar totalt. Adkomst via kommunal vei. Bygninger er plassert på en høyde med utsikt til Austadtjernet, hvor tomt grenser ned. Kun ca. 400 m til sjøen og båtnaust.
Eldre bolig inneholder: Hovedetasje: gang/kjøkken, 2 kammers, 2 stuer, gang m/trapp. Loft: gang m/trapp, 3 soverom inkl. kott. Krypkjeller.
Bryggerhus med grue er planlagt bevart.
Låve/uthus er i dårlig stand.
Velkommen til visning!
Salgsoppgaven beskriver vesentlig og lovpålagt informasjon om eiendommen
Se komplett salgsoppgaveNyttige lenker
Nærområdet
Eiendomsmegler Norge Lister
Annonseinformasjon
| FINN-kode | 233731329 |
|---|---|
| Sist endret | 24. des. 2021 13:19 |
| Referanse | 61210105 |
Annonsene kan være mangelfulle i forhold til lovpålagt opplysningsplikt. Før bindende avtale inngås oppfordres interessenter til å innhente komplett informasjon fra meglerforetaket, selger eller utleier.































