Bildegalleri

Solrik syd sydvestvendt balkong med adkomst fra stue
Solgt
ULLERN
3 roms for de over 50 år. Syd sydvestvendt balkong 8,5 kvm. Garasjeplass. Heis. Varmt vann inkl. Ingen dok.avgift.
Prisantydning4 300 000 kr
Nøkkelinfo
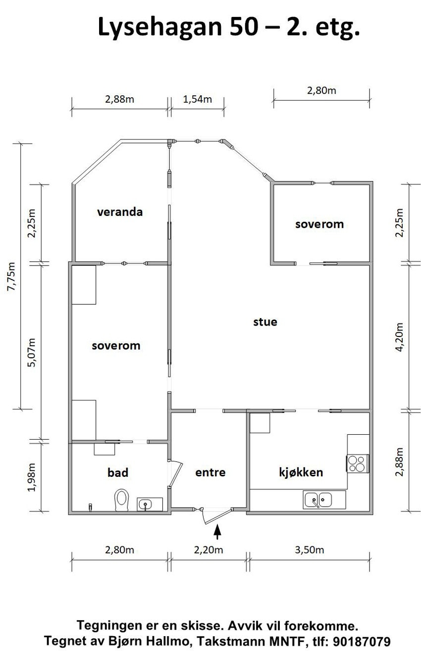
- Boligtype
- Leilighet
- Eieform
- Andel
- Soverom
- 2
- Primærrom
- 80 m²
- Bruksareal
- 80 m²
- Etasje
- 2
- Byggeår
- 1988
- Energimerking
- E - Rød
- Rom
- 3
- Tomteareal
- 7 293 m² (eiet)
- Bruttoareal
- 88 m²
- Boligselgerforsikring
- Ja
Om boligen
Seniorleilighet for de som er over 50 år. Boligen trenger modernisering/oppussing så her har du en fin anledning til å sette ditt eget preg på boligen. Det er heis i bygget og leiiligheten har trappefri adkomst så den passer for bevegelseshemmede. Beboere har tilgang til en rekke fellesfasiliteter som felles dagligstue/selskapslokale, trimrom, badstue,fellesvaskeri og gjesterom som kan leies.
- Gjennomgående med mye lys utenfra
- solrik balkong på ca 8,5 kvm
- Parkering i garasje i kjeller
- Ca 4 minutters gange til Kolsåsbanen og 13 trikken
- Dagligvarebutikk vis a vis hovedinngangen (Coop Extra)
- Flotte turmuligheter bl.a. langs Lysakerelven
- Nærhet til CC Vest og Nye Røa Torg
- Klausulert for personer som er 50 ?
- Rask avklaring av forkjøpsretten
- Ingen dok. Avgift.
NB: Knappen for å vise hele beskrivelsen har kun en visuell effekt.
NB: Knappen for å vise hele beskrivelsen har kun en visuell effekt.
Salgsoppgaven beskriver vesentlig og lovpålagt informasjon om eiendommen
Se komplett salgsoppgaveNyttige lenker
Nærområdet
OBOS eiendomsmeglere - Oslo Sentrum
Annonseinformasjon
| FINN-kode | 232897848 |
|---|---|
| Sist endret | 02. okt. 2021 10:34 |
| Referanse | 701210109 |
Annonsene kan være mangelfulle i forhold til lovpålagt opplysningsplikt. Før bindende avtale inngås oppfordres interessenter til å innhente komplett informasjon fra meglerforetaket, selger eller utleier.


















