Bildegalleri

Planlagt nøkkelferdig hytte med 4 soverom og TV-stue, tomt og grunnarbeider
- Omkostninger
- 26 000 kr
- Totalpris
- 6 246 000 kr
Nøkkelinfo
- Beliggenhet
- På fjellet
- Boligtype
- Hytte
- Eieform
- Eier (Selveier)
- Internt bruksareal
- 123 m² (BRA-i)
- Bruksareal
- 123 m²
- Balkong/Terrasse
- 40 m² (TBA)
- Tomt
- Eiet
- Byggeår
- 2023
- Soverom
- 4
Fasiliteter
Visning
Ta kontakt for å avtale visning.Om eiendommen
Beliggenhet
Musdalsæter Høgsvea tomteområde ligger fint til i
skrånende terreng i 800-900 meter høyde med fantastisk
utsikt mot Hafjell, Synnfjellet og omkringliggende
områder.
Adkomst/Tomteforhold
Ta av ved Lillehammer nord mot Gausdal. Følg Fv 255 til Gausdal og videre forbi Segalstad bru og Svingvoll videre mot Tretten på Fv 254. Ta til venstre der det er skiltet mot Musdalsæter. Etter en snau kilometer ligger Musdalsætervegen på venstre side. Følg denne i ca 3 km, hold til høyre ved de første sætrene og følg veien frem til Musdalsæter Hyttegrend
Generelt
Musdalsæter Høgsvea tomteområde ligger fint til i skrånende terreng i 800-900 meter høyde med fantastisk utsikt mot Hafjell, Synnfjellet og omkringliggende områder. Det siste feltet er lagt ut for salg med 43 tomter ( tomt 50-93 ).
Infrastruktur med veier, vann/kloakk etc. er klart, og bygging er allerede i gang.
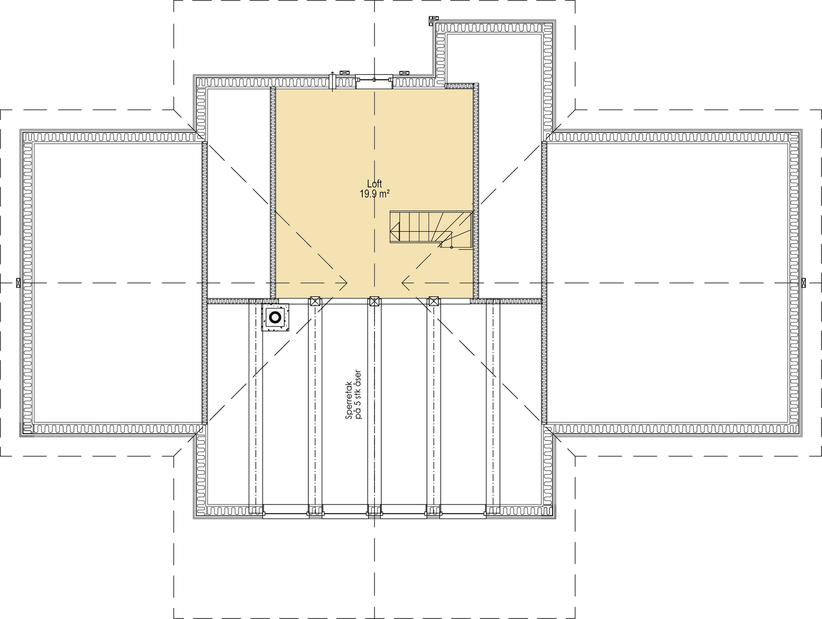
Rå 142 er ei flott familiehytte hvor generasjonene
og storfamilien kan samles. Hytta har egen TVstue
i tillegg til fire soverom på grunnplan. Det er
to bad hvorav det ene har tilknytning til badstue.
Hemsen har et tiltalende galleri med åpning ned
til stue. Hytta har et lunt og skjermet inngangsparti
med inngang til stor isolert utebod/skibod.
Leveranse:
• Stående låvepanel mix bredder med stavlafts-utsmykking (ubehandlet), 20 cm isolasjon i yttervegg.
• Torv på tak med dobbel torv fra Dovre inkl forkantbord og torvstokker, 25 cm isolasjon i taket
• Takstige.
• Pipe over tak er forblendet med steinpanel
• Vinduer iht. tegning. 2-lag energiglass, standard farge hvit inne/ute hvit ev ( valgfri farge NCS S f. eks 7500-N). Vinduer med gjennomgående sprosser.
• Takrenner i sort stål.
• Tinde ytterdør m/vindu, malt hvit.
• Tinde boddør u/vindu, malt hvit.
• Terrasse uten rekkverk
• Isolasjon 25 cm i tak, 20 cm yttervegg og 10 cm i innervegger.
• Flytende gulv: 13 mm eikeparkett 3-stavs, type Kährs.
• Innvendige furupanel fra Moelven: 13 mm Sprekkpanel på vegger og himling, ubehandlet.
• Tidløs standard listverk, ubehandlet.
• Furu 3-speils innerdører, ubehandlet.
• Sperretak, A-takstoler eller W-takstol jfr. Tegning.
• Kjøkken fra Aubo Kjøkken av typen Unik NCS S 3502-Y, med laminat benkeplate og Slimline kjøkkenventilator (hvitevarer følger ikke med).
Elektrikerarbeid med utstyr iht. standard elektrikeroppsett. I utstyrsoversikt kan nevnes:
• Inntaksskap og kabel mellom inntak og sikringsskap.
• Sikringsskap m/overbelastningsvern, jordfeilautomater og overspenningsvern.
• EL-punkter (iht. NEK 400).
• Varmekabler med termostat og føler i vindfang og våtrom.
• Strømforsyning til seriekoblet røkvarslere m/backup batteri.
• Astrour-styrte utelamper. Spotter i vindfang, gang og bad. Taklampe i soverom og bod. Panelovner, stikkontakter, komfyrvakt og badstuovn.
Rørleggerarbeid med utstyr iht. standard rørleggeroppsett. I utstyrsoversikt kan nevnes:
• Bunnledninger (rør som ligger i betongplate innenfor ringmur fram til toalett, sluker osv.).
• Rette slagdører i dusjnisje evnt. dusjnisjedør (iht. tegning) med dusjgarnityr.
• Vegghengt toalett med innebygd sisterne.
• Unidrainsluk på bad.
• Baderomsinnredning m/skuffer, porselensvask og speil.
• Varmtvannsbereder 200 liter.
• 1-greps blandebatterier på kjøkken, bad og evnt. andre våtrom.
• Opplegg for tilkobling av kjøkkenbenk m/ 1-greps benkebatteri med høy tut, samt opplegg for tilkobling av oppvaskmaskin.
• Lekkasjesikring/vannstoppeventil.
Murerleveransen:
• Peisovn Origo m/glassplate montert på stålpipe
• Flislagt gulv i hall med 30x60 flis
• Flislagt gulv bad og badstue, med 30x60 flis
• Flislegging på vegger på bad med 30x60 flis
Oppgradering av leveransen:
• Sprekkpanel på vegger og himling beiset i en av Tinde sine standard beisfarger.
• Listverk og utforinger beiset i en av Tinde sine standard farger.
• Innerdører, vinduer, ytterdør og evnt. boddør malt i valgfri NCS-farge*
*Valgfri NCS-farge opp til S 7502.
Felles for alle leveransen:
- Tinde Hytter har ansvar for byggesøknadsprosessen.
- Utførelse og leveranse i henhold til dagens tekniske krav.
- Garanti: 10% av kontraktssum i byggeperioden, 5% i reklamasjonstiden (5 år).
- Kontrakt fra Norsk Standard 3425 (med henvisninger til Bustadoppføringsloven).
• Trykktestet i henhold til Tek 17
Prisen er for ferdig oppsatt hytte inkl. tomt og grunnarbeid. Tomteverdi (tomt 91) fra kr 1 000 000,- Verdi grunnarbeid estimert kr 620 000,-
For totalpris, div. avgifter og kostnader, se; https://www.tindehytter.no/hyttefelt/musdalsaeter-hogsvea-hyttefelt
Prisene er beregnet med SSB sin sist kjente indeks, og vil bli justert til enhver tids gjeldene indeks.
Det tas forbehold om endelig godkjenning fra kommunen.
Salgsoppgaven beskriver vesentlig og lovpålagt informasjon om eiendommen
Se komplett salgsoppgaveNærområdet
Tindehytter AS
Annonsene kan være mangelfulle i forhold til lovpålagt opplysningsplikt. Før bindende avtale inngås oppfordres interessenter til å innhente komplett informasjon fra meglerforetaket, selger eller utleier.























