Bildegalleri

Framside av huset
Dragsundråsa 11 og 12, 6080 Gurskøy (Dragsund)
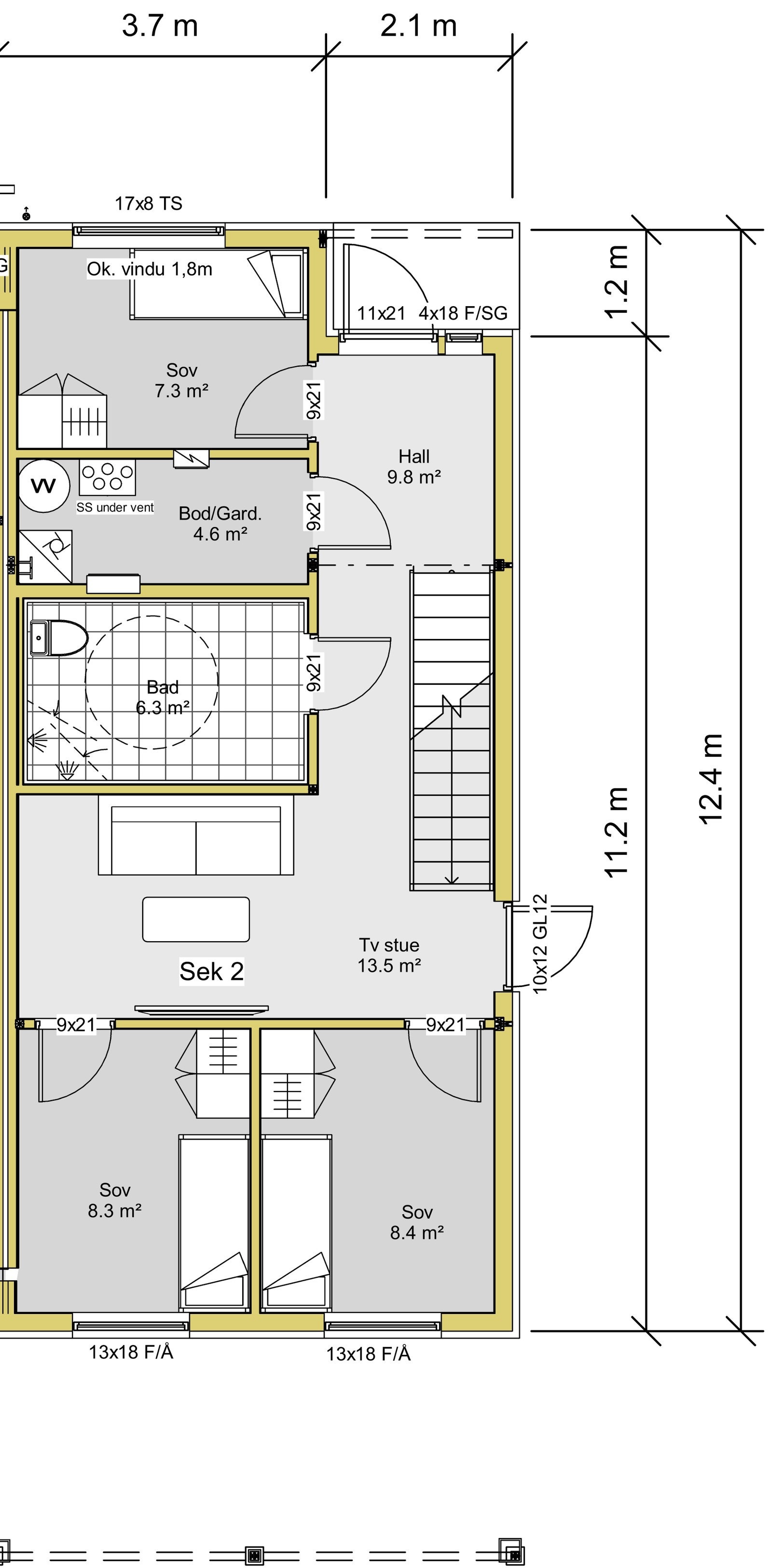
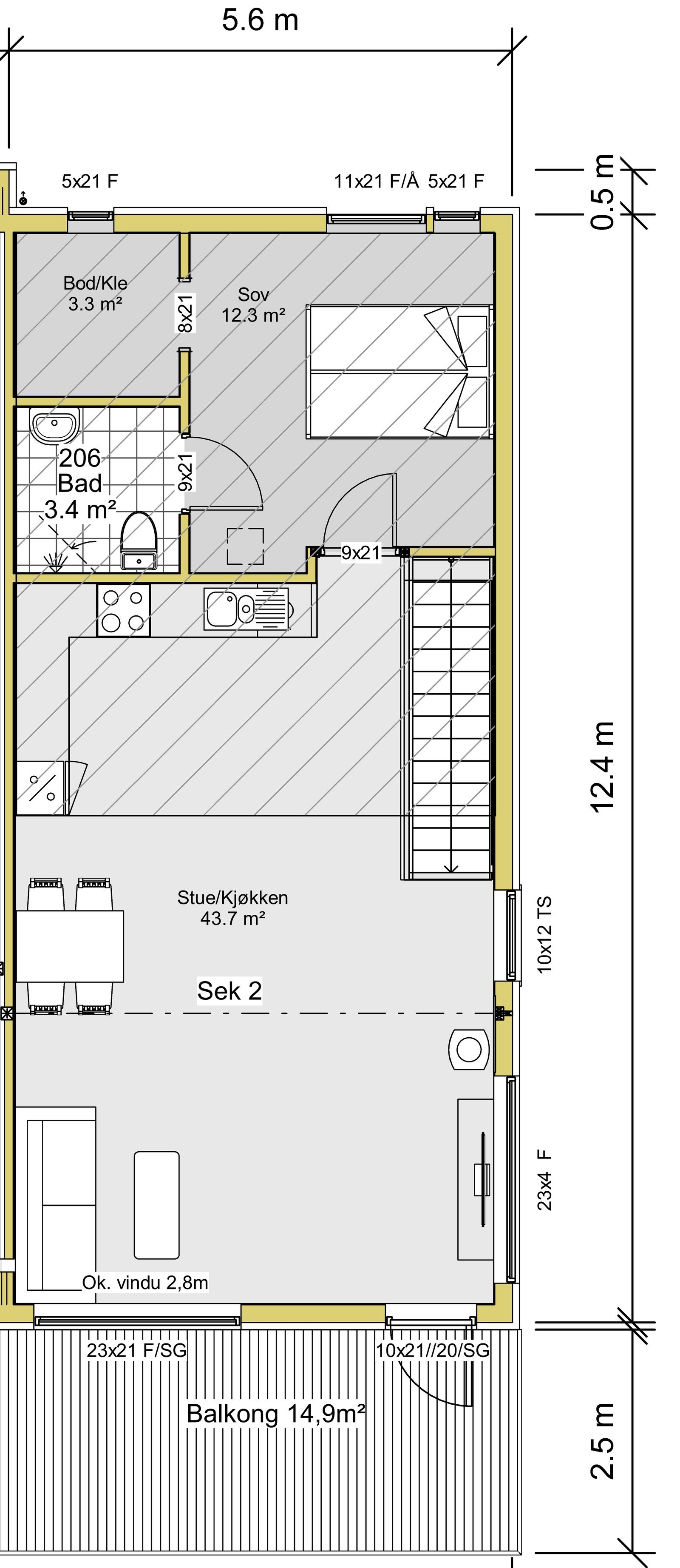
Bustad over to plan med fire soverom, Dragsundråsa 12, 6080 Gurskøy (Dragsund)
Kort om prosjektet
Dette er eit nytt bustadfelt i Dragsund. Denne tomannsbustadane er stor og moderne. Her er stove, TV-stove, tre soverom, Mastersoverom med eige bad og klesrom, kjøken, terrasse med glasrekkverk, bad, bod, carport og sportsbod.
Prosjektets status
Planlegging
Klart for å starte bygginga av huset
Salgsstart
Salget er i gang.
Byggestart
Tømrerarbeidet startar ved eit salg.
Overtakelse
2025/2026
Nøkkelinfo
- Boligtype
- Tomannsbolig
- Etasje
- 2
- Soverom
- 4
- Rom
- 6
- Primærrom
- 118 m²
- Bruksareal
- 131 m²
- Energimerking
- B - Oransje
Fasiliteter
Visning
Ta kontakt for å avtale visning.Beskrivelse
Stor og moderne tomannsbustad med, to opphaldssoner med stove i 2.etg og TV-stove i 1.etg. Det er heile fire soverom i dette huset. Det er og kjøken, terrasse med glasrekkverk, bad, bod, carport og bod.
Bustaden har moderne utforming med lyse overflater og god kvalitet på materialar. Kjøken- og baderomsinnreiing er frå Nordsjø og er levert av Hygge Design AS i Volda.
Bustaden ligg i eit etablert bustadområde med sentral plassering. Det er gåavstand til m.a. butikkar, busstopp, skule, idrett og rekreasjonsområde, leikeplass m.m.
Nærområdet
Mesterhus Sunnmøre
Annonsene kan være mangelfulle i forhold til lovpålagt opplysningsplikt. Før bindende avtale inngås oppfordres interessenter til å innhente komplett informasjon fra meglerforetaket, selger eller utleier.









