Bildegalleri

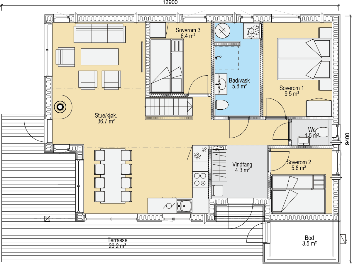
Nordmarka Nord | prosjektert nøkkelferdig hytte med hems og 3 store soverom, inkl. tomt og grunnarbeid
- Omkostninger
- 31 090 kr
- Totalpris
- 5 211 090 kr
Nøkkelinfo
- Beliggenhet
- På fjellet
- Boligtype
- Hytte
- Eieform
- Eier (Selveier)
- Tomt
- Eiet
- Soverom
- 3
- Rom
- 4
- Meter over havet
- 644
Fasiliteter
Visning
Ta kontakt for å avtale visning.Om eiendommen
Beliggenhet
Nøkkelferdige hytter inkl. tomt med bra standard. Hyttene ligger åpent og pent til med flott utsikt mot Mylla!
Adkomst/Tomteforhold
Fra Oslo Vest: Riksvei 7 fra Sandvika til Hønefoss. Forbi Hønefoss og følg E16 mot Gardermoen. Følg E16 forbi Hadeland Glassverk, etter 6 km så går Gjerdingsvei inn til høyre. Etter ca 2 km første avkjøring til høyre, følg skilt.
Fra Oslo Øst: Riksvei 4 til Roa, i rundkjøringen ta E16 mot Hønefoss/Jevnaker. Etter ca 8 km kommer en viltovergang. Gjerdingsvei er første vei inn til venstre etter denne. Kjør ca 2 km, første avkjøring til høyre og følg skilt.
Generelt
Hyttefeltet består av frittstående tomter og to tunfelt, hvor det er prosjektert fire hytter pr.tunfelt.
Tomtene ligger like ved Myllavannet og de ligger høyt og fritt i terrenget. Tomtene har pen utsikt og gode solforhold. Tomtene vil få alt av moderne fasiliteter som bla. helårsvei, tilknytning til felles privat vann og avløp og strøm. Tomtene bebygges med to av våre modeller, Venabu og Danebu 80 m/hems.
Nøkkelferdig hytte Danebu 80 med hems
Komplett nøkkelferdig hytte inkludert tomt. Utvendig leveres hytta med stående tett låvepanel i mix bredder,
ytterkledning leveres grunnet i fargen røykgrå. Taket tekkes med shingel. Dører og vinduer er gråmalt.
Utvendig leveranse kort fortalt
• Shingel på taket
• Låvepanel mix bredder, grunnet
• Gråmalte vinduer og dører
• Takrenner i sort stål
• Stor terasse på 20,9 m2
• Utelamper
• Frostfri utekran
• Utvendig uisolert bod
Innvendig benyttes det beiset sprekkpanel fra Moelven i fargen Skigardsgrå og eikeparkett fra Kährs.
I vindfang og på bad leveres det fliser og varmekabel. Peisovn leveres av Nordpeis og blir plassert
som inntegnet på plantegninger.
Innvendig leveranse kort fortalt
• Gråmalte 3-speils innerdører
• Eikeparkett Kährs Eik Abetone hvitlasert matt lakkert 3-stavs
• Innvendig panel beiset i fargen Skigardsgrå
• Listverk og utforing er beiset i samme farge som vegg
• På bad er det fliser i format 30×60 og grå farge
• I hall er det fliser i format 30×60 og grå farge
• Varmekabler i vindfang og våtrom
• Taklamper i soverom
• Downlights i vindfang og baderom
• Panelovner på soverom
• Komfyrvakt
• Peisovn med glassplate foran ovn
Tomteverdi kr. 1 200 000,-
Se komplett leveransebeskrivelse på side 21 i prospektet.
Hytteleveransen vil indeksreguleres frem til oppstart på byggeplass.
Salgsoppgaven beskriver vesentlig og lovpålagt informasjon om eiendommen
Se komplett salgsoppgaveNærområdet
Tindehytter AS
Annonsene kan være mangelfulle i forhold til lovpålagt opplysningsplikt. Før bindende avtale inngås oppfordres interessenter til å innhente komplett informasjon fra meglerforetaket, selger eller utleier.

















