Bildegalleri

Velkommen til Øvre Burevei 12 - Hytte med enkel standard på stor tomt - Oppgraderingsbehov!
Storsand - Hytte beliggende i landlige omgivelser - Flotte turområder - Oppussingsbehov - 45 min fra Oslo
- Omkostninger
- 31 264 kr
- Totalpris
- 831 264 kr
- Kommunale avg.
- 2 159 kr per år
- Verditakst
- 800 000 kr
Nøkkelinfo
- Beliggenhet
- Ved sjøen
- Boligtype
- Annet fritid
- Eieform
- Eier (Selveier)
- Primærrom
- 35 m²
- Bruksareal
- 37 m²
- Tomteareal
- 3 370 m² (festet)
- Festeår
- 2057
- Festeavgift
- 4 460 kr
- Byggeår
- 1967
- Soverom
- 2
- Rom
- 3
- Sengeplasser
- 5
- Energimerking
- G - Oransje
Fasiliteter
Visning
Husk å lese komplett salgsoppgave før visning. Bestill komplett, utskriftsvennlig salgsoppgave.
VisningspåmeldingOm boligen
Velkommen til Øvre Burevei 12 - Usjenert fritidseiendom beliggende i flott skogsterreng med ubegrensede turmuligheter. Eiendommen ligger i etablert hyttefelt, og det er få kilometer til Oslofjorden og flotte badeplasser.
Eiendommen er bestående av hytte med oppussingsbehov, stor terrasse, og frittstående utebod. Tomten er i hovedsak naturtomt og skogsterreng, men noe opparbeidet rundt hytta. Gode parkeringsmuligheter på tomten.
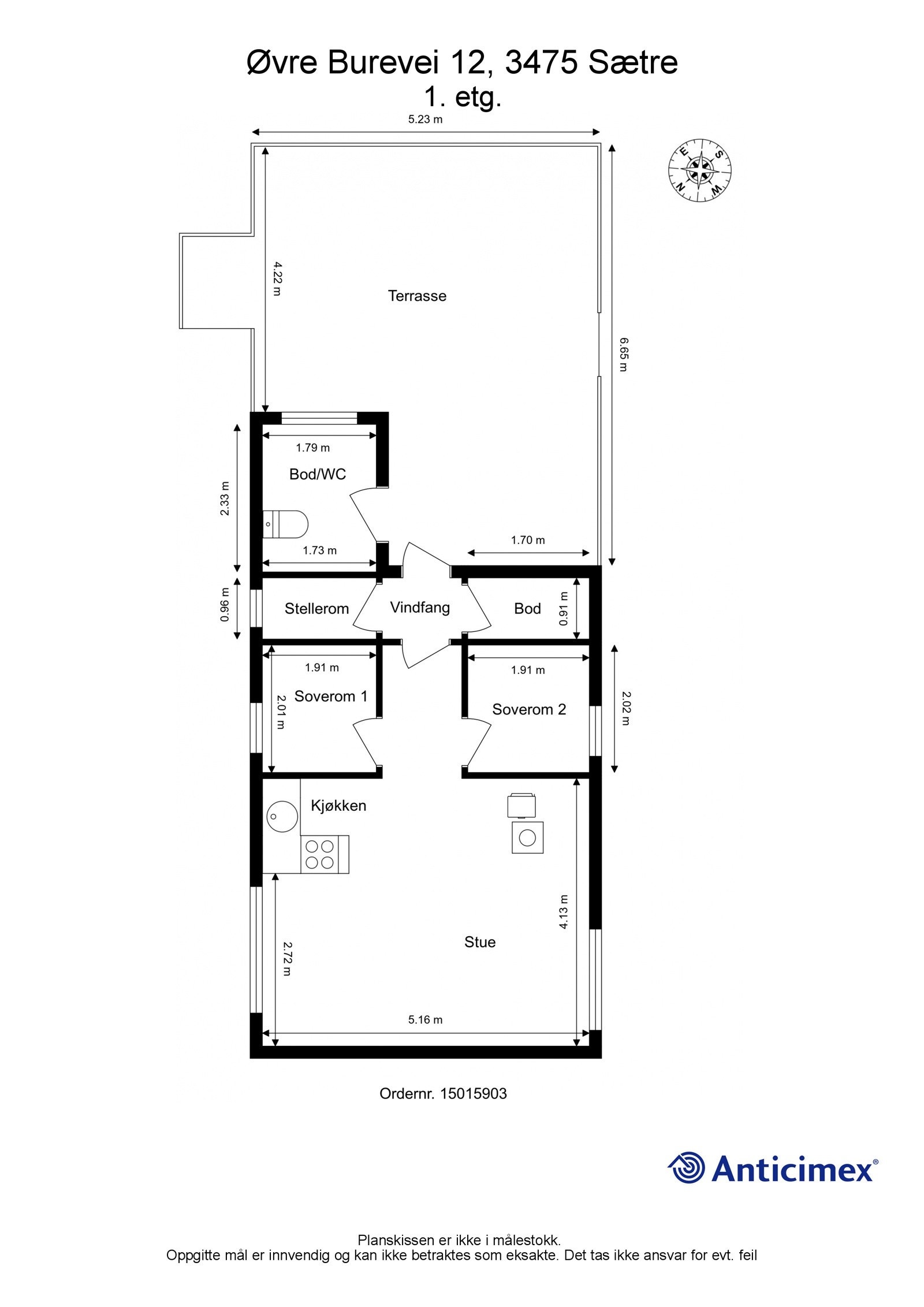
Hytta har enkel standard og inneholder: Stue med peis og vedovn. Kjøkken i åpen løsning mot stue. 2 soverom, entré og 2 boder. Stor bod i tilknytning til hytta med muldo. I tillegg frittstående bod med plass til utemøbler.
Fin pendleravstand fra Drammen og Oslo - Kort kjøretur til Tofte eller Sætre med de fleste butikker og servicetilbud.
Velkommen til visning!
Salgsoppgaven beskriver vesentlig og lovpålagt informasjon om eiendommen
Se komplett salgsoppgaveNyttige lenker
Nærområdet

FREM EIENDOMSMEGLING
Annonsene kan være mangelfulle i forhold til lovpålagt opplysningsplikt. Før bindende avtale inngås oppfordres interessenter til å innhente komplett informasjon fra meglerforetaket, selger eller utleier.






























