Bildegalleri

PrivatMegleren Aksept v/ Marte Førde har gleden av å ønske velkommen til Trondheimsveien 14C!
Lys og arealeffektiv leilighet innredet til utleieformål - Lave fellesutgifter - Attraktiv & sentral beliggenhet!
Nøkkelinfo
- Boligtype
- Leilighet
- Eieform
- Eier (Selveier)
- Soverom
- 3
- Primærrom
- 36 m²
- Bruksareal
- 36 m²
- Etasje
- 3
- Byggeår
- 1878
- Energimerking
- F - Rød
- Rom
- 3
- Tomteareal
- 682 m² (eiet)
- Bruttoareal
- 40 m²
- Boligselgerforsikring
- Ja
Fasiliteter
Om boligen
Velkommen til visning i Trondheimsveien 14C!
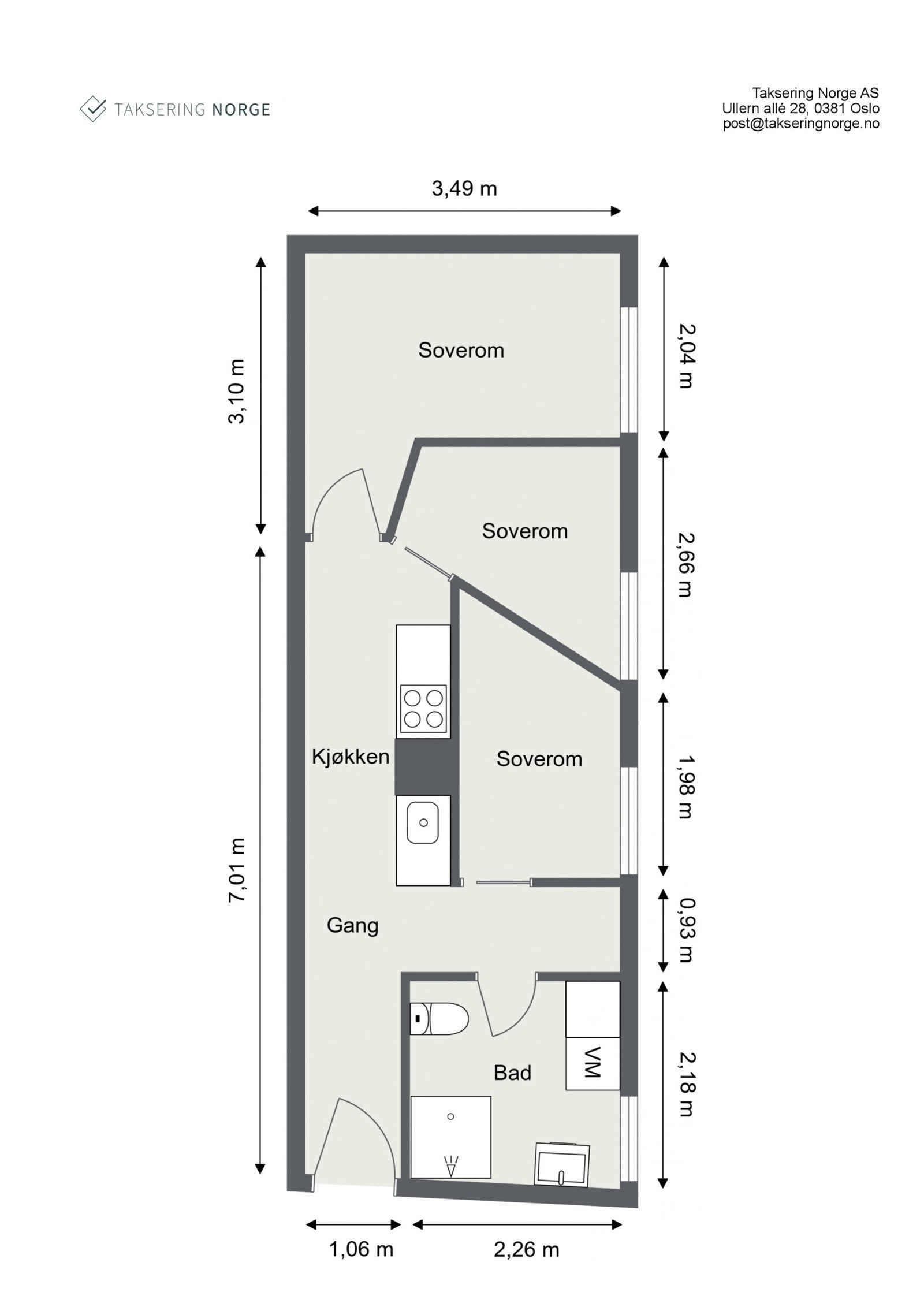
Dette er en lys og arealeffektiv selveierleilighet med som opprinnelig har vært en 2-roms leilighet, men som er i dag innredet til utleieformål med tre rom samt kjøkken og bad. Hele leiligheten vender i sin helhet mot indre gårdsrom. Dersom det er ønskelig å etablere stue, foreligger det opplysninger fra forrige eier at det er satt opp lettvegger som er enkle å ta ned.
Kvaliteter:
- Lave felleskostnader
- Mulighet for utleie
- Sentral og attraktiv beliggenhet
- God himlingshøyde på 3,2m
- Store vinduer som gir gode lysforhold
- Smarte arealeffektive løsninger
- I følge tilstandsrapporten er rommene i boligen omtalt som soverom da rommene tilfredsstiller krav for minste volum (15 m³ iht teknisk forskrift) og er innredet og i bruk som soverom.
Salgsoppgaven beskriver vesentlig og lovpålagt informasjon om eiendommen
Se komplett salgsoppgaveNyttige lenker
Nærområdet

PrivatMegleren Aksept
Annonseinformasjon
| FINN-kode | 228649983 |
|---|---|
| Sist endret | 09. okt. 2021 11:38 |
| Referanse | 92210234 |
Annonsene kan være mangelfulle i forhold til lovpålagt opplysningsplikt. Før bindende avtale inngås oppfordres interessenter til å innhente komplett informasjon fra meglerforetaket, selger eller utleier.
























