Bildegalleri

Flott tømmerhytte med 2. etasje
Trysilfjellet, Mosetra 2, salgstrinn 4; Stor tømmerhytte under planlegging for kunde.
- Omkostninger
- 25 000 kr
- Totalpris
- 9 525 000 kr
Nøkkelinfo
- Beliggenhet
- På fjellet
- Boligtype
- Hytte
- Eieform
- Eier (Selveier)
- P-plasser
- 2
- Primærrom
- 139 m²
- Bruksareal
- 139 m²
- Tomteareal
- 1 000 m² (eiet)
- Byggeår
- 2021
- Soverom
- 5
- Sengeplasser
- 10
- Meter over havet
- 700
Fasiliteter
Visning
Ta kontakt for å avtale visning.Om eiendommen
Beliggenhet
Trysilfjellet, Mosetra 2, salgstrinn 4 med turterrenget rett på utsiden av døren, og kort vei til alpinanlegg.
Se: www.trysil.com/no/A/Skistar-Trysil/
Trysilfjellet, Mosetra 2, salgstrinn 4; Stor tømmerhytte under planlegging for kunde. Vi har tilgang til flotte, ferdigregulerte tomter på Mosetra 2, Salgstrinn 4.
PRISEN ER INKLUDERT TOMT PRISET TIL KR 2.750.000.
Vi har denne tømmerhytten under planlegging for kunde. Tømmerbygget er allerede ferdigprodusert hos vår produsent. Igangsetting våren 2025 hvis hurtig avgjørelse.
Vi har tilgang til flotte, ferdigregulerte tomter på Trysilfjellet. OM du har egen tomt, kan vi levere og bygge den på din tomt.
Dette er en svært flott tømmerhytte fra vår kvalitetsprodusent i Latvia. Garantert håndlaftet, og av garantert mer enn 100 år gamle furutrær.
Rettvokst, fri for venstrevridd tømmer. Tørket og bygget etter norske byggekrav. Vi har bygget mange hytter fra denne produsenten, for svært tilfredse kunder.
Hytta står på produsentens lager, klar til transport og montasje på norsk tomt.
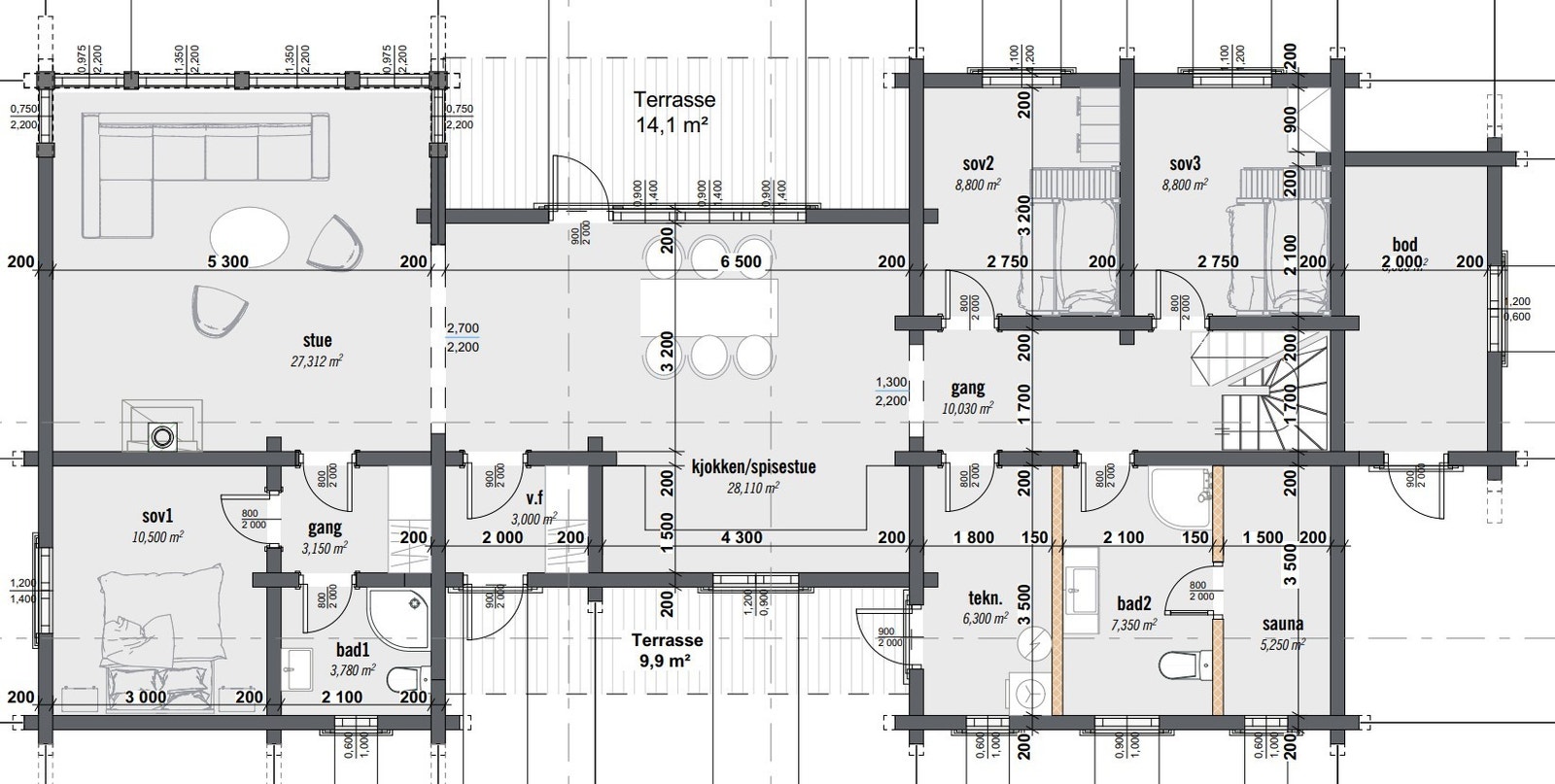
Hytta er på hele 139,4 m2 BRA. Hovedetasje med kjøkken/spisestue/stue i åpen løsning på 55,4m2. Eget mastersoverom med tilstøtende bad og hall/gang, i tillegg 2 gode soverom, stort bad med tilstøtende sauna, stort teknisk rom/vaskerom og sportsbod.
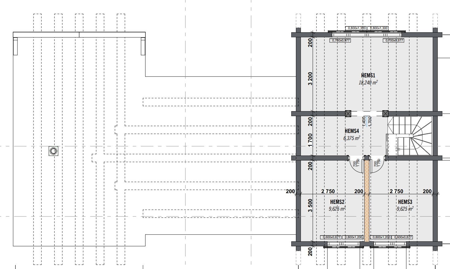
2.etasje med stor TV-stue, arbeidsplass og 2 gode soverom.
Unike materialer, og kvalitetsmessig høy utførelse på innredning, dører, vinduer og belisting. 1 – en – stavs eikeparket på alle gulv, fliser i vindfang og alle våtrom. Utførelser som på vedlagte fotos. Torvtak.
Ta kontakt for videre planlegging!
Generelt
Hytta bygges håndlaftet etter norsk lafteteknikk og med stor nøyaktighet i henhold til norsk standard for laftebygg – Byggforsk nr. 523291, versjon 1-2006. Bygget av 8" ikke venstrevridd furutømmer med min. 70% kjerneved, forskriftsmessig tørket til ca. 18-19% fuktighet.
Kort fortalt:
- Stue og loftstue/tv-stue.
- 5 soverom.
- 2 bad.
- Badstue.
- Lekkert HUSEBY-Kjøkken med hvitevarer fra Electrolux.
- Lekker HUSEBY-baderomsinnredning på alle bad.
- Schiedel ildsted.
Velfungerende og sosial planløsning hvor kjøkken / spisestue ligger i direkte tilknytning til hyttenes flotte peisestue. Hyttene er tegnet ut fra erfaring om best mulig utnyttelse av plassen.
Store vindusflater gir en svært god romfølelse og et fantastisk lys.
Adkomst/Tomteforhold
Selveiertomt.
Innhold
Planløsning:
1. etasje: Stue 27,31m2, kjøkken/spisestue 28,11m2, master-soverom-gang og bad 10,5/3,15/3,78m2 . Gjestesoverom 1 på 8,8m2. Gjestesoverom 2 på 8,8m2. Gang/hall 10,0m2. Bad 7,35m2, sauna 5,25m2, teknisk rom/vaskerom 6,3m2
2. etasje: Loftstue/TV-stue på 18,24m2, soverom 4 på 9,63m2 og soverom 5 på 9,63m2. Hemsgang/arbeidsplass på 6,38m2.
Standard
Dette er en stor, rommelig hytte med god plass for familie og venner, tegnet som H-hytte, - hytte med svært gode planløsninger med god utnyttelse av arealene. Stort Huseby-Kjøkken kombinert med spisestue tilknyttet flott peisestue.
Hytta er bygget med gode løsninger som gir store vinduer og mye lys inn i stuen. Stort master -soverom med tilknyttet bad, gjestesoverom med tilknytning til stort bad med badstue. 2. etasje med rommelig loftstue, arbeidsplass og 2 gode soverom.
Ta kontakt med megler for komplett informasjon
Nærområdet
ENA BYGG AS
Annonseinformasjon
| FINN-kode | 220660742 |
|---|---|
| Sist endret | 07. jan. 2025 14:52 |
| Referanse | Trysil/JIH/ |
Annonsene kan være mangelfulle i forhold til lovpålagt opplysningsplikt. Før bindende avtale inngås oppfordres interessenter til å innhente komplett informasjon fra meglerforetaket, selger eller utleier.
























