Bildegalleri

Velkommen til Sømveien 33 F, et rekkehus over 3 plan i et meget attraktivt og barnevennlig boligområde
Solgt
Kjelsås/Grefsen
Rekkehus med meget attraktiv, barnevennlig og solrik beliggenhet. God planløsning. Garasje. Oppussing
Prisantydning11 000 000 kr
Nøkkelinfo
- Boligtype
- Rekkehus
- Eieform
- Eier (Selveier)
- Soverom
- 3
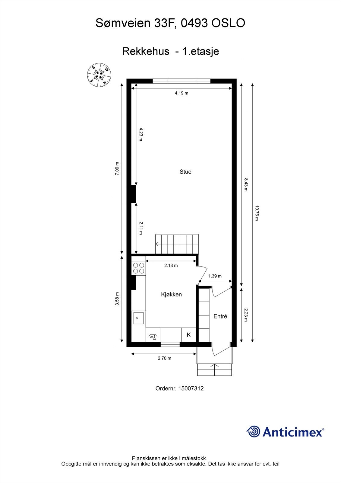
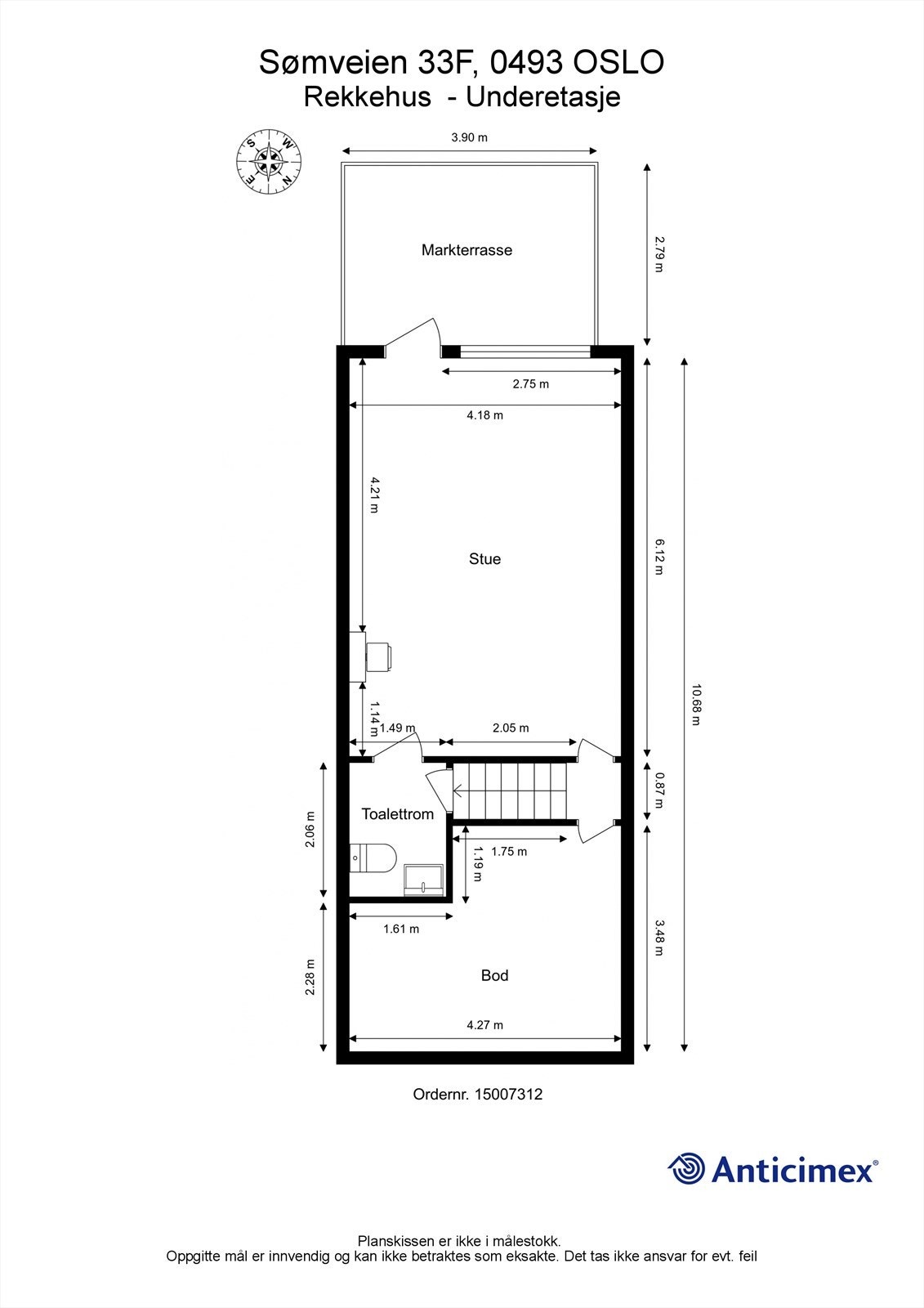
- Internt bruksareal
- 136 m² (BRA-i)
- Bruksareal
- 136 m²
- Balkong/Terrasse
- 11 m² (TBA)
- Byggeår
- 1961
- Energimerking
- G - Oransje
- Rom
- 5
- Tomteareal
- 44 640 m² (eiet)
Fasiliteter
Balkong/Terrasse
Barnevennlig
Bredbåndstilknytning
Garasje/P-plass
Hage
Peis/Ildsted
Rolig
Bademulighet
Om boligen
Innholdsrikt og lyst rekkehus i meget barnevennlig og populært boligområde på Kjelsås/Grefsen.
Boligen har flott planløsning og er meget innholdsrik med 3 soverom, 2 stuer, kjøkken med spiseplass, bad, wc og vaskerom og wc. Sydvestvendt beliggenhet med gode solforhold og flott utsyn fra boligen. Rekkehuset disponerer også en pent opparbeidet og romslig hage med skjermet platting, plen og beplanting og det er umiddelbar tilgang til stor fellesplen og lekeapparater.
Boligen har et generelt oppussingsbehov av de fleste flater, mens bygningsmassen utvendig holdes vedlike i regi av sameiet. Rekken ble drenert i 2012 og i 1997 ble det etterisolert og panel skiftet. Fasadene ble malt i 2020.
Garasje i felles garasjerekke medfølger.
Kort vei til alt av skoler, marka, forretninger og Akerselva
Boligen har flott planløsning og er meget innholdsrik med 3 soverom, 2 stuer, kjøkken med spiseplass, bad, wc og vaskerom og wc. Sydvestvendt beliggenhet med gode solforhold og flott utsyn fra boligen. Rekkehuset disponerer også en pent opparbeidet og romslig hage med skjermet platting, plen og beplanting og det er umiddelbar tilgang til stor fellesplen og lekeapparater.
Boligen har et generelt oppussingsbehov av de fleste flater, mens bygningsmassen utvendig holdes vedlike i regi av sameiet. Rekken ble drenert i 2012 og i 1997 ble det etterisolert og panel skiftet. Fasadene ble malt i 2020.
Garasje i felles garasjerekke medfølger.
Kort vei til alt av skoler, marka, forretninger og Akerselva
NB: Knappen for å vise hele beskrivelsen har kun en visuell effekt.
NB: Knappen for å vise hele beskrivelsen har kun en visuell effekt.
Salgsoppgaven beskriver vesentlig og lovpålagt informasjon om eiendommen
Se komplett salgsoppgaveNyttige lenker
Nærområdet
Krogsveen Grefsen
Verdien av en god megler.
Annonseinformasjon
| FINN-kode | 218428893 |
|---|---|
| Sist endret | 27. sep. 2025 21:24 |
| Referanse | KR41.2143 |
Annonsene kan være mangelfulle i forhold til lovpålagt opplysningsplikt. Før bindende avtale inngås oppfordres interessenter til å innhente komplett informasjon fra meglerforetaket, selger eller utleier.



















































