Bildegalleri
Flotte og moderne bustadar med overbygd altan.
OSE, Osflata 26 A-D, 6155 Ørsta
Flott og moderne bustad med to soverom og fin utsikt over Ørstafjorden
Kort om prosjektet
På Ose i Ørsta bygger vi eit bustadprosjekt med 22 bustadar. Av desse så er 15 selde, 14 ferdig og kundane har innflytta. No held vi på med hus 2. Det er ein moderne firemannsbustad. Her er ein av fire seld. Første bustad er planlagt ferdig 3/4.kv. 2026, og 1.kv. 2027.
Prosjektets status
Planlegging
Flott bustadprosjekt, 15 av 22 er selde!
Salgsstart
Februar 2026
Byggestart
Pågåande
Overtakelse
Fortløpande ved sal
Nøkkelinfo
- Boligtype
- Leilighet
- Etasje
- 1
- Soverom
- 2
- Rom
- 3
- Bruksareal
- 80 m²
- Energimerking
- B - Oransje
Fasiliteter
Visning
Ta kontakt for å avtale visning.Beskrivelse
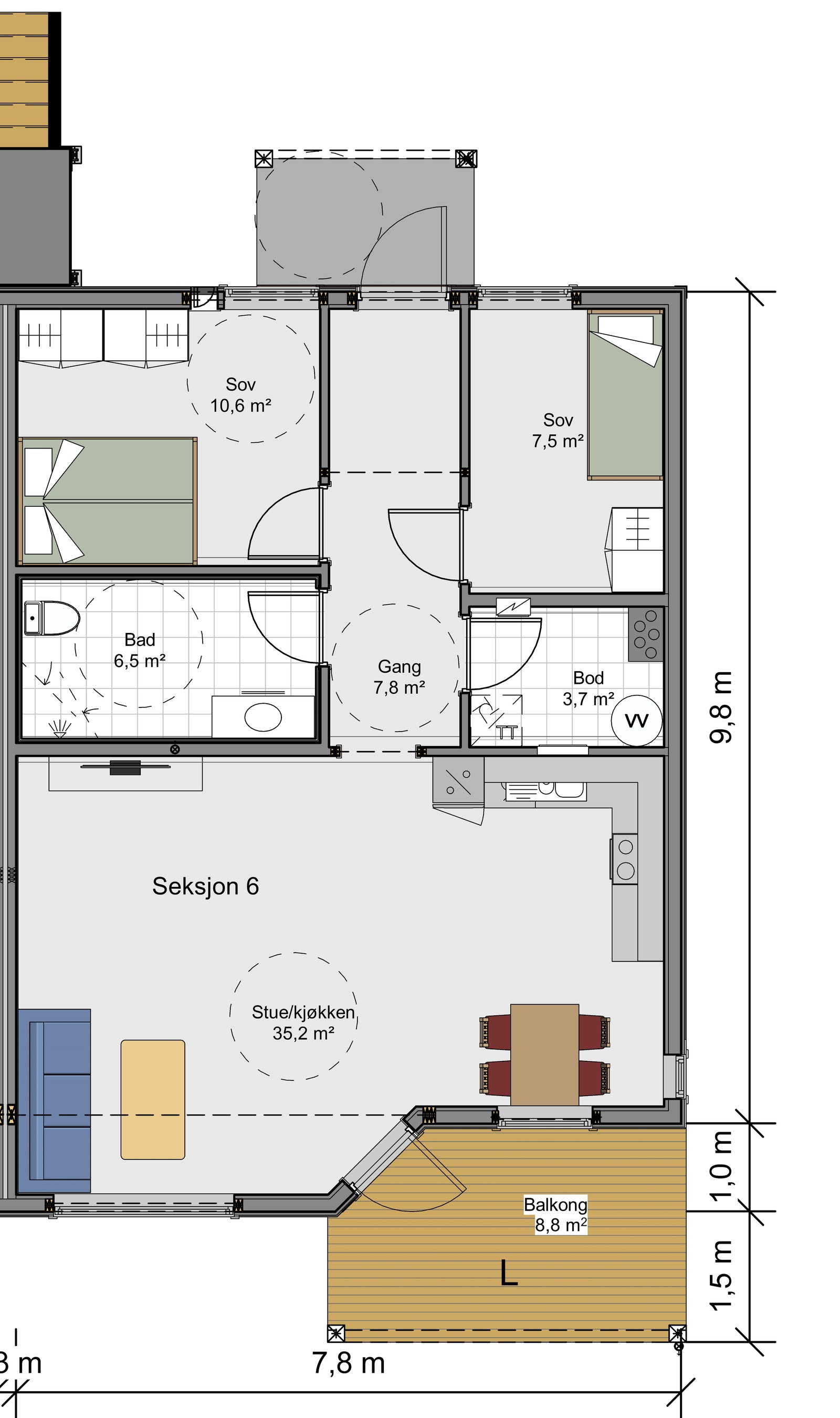
Sentral plassert bustad med gode planløysingar. Her er det ei romsleg stove med kjøken i den eine delen av stova.
Her er det to soverom, flislagt bad og ei bod for all dei tekniske installasjonene. Leilegheita vert levert nøkkelferdig, og det vil seie at du slepp å gjere eigeninnsats og at husvære er så ferdig at du kan berre vaske ned leilegheita og flytte rett inn.
Du betaler 100% av kontraktssum ved overtaking av bustaden!
Kjøpesummen inkluderer dokumentavgift til staten.
Nærområdet
Mesterhus Sunnmøre
Annonsene kan være mangelfulle i forhold til lovpålagt opplysningsplikt. Før bindende avtale inngås oppfordres interessenter til å innhente komplett informasjon fra meglerforetaket, selger eller utleier.


