Bildegalleri

Osetunet
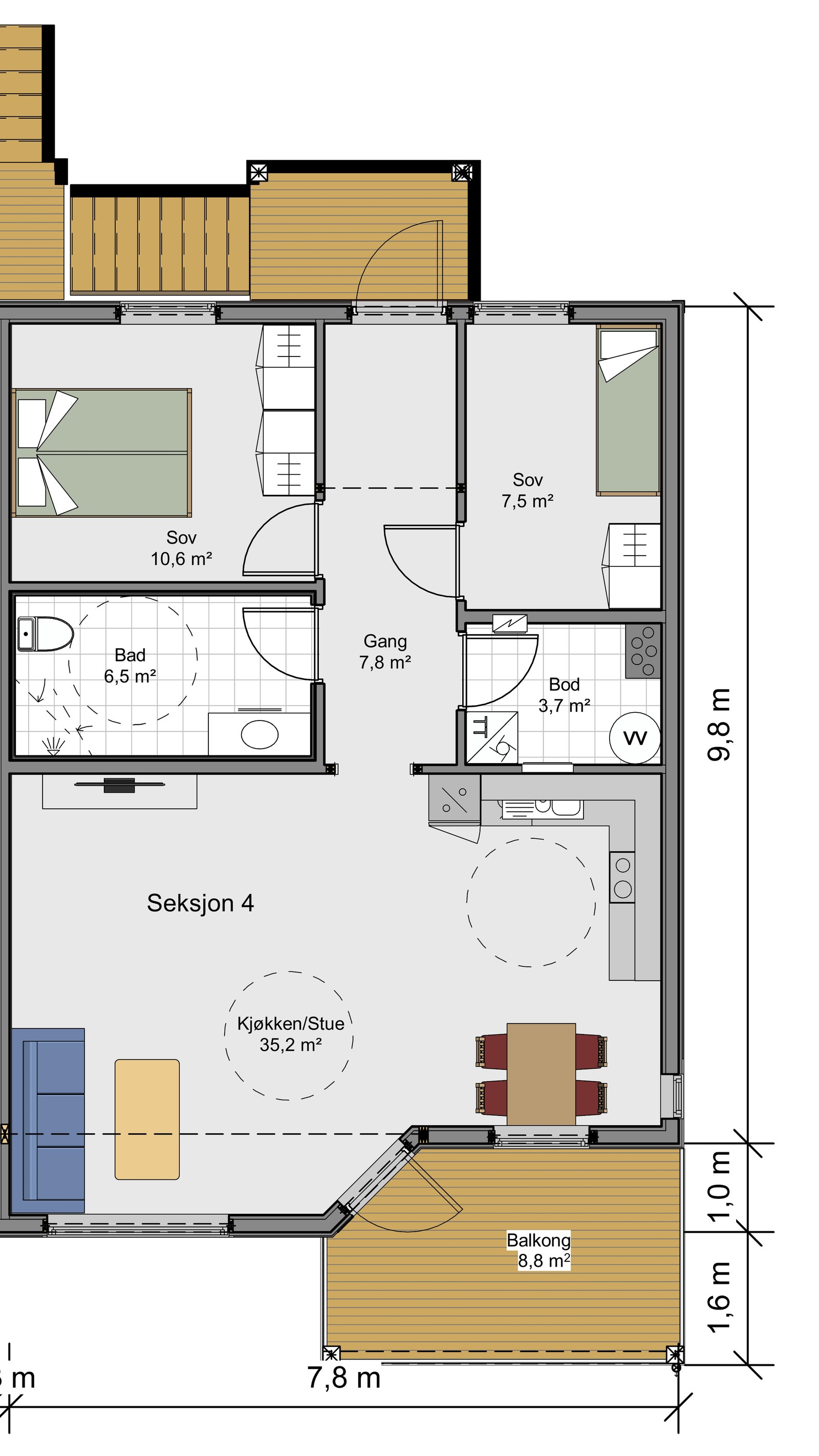
4 mannsbustad
Kort om prosjektet
På Ose i Ørsta skal vi bygge 22 bustader i det første byggetrinnet. 12 stk er ferdig og innflytta. Ei leilegheit i tomannbustad og ei leilegheit i ein 4-mannsbustad er omtrent klar for innflytting. Det er planlagt å bygge 8 leilegheiter i to nye 4-mannsbustader i neste byggetrinn
Prosjektets status
Planlegging
22 leilegheiter planlagt bygd
Salgsstart
Vår 2021
Byggestart
Pågåande
Overtakelse
Fortløpande ved sal
Nøkkelinfo
- Boligtype
- Leilighet
- Etasje
- 2
- Soverom
- 2
- Rom
- 3
- Bruksareal
- 80 m²
- Energimerking
- B - Oransje
Fasiliteter
Visning
Ta kontakt for å avtale visning.Beskrivelse
Sentrale leilegheiter med gode planløysingar. Her er det ei romsleg stove med kjøkken i den eine delen av stova.
Her er det to soverom, flislagt bad og ei bod for all dei tekniske innstallasjonane. Leilegheita vert levert nøkkelferdig, og det vil seie at du slepp å gjere eigeninnsats og at husvære er så ferdig at du kan berre vaske ned leilegheita og flytte rett inn.
Nærområdet
Mesterhus Sunnmøre
Annonsene kan være mangelfulle i forhold til lovpålagt opplysningsplikt. Før bindende avtale inngås oppfordres interessenter til å innhente komplett informasjon fra meglerforetaket, selger eller utleier.


