Bildegalleri

Sydvendt balkong med gode solforhold fra morgen til ettermiddag. Fungerer som en forlengelse av boligen store deler av året
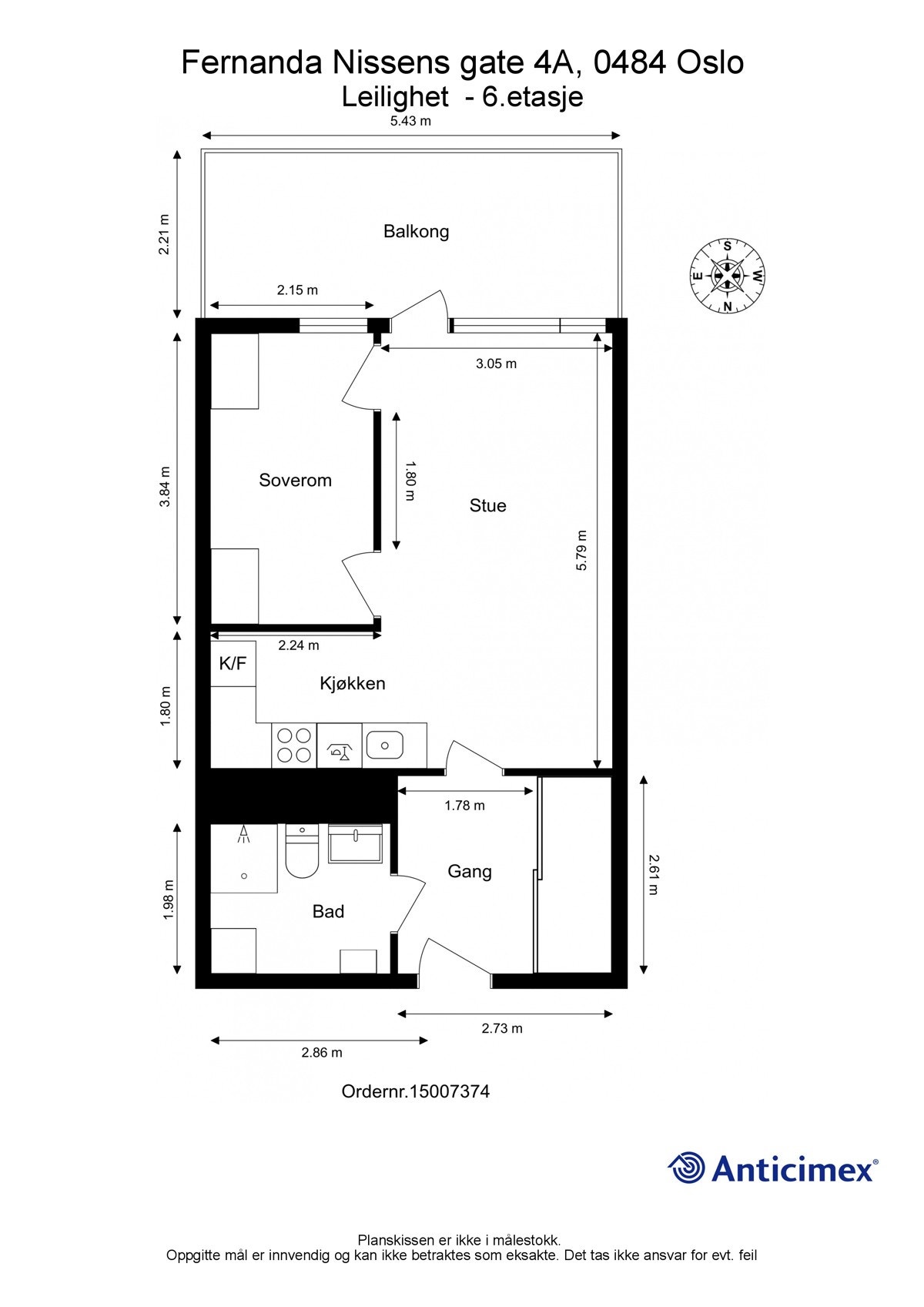
Stilren og moderne 2-R leilighet I Solrik balkong på 12m² I Heis I Garasje* I Lave felleskost. inkl. "alt" I Kun TG1
Nøkkelinfo
- Boligtype
- Leilighet
- Eieform
- Eier (Selveier)
- Soverom
- 1
- Primærrom
- 45 m²
- Bruksareal
- 45 m²
- Etasje
- 6
- Byggeår
- 2015
- Energimerking
- B - Mørkegrønn
- Rom
- 2
- Tomteareal
- 3 393 m² (eiet)
- Bruttoareal
- 49 m²
Fasiliteter
Om boligen
Moderne og stilren 2-roms leilighet med god planløsning i nybygg fra 2015. Boligen har en meget populær beliggenhet på Lillohøyden i Nydalen. Her bor man sentralt, men likevel tilbaketrukket og skjermet fra trafikk
- Sydvendt balkong med gode solforhold fra morgen til ettermiddag. Fungerer som en forlengelse av boligen store deler av året
- Flislagt bad med gulvvarme og opplegg for vaskemaskin
- HTH kjøkken
- Mye lagringsplass
- Heis
- Kjellerbod på 5m². Det er 2 felles sykkelboder i garasjeanlegget
- Varmtvann, fyring, internett og kabel-TV er inkl. i lave fellesutgifter
- Gode muligheter for kjøp og leie av garasjeplass i sameiet
- Ingen forkjøpsrett
- Kun 1-2 min gangavstand til nærmeste buss- og t-banestopp, matvarebutikk, apotek, vinmonopol, restauranter og Akerselva
Husk å melde deg på visning
Salgsoppgaven beskriver vesentlig og lovpålagt informasjon om eiendommen
Se komplett salgsoppgaveNyttige lenker
Nærområdet
Schala & Partners Torshov
Annonsene kan være mangelfulle i forhold til lovpålagt opplysningsplikt. Før bindende avtale inngås oppfordres interessenter til å innhente komplett informasjon fra meglerforetaket, selger eller utleier.







































