Bildegalleri

Eiendomsmegler Jannike Seljevoll Herleiksplass har gleden av å presentere denne flotte leiligheten på Ustedalen Hotell og resort
BUD MOTTATT -Geilo - Lys og pen toppleilighet med 3 soverom og 2 bad - Innflytingsklar - Garasjeplass -
- Omkostninger
- 101 392 kr
- Totalpris
- 3 801 392 kr
- Kommunale avg.
- 2 800 kr per år
- Felleskost/mnd.
- 1 886 kr
- Formuesverdi
- 800 000 kr
Nøkkelinfo
- Beliggenhet
- På fjellet
- Boligtype
- Leilighet
- Eieform
- Eier (Selveier)
- Primærrom
- 78 m²
- Bruksareal
- 80 m²
- Tomteareal
- 3 989 m² (eiet)
- Bruttoareal
- 88 m²
- Byggeår
- 2014
- Soverom
- 3
- Rom
- 5
- Energimerking
- B - Gul
Fasiliteter
Om boligen
Velkommen til populære Ustedalen!
Særdeles sentral beliggenhet med gangavstand til alle fasiliteter sommer og vinter. Et steinkast fra Geilo Sentrum, Geilo jernbanestasjon, Geilo Taubane/Geilosiden og Ustedalsfjorden rundt med flott turløype å ferdes i på ski, til fots eller på sykkelsetet. Kort avstand til alle skisentrene på Geilo.
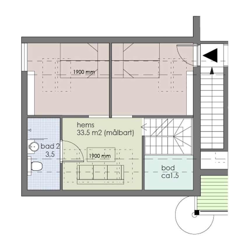
Leiligheten har fine praktiske løsninger og inneholder entré med garderobeoppheng, stue og kjøkken i åpen løsning med plass til spisebord og med store vinduer som gir flott naturlig lys. Soverom og lyst, pent flislagt bad. Bod under trappen. Trapp til leilighetens andre etasje fra entré. Her er det i dag innredet som tv stue i "gangen", bad, to soverom og kott-rom med tilgang fra tv stuen.
Med leiligheten følger også sportsbod.
Det enkle livet på høyfjellet!
Salgsoppgaven beskriver vesentlig og lovpålagt informasjon om eiendommen
Se komplett salgsoppgaveNyttige lenker
Nærområdet
Privatmegleren Herleiksplass & Partnere
Annonseinformasjon
| FINN-kode | 213081866 |
|---|---|
| Sist endret | 09. apr. 2023 14:09 |
| Referanse | 315210085 |
Annonsene kan være mangelfulle i forhold til lovpålagt opplysningsplikt. Før bindende avtale inngås oppfordres interessenter til å innhente komplett informasjon fra meglerforetaket, selger eller utleier.































