Bildegalleri

Hus 18 ligger som hus nr 3 fra venstre på rekken bakerst på bildet
Løkenåsen platå - Hus 15
Stor, innholdsrik enebolig i kjede over 3 plan, 171 m2 BRA
Kort om prosjektet
Velkommen til Løkenåsen Platå! Du har nå en unik mulighet til å sikre deg en flott enebolig i kjede med attraktiv beliggenhet. Boligene vil ha fire soverom, to stuer, to bad, dobbelgarasje og solrike terrasser. Her bor du både sentralt og landlig, med kort vei til alt du trenger.
Prosjektets status
Planlegging
-
Salgsstart
-
Byggestart
Kun innvendige arbeider som gjenstår!
Overtakelse
Overlevering etter avtale
Nøkkelinfo
- Boligtype
- Enebolig
- Etasje
- 3
- Soverom
- 4
- Rom
- 6
- Internt bruksareal
- 170 m² (BRA-i)
- Bruksareal
- 170 m²
- Energimerking
- B - Rød
Fasiliteter
Beskrivelse
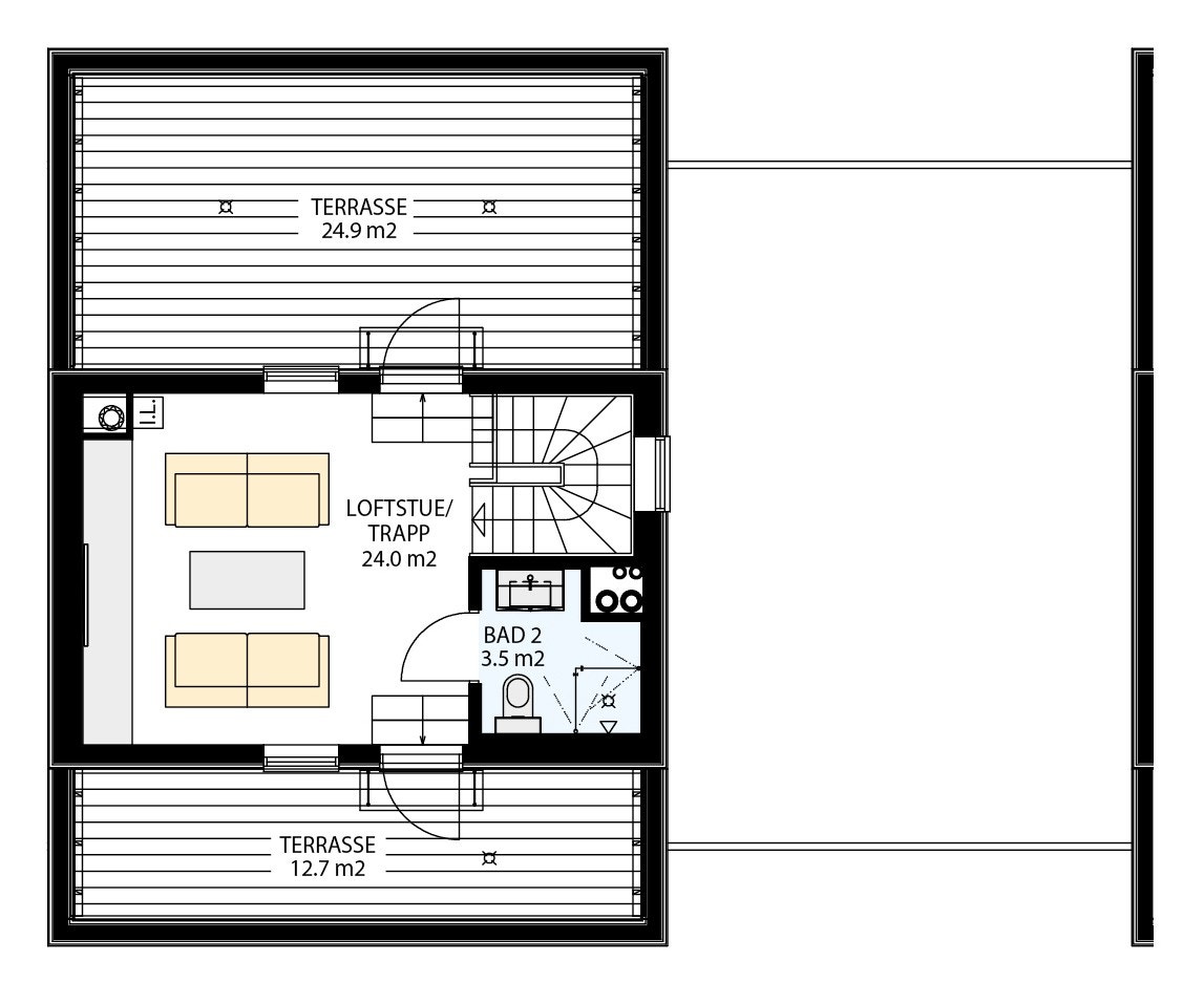
Hus 18 har en solrik og flott takterrasse over dobbel garasje og får en fantastisk utsikt.
Ut fra loftstua i 3. etasje er det store takterrasser på begge sider hvor både morgensol og kveldssol kan nytes i fulle drag.
Nyttige lenker
Nærområdet
OBOS Block Watne AS
Annonsene kan være mangelfulle i forhold til lovpålagt opplysningsplikt. Før bindende avtale inngås oppfordres interessenter til å innhente komplett informasjon fra meglerforetaket, selger eller utleier.







