Bildegalleri

Løkjestaulkilsvegen 46 med fantastisk utsikt mot Gaustablikk, Skipsfjell, Vestfjorddalen og Gaustatoppen. Foto av 21.09.2022
GAUSTATOPPEN Helt ny fritidsbolig. 2 plan. 153 m² gulvareal. 2 stuer 4 sov 2 bad badstue. Ski inn/ut. Lav kjøpsomkost
- Omkostninger
- 54 507 kr
- Totalpris
- 7 554 507 kr
Nøkkelinfo
- Beliggenhet
- På fjellet
- Boligtype
- Hytte
- Eieform
- Eier (Selveier)
- Primærrom
- 118 m²
- Bruksareal
- 124 m²
- Tomteareal
- 828 m² (eiet)
- Byggeår
- 2020
- Soverom
- 4
- Rom
- 6
- Energimerking
- C - Oransje
Fasiliteter
Om boligen
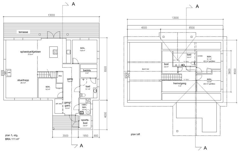
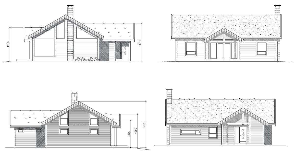
Nyoppført og innflyttingsklar fritidsbolig. Ferdigstilt og klar til bruk. Innholdsrik og gjennomtenkt planløsning. Innvendig gulvareal utgjør ca. 153 m². Store terrasser mot vest og nord. Stor stue og spisestuedel. Sentralt plassert kjøkken. Herlig takhøyde. Lekre vindusløsninger. Meget god standard levert av lokale, erfarne håndverkere ved Flaata Entreprenør AS. Smart planløsning: storstue + hemsstue, 4 soverom, 2 bad, badstue, separat vaskerom samt gode lagringsrom.
Flott beliggenhet ved skisenteret og Svartdalsløypa. Flott utsikt mot Gaustatoppen, Gaustablikk og fjellheimen ved Hardangervidda. Kort vei til senterområder, restaurant, skiutleie mm.
Lav kjøpsomkost. for ny hytte, kun 2,5% dok.avgift på andel tomteverdi hvilket gir over 100 000,- i sparte kjøpsomkostninger.
Salgsoppgaven beskriver vesentlig og lovpålagt informasjon om eiendommen
Se komplett salgsoppgaveNyttige lenker
Nærområdet
Sem & Johnsen
Annonseinformasjon
| FINN-kode | 201780538 |
|---|---|
| Sist endret | 07. okt. 2022 06:34 |
| Referanse | 133200982 |
Annonsene kan være mangelfulle i forhold til lovpålagt opplysningsplikt. Før bindende avtale inngås oppfordres interessenter til å innhente komplett informasjon fra meglerforetaket, selger eller utleier.


























































































