Bildegalleri

RØLDAL, NY PRIS: Prosjektert familiehytte i Håradalen med ski in/out. Flott utsikt over Håradalen
- Omkostninger
- 40 000 kr
- Totalpris
- 4 340 000 kr
Nøkkelinfo
- Beliggenhet
- På fjellet
- Boligtype
- Hytte
- Eieform
- Eier (Selveier)
- P-plasser
- 2
- Primærrom
- 95 m²
- Bruksareal
- 95 m²
- Tomteareal
- 720 m² (eiet)
- Byggeår
- 2021
- Soverom
- 5
- Meter over havet
- 600
- Energimerking
Fasiliteter
Visning
Ta kontakt for å avtale visning.Om eiendommen
Beliggenhet
Tomta ligger vakkert til øverst i Håradalen i Røldal, med nydelig utsikt utover Røldal og Håra.
Generelt
Fantastisk beliggenhet i Håradalen i umiddelbar nærhet til Alpinanlegg og turområder
Hytten er praktisk innredet med høg standard, gjennomtenkte løsninger og effektiv planløsning.
Tomta ligger 20 sekund med ski til transportheisen ved Røldal Skisenter, som byr på mange flotte opplevelser enten på alpint, langrennski eller til fots.
Fra Røldal kan ein velge mellom turer til over 50 fjelltopper på over 1000 meter, eller ein rolig tur rundt lysløypa i Bygda
Adkomst/Tomteforhold
Innkjørsel ved transporttrekket til Røldal Alpinanlegg.
Om iForm Hytta
Velkommen til iFormHytta
Hytta for deg som prioriterer ei aktiv og positiv fritid, for deg sjølv, familie og vener.
iFormHyttene er på alle måter tilrettelagt for ei aktiv og posetiv fritid, og det å vera iForm. Hyttene er forma slik at dette skal vera lettare å oppnå enn i andre hytter.
Hyttene har god plass og utstyr til f.eks. preparering av ski og tørking av klær, til rom som er tilrettelagt for spel og kosepreik.
Sjekk ut:
www.iformhytta.no
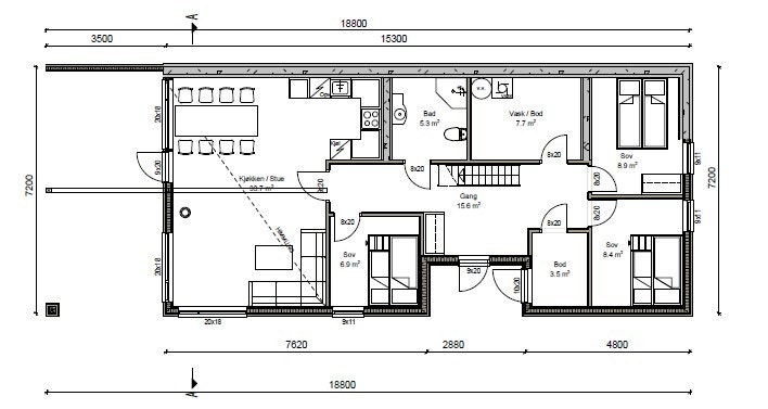
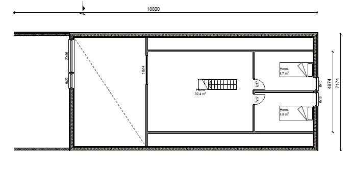
Innhold
- 3 soverom (pluss 2-3 på hems)
- 1 bad
- 1 Vaskerom
- Romslig stue og kjøkken
- Stort takoverbygg over terrasse
- Flotte utsiktsvinduer
Standard
UTVENDIG
Generell høy standard
- Kledning leveres som svartgrunnet låvepanel
- Yttertak leveres med torv
- Swedoor Barents tett ytterdør til inngang og bod, svart utførelse
- Svartmalte vinduer og terrassedør innv og utv
- Støpt såle ved inngangsparti
INNVENDIG
Generell høy standard
- Alle innvendige himlinger og vegger leveres med 13x120mm kvitlassert glattpanel
- Parkett på gulver Vestheim 3-stavs mix kvit
- Fliser på baderomsgulv FK Pro Travertine Antracite Rustic (Matt) 30x60 flis
- Fliser i entre og sportsbod, RAK Lotus Ivory 30,5X30,5
- Nydelig kjøkkeninnredning fra Knapphus Kjøkken
- Baderomsinnredning fra Viking Bad begge bad
- Peis/pipe fra Jøtul F373
Vesentlige opplysninger
Ta kontakt med megler for komplett informasjon
Nyttige lenker
Nærområdet
TG Bygg AS
Annonseinformasjon
| FINN-kode | 170455049 |
|---|---|
| Sist endret | 20. mars 2023 17:28 |
| Referanse | Sjurasvingen 47/48 |
Annonsene kan være mangelfulle i forhold til lovpålagt opplysningsplikt. Før bindende avtale inngås oppfordres interessenter til å innhente komplett informasjon fra meglerforetaket, selger eller utleier.





