Bildegalleri

- Velkommen til Ensjøsvingen 2 - presentert av Eiendomsmegler MNEF / Fagsjef / Partner Bjørnar Mikkelsen (tlf 938 98 132) hos Schala & Partners -
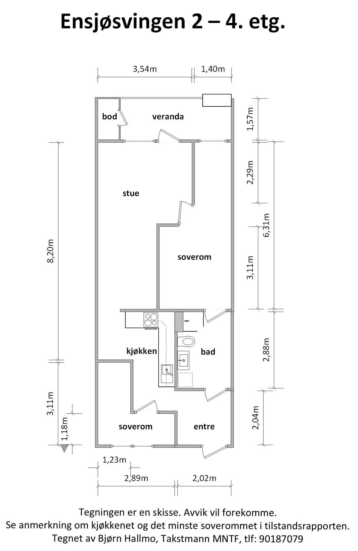
Lys, pen 3-roms i 4. etg m/ heis | 6,5m² nordvestvendt balkong | Overflater oppusset 2019 | Integ. hvitev.| garasjeleie
Nøkkelinfo
- Boligtype
- Leilighet
- Eieform
- Andel
- Soverom
- 2
- Primærrom
- 57 m²
- Bruksareal
- 57 m²
- Etasje
- 4
- Byggeår
- 1993
- Energimerking
- E - Rød
- Rom
- 3
- Tomteareal
- 1 332 m² (eiet)
- Bruttoareal
- 62 m²
- Boligselgerforsikring
- Ja
Fasiliteter
Om boligen
Velkommen til Ensjøsvingen 2!
- Gjennomgående 3-roms med god standard og svært arealeffektiv planløsning
- Leiligheten er overflateoppusset 2019
- 4. etasje med heisadkomst
- Nordvestvendt balkong på ca 6,5 m² med sol til ca kl 20:30 sommerstid
- Pen, moderne kjøkkeninnredning
- Integrert induksjonstopp med booster, stekeovn med pyrolysefunksjon og oppvaskmaskin. Kjøl- / fryseskap medfølger også
- Romslig bad overflateoppusset 2019
- Sikringsskap med automatsikringer
- Mulighet for leie av garasjeplass i byggets kjeller. Det er totalt 28 plasser
- Ensjøsvingen 2 borettslag består av 36 andelsleiligheter
- Borettslagets disponible midler var pr 31.12.2018 kr 924.130,-
- Borettslaget har inngått avtale om Fibernett med HomeNet
- Lave kjøpsomkostninger - ingen dokumentavgift
Salgsoppgaven beskriver vesentlig og lovpålagt informasjon om eiendommen
Se komplett salgsoppgaveNyttige lenker
Nærområdet
Schala & Partners Grünerløkka
Annonseinformasjon
| FINN-kode | 166312022 |
|---|---|
| Sist endret | 11. jan. 2020 01:25 |
| Referanse | 16190254 |
Annonsene kan være mangelfulle i forhold til lovpålagt opplysningsplikt. Før bindende avtale inngås oppfordres interessenter til å innhente komplett informasjon fra meglerforetaket, selger eller utleier.































