Bildegalleri

Velkommen til Geitmyrsveien 33B
Geitmyrsveien - Toppleilighet med p-plass i ærverdig bygg. 1,7 mål fellestomt - Hage - Felles kino m.m.. Fyring inkl
Nøkkelinfo
- Boligtype
- Leilighet
- Eieform
- Andel
- Soverom
- 3
- Primærrom
- 81 m²
- Bruksareal
- 81 m²
- Etasje
- 3
- Byggeår
- 1892
- Energimerking
- G - Oransje
- Rom
- 4
- Tomt
- Eiet
- Bruttoareal
- 85 m²
Fasiliteter
Om boligen
Velkommen til Geitmyrsveien 33 B - en flott toppleilighet i 3 etasje beliggende i kanskje Oslo hyggeligste borretslagt, med St. Hanshaugen parken som nærmeste nabo.
Dette må ansees som en sjelden anledning!
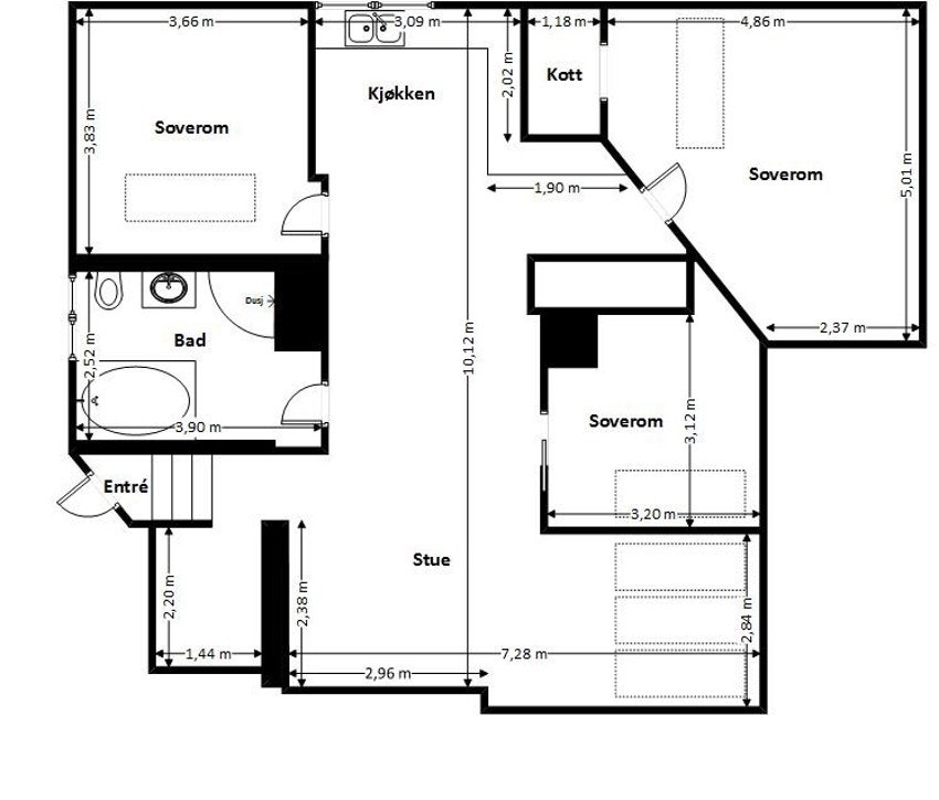
3. etasje:
Entré/gang med garderobeløsning, stor stue med åpen kjøkkenløsning og romslig bad. Avslutningsvis 3 soverom.
Leiligheten disponerer 1 parkeringsplass på felles tomt, bod i kjeller og tilgang til sameiets fellesrom. Av fellesrom kan det blant annet nevnes felles kinorom, hobbyrom/vaskerom m.m..
Hagen omkranser eiendommen og er et hyggelig og sosialt samlingssted for familien, naboer m.m..
Salgsoppgaven beskriver vesentlig og lovpålagt informasjon om eiendommen
Se komplett salgsoppgaveNyttige lenker
Nærområdet

PrivatMegleren Aksept
Annonseinformasjon
| FINN-kode | 165339719 |
|---|---|
| Sist endret | 23. des. 2019 01:13 |
| Referanse | 92190367 |
Annonsene kan være mangelfulle i forhold til lovpålagt opplysningsplikt. Før bindende avtale inngås oppfordres interessenter til å innhente komplett informasjon fra meglerforetaket, selger eller utleier.











































