Bildegalleri

Velkommen til Fjellgata 45 - Unik funkis i mur på Rodeløkka
Funkis i mur på Rodeløkka - Detaljer som hage, takterrasse og carport. Boligen har mangler og selges med utbedringsbehov
Nøkkelinfo
- Boligtype
- Enebolig
- Eieform
- Eier (Selveier)
- Soverom
- 3
- Primærrom
- 214 m²
- Bruksareal
- 226 m²
- Byggeår
- 2013
- Tomteareal
- 490 m² (eiet)
- Bruttoareal
- 254 m²
- Boligselgerforsikring
- Ja
Fasiliteter
Beskrivelse
Advokat Ek har gleden av å presentere en unik, innholdsrik og spennende enebolig med blant annet takterrasse, hage og carport på fantastiske Rodeløkka. Deler av boligen var tidligere et verksted og ble i 2013-2015 rehabilitert og påbygd og fremstår i dag som et moderne funkishus i mur. Eneboligen går over 3 plan hvorav første og andre plan består av flere halvplan. Boligen består blant annet av stort kjøkken, to stuer, tre soverom, to bad, vaskerom/gang og kontor/soverom. Boligen fremstår som unik med blant annet spektakulær takhøyde i flere rom, atriumstak, store vindusflater som gir svært godt med naturlig lys, samt høy standard på innredning og utstyr. Dagens eiere har etter overtagelse i 4kv 2015 avdekket feil og mangler og er nå i en pågående rettsprosess mot selger/utbygger. Boligen selges nå "as is" og dersom kjøper ønsker å utbedre alle feil og mangler, må kjøper påregne vesentlige utbedringskostnader. Dette er nærmere beskrevet i punktet "Diverse" nedenfor. Interessenter oppfordres til å laste ned komplett salgsoppgave med vedlegg og sette seg godt inn i denne før visning. Trykk "Bestill salgsoppgave". Interessenter oppfordres også til å ta med fagkyndig på visning.
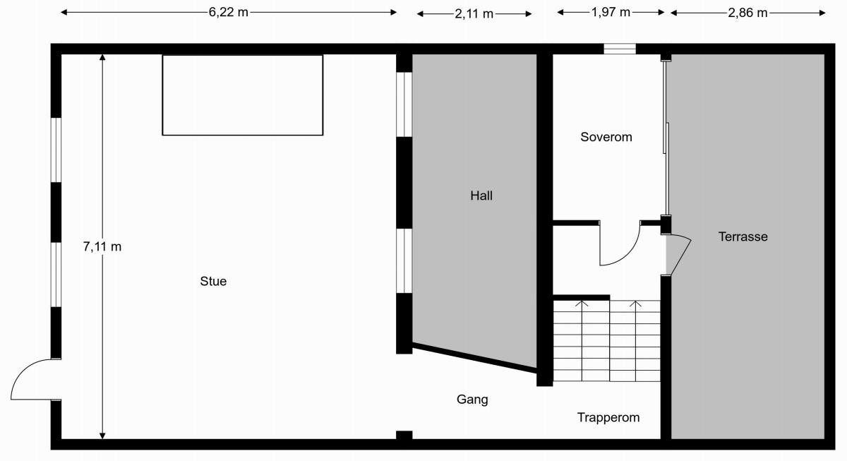
Eneboligens første etasje består av romslig entré. Spektakulær takhøyde og atriumtak med store vindusflater gir mye naturlig lys og en svært god romfølelse. Stort kjøkken med spiseplass. Moderne kjøkkeninnredning med sorte matte fronter. Integrerte hvitevarer som koketopp, stekeovn, oppvaskmaskin, kjøl-/fryseskap, vinskap og kaffemaskin medfølger handelen. Den praktiske kjøkkenøyen fungerer også som spiseplass. Innredet rom med tilgang fra kjøkken brukes i dag som kontor. Fra kjøkken er det dobbeltdør ut til gressbelagt hage. Stor kjellerstue hvor det er plass til flere sittegrupper. To gode soverom på hovedplan hvor det på begge rom er plass til dobbeltseng. I gangen utenfor soverommene er det bygget en stor skyvedørsgarderobe med speilfronter. I garderoben er det masse hyller, skuffer og heng, samt opplegg og plass for både vaskemaskin og tørketrommel. To bad som begge gir spafølelse. Detaljer som delikate flisvalg, glassvegger i dusjsone, speil med integrert belysning, moderne baderomsinnredning, vegghengt toalett, downlights og varmekabler. På badet ved soverommene er det badekar og dusjhjørne med svingbare glassdører, på badet ved kjøkkenet er det dusjnisje med glassvegg med tilgang fra begge sider.
Fra kjøkkenet går trappen opp til boligens andre etasje. I andre etasje kommer man først til et repotområde, som ligger mellom trappeoppgangen og peisestuen. Reposområdet har spektakulær utsikt til boligens første etasje. I andre etasje har boligen en stor peisestue med detaljer som svært god takhøyde, takvinduer, synlige takbjelker og en flott gasspeis. Takvinduer kan åpnes og lukkes med fjernkontroll. Rommet er romslig og det er plass til flere sittegrupper. Ettersom bygget ligger i skrånende terreng er det dør direkte ut til rolig gate (Fjellgata) fra stuen i tillegg til at man har hovedentré fra hagen. Peisestuen har innvendige vinduer (uten glass), med utsyn mot hall/atrium og kjøkken, som øker romfølelsen.
Fra reposområde i boligens andre etasje går trappene opp til boligens tredje halvplan, som inneholder soverom 3 med store vindusflater mot takterrasse, samt et ytterligere reposområde. Man har tilgang til takterrasse via skyvedør fra soverom eller dør fra trapperrom. Takterrassen er på cirka 20 m², vender sydøst og har varmekabler. Boligens første etasje har også et teknisk rom, som i dag også brukes til oppbevaringsbod. I tillegg har boligen utvendig bod.
Eneboligen er arealeffektiv, har en god og moderne planløsning, og ligger på fantastiske Rodeløkka. Her har du muligheten til å sikre deg en unik enebolig med mange gode kvaliteter. Velkommen til visning!
Detaljer
- Nyere enebolig over to plan, med flere delplan (mellomplan). Arealeffektiv og moderne planløsning.
- Funkisbolig i mur med egen hage midt i trehusidyllen på Rodeløkka.
- Spektakulær takhøyde i flere rom, atriumstak, store vindusflater som gir svært godt med naturlig lys, samt høy standard på innredning og utstyr.
- Stort og moderne kjøkken med integrerte hvitevarer som medfølger.
- To gode bad som begge gir spafølelse.
- Sydøstvendt takterrasse på cirka 20 m² med varmekabler, samt opparbeidet hage.
- Oppvarming via vannbåren varme i gulv i 1. etasje, varmepumpe på kjøkken, samt gasspeis i stue.
- Parkeringsplass i carport (1 egen plass og 1 plass som deles 50% med nabo. Mulighet for en ekstra plass på egen tomt ved siden av carport).
- Ved ønske om å innlemme takterrasse så er det gitt rammetillatelse for påbygg datert 16.02.2018. Denne kan fås ved henvendelse til megler.
- Det er gitt ferdigattest for boligen datert 14.10.2015.
Innhold
Totalt areal: Primær-rom: 214 m², Bruksareal: 226 m², Bruttoareal: 254 m², S-rom: 12 m².
1. etasje: Primær-rom: 151 m², Bruksareal: 155 m², Bruttoareal: 175 m², S-rom: 4m².
2. etasje: Primær-rom: 63 m², Bruksareal: 63 m², Bruttoareal: 70 m².
Utvendig bod: S-rom: 8 m², Bruttoareal: 9 m².
Inneholder følgende P-rom:
1. etg: Hall, kjøkken, innredet rom, kontor, bad 1, bad 2, gang/vaskerom, 2 soverom.
2. etg: Stue, gang, trapperom, soverom.
S-rom utgjør teknisk rom i 1. etg., samt utvendig bod.
Det er utgang til takterrasse på cirka 20 m² fra 2. etasje og utgang til hage fra kjøkken og entré.
Beliggenhet
Meget attraktiv beliggenhet på idylliske Rodeløkka. Området består av mange gamle trehus som hovedsakelig ble oppført i siste halvdel av 1800-tallet. Rodeløkka er som en trivelig liten landsby midt i byen. Trange gater, forhager og smug gjør dette til en helt unik del av byen. Alt av servicetilbud i umiddelbar nærhet. Kun noen minutters gange til Rodeløkka postkontor, dagligvarebutikker og apotek. På Carl Berners Plass er det knutepunkt for alt av kollektivtransport; t-bane, trikk og buss. Her bor du stille og tilbaketrukket til, men allikevel supersentralt. En kort spasertur unna og du befinner deg på Grünerløkka med sitt mangfoldige uteliv. Her har du godt med serveringssteder, butikker og utesteder å velge mellom. Flotte tur- og rekreasjonsmuligheter langs Akerselva og Torshovdalen, samt en rekke trivelige parker i nærområdet som Sofienbergparken, Olaf Ryes plass, Birkelunden, Botanisk hage og Tøyenparken. Meget barnevennlig område med barnehager og skoler i nærheten. Kort oppsummert er dette en optimal plassering i forhold til "alt" av byens fasiliteter.
Diverse
- Eierseksjonen hører til sameie Fjellgata 45 som består av 2 eneboliger som utgjør hver sin seksjon. Vedtekter følger vedlagt i prospekt.
- Dagens eiere har etter overtagelse i 4kv 2015 avdekket vesentlige feil og mangler både utvendig og innvendig og er nå i en pågående rettsprosess mot tidligere eier. I forbindelse med dette er det utarbeidet flere sakkyndige-rapporter. I salgsoppgave vil kun siste tilstandsrapport (2018) utarbeidet i forbindelse med nåværende salg være inkludert. Samtlige andre rapporter (2015-2017) som er oppramset nedenfor i forbindelse med rettsprosess vil ligge som vedlegg til salgsoppgave. Dagens eiere har i liten grad utbedret mangler og boligen selges nå "as is". Dersom kjøper ønsker å utbedre alle feil og mangler, må kjøper påregne vesentlige utbedringskostnader. Interessenter oppfordres til å undersøke eiendommen nøye, gjerne sammen med fagkyndig, samt sette seg godt inn i salgsoppgave og alle rapporter før bud inngis.
- Rapporter som er gitt megler fra selger og som vil ligge som vedlegg til salgsoppgave er følgende:
*Tilstandsrapport datert 16.10.2015
* Rapport ventilasjonsanlegg datert 17.12.2015
* Befaringsrapport 1 Bygg- og Våtromstakst datert 25.11.2015
* Befaringsrapport 2 Bygg- og Våtromstakst datert 16.12.2015
* Befaringsrapport 3 Bygg- og Våtromstakst datert 20.01.2016
* Analyserapport Myco team datert 19.01.2016
* Rapport med vurdering av byggefeil og tiltak fra Opak datert 29.02.2016
* Rapport med vurdering av sprekker og ris i mur og fuktsikring fra Opak datert 20.09.2016
* Notater og avklaringer Ansnes entreprenør datert 20.03.2017
Rapportene fra Bygg- og Våtromstakst, OPAK og Ansnes er i stor grad overlappende.
- Brann- og redningsetaten Oslo kommune opplyser at de ikke har noen opplysninger om ildsted i deres arkiv for denne boenheten. De opplyser videre at: Installasjon/endring av ildsted (uansett type -gass/pellets/ved/parafin osv.) skal meldes til dem.
- Dagens eiere er i en pågående rettsprosess mot selger/utbygger. Det ble avsagt dom i tingretten i 2017. Dommen mot utbyggerselskapet er rettskraftig, mens dommen mot utbyggerselskapets eier er påanket av eieren. Ankesaken vil gå i juni 2019. Selgerne forbeholder seg retten til å foreta nødvendig befaringer i den sammenheng. Denne rettsprosess og eventuelt utfall av denne er kjøper av eiendomen uvedkommende og påvirker ikke en avtale om kjøp av denne eiendom.
Ta kontakt med megler for komplett informasjon
Nyttige lenker
Nærområdet
Advokat Ek
Annonsene kan være mangelfulle i forhold til lovpålagt opplysningsplikt. Før bindende avtale inngås oppfordres interessenter til å innhente komplett informasjon fra meglerforetaket, selger eller utleier.



































