Bildegalleri

Eiendommen ligger på høydedrag med meget gode solforhold
JAR - EN PRAKTFULL EIENDOM I IDYLLISKE OMGIVELSER
Nøkkelinfo
- Boligtype
- Enebolig
- Eieform
- Eier (Selveier)
- Soverom
- 6
- Primærrom
- 359 m²
- Bruksareal
- 414 m²
- Byggeår
- 1926
- Tomteareal
- 2 012 m² (eiet)
Fasiliteter
Beliggenhet
En praktfull eiendom i naturskjønne og idylliske omgivelser. Tomten ligger usjenert til uten innsyn, på høydedrag. Pent opparbeidet tomt, skrånende i forkant med hellelagt terrasser og nydelig hage med mange prydbusker og trær. Inngjerdet mot naboeiendommene.
Fantastiske solforhold fra tidlig morgen til kveld. Svært barnevennlig. Gangavstand til skoler og barnehager - Jar barneskole ligger ca 3 min gange unna, Ringstabekk ungdomsskole er ca 5 min gange unna og Stabekk videregående ca 10-15 min gange. Eiendommen ligger nært Stabekk senter og Bekkestua med alle typer forretninger og offentlig kommunikasjon. Det er ca 10 km inn til Sentrum.
Innkjøring og gårdsplass med biloppstillingsplasser og garasje.
Beskrivelse
Boligen har et herskapelig preg med mange fine detaljer og løsninger. Innholdsrik med fin løsning på planene - særdeles fine lysforhold inn fra store vindusflater som bidrar til en helt unik atmosfære. Boligen har blitt rehabilitert de senere årene med mange påkostende detaljer og spesiallaget innredninger som er tilpasset boligen. Men den opprinnelige stilen fra 1926 er behold fullt ut. Lekker innredning, smakfulle og delikat fargevalg.
Innholder
1. etasje: Entré, gjestetoalett, bibliotek, med vedovn lekkert kjøkken med spiseplass og peis, stue med kakkelovn, spisestue med peis og hagestue - de fleste rom i hovedetasjen har direkte utgang hage.
2. etasje: 4 soverom - hvorav to soverom med utgang til terrasse, 3 lekre bad/wc, gang med garderoberom, 2 trapperom opp til innredet loft.
Loft: Innredet rom og loftsrom.
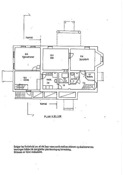
U. etasje (egen inngang): Entré, innredet rom, kjellerstue, bad/wc/dusj, vaskerom med dusjkabinett, fyrrom, badstue, gang og bod.
Innredede rom på loft og i kjeller er i dag innredet til soverom. I midlertidig er dette ikke byggegodkjent til varig opphold. Selger bærer intet ansvar om en slik godkjennelse gis.
Oppvarming
Ny sentralfyr med radiatorer, samt noe elektrisk. Murt peis i spisestue og kjøkken. Vedfyrt Svensk kakkelovn i stue. Vedfyrt etasjeovn i bibliotek. Gulvvarme i baderom og i entré underetasje og 1. etasje, samt i hagestue.
Adkomst
Ta kontakt med megler for komplett informasjon
Nyttige lenker
Nærområdet
Nordvik Bolig
Annonsene kan være mangelfulle i forhold til lovpålagt opplysningsplikt. Før bindende avtale inngås oppfordres interessenter til å innhente komplett informasjon fra meglerforetaket, selger eller utleier.




































