Bildegalleri

LAGÅSEN - Herskapelig eiendom. 3,5 måls tomt. Nær sjøen.
Nøkkelinfo
- Boligtype
- Enebolig
- Eieform
- Eier (Selveier)
- Soverom
- 4
- Primærrom
- 418 m²
- Bruksareal
- 435 m²
- Byggeår
- 1953
- Tomteareal
- 3 570 m² (eiet)
Fasiliteter
Visning
Ta kontakt for å avtale visning.Beliggenhet
Skogsvingen 18-20 ligger meget usjenert til uten gjenboere. Eiendommen er meget spesiell og sjelden med sin parkmessige og landlige beliggenhet kun ca 5 minutters kjøring fra Aker Brygge.
Lagåsen er klart avgrenset fra Lysaker og Fornebu, med strandlinje både mot øst og syd. Gangavstand til fellesareal ved Svartebukten, som omfatter ca 4 mål tomt med ca 250 m strandlinje og strandhus (lagring av windsurfer, kajakker, båtutstyr mv.v) Arealet er en gave til Fornebu Vel, kun til bruk for Lagåsens beboere.
Beskrivelse
Herskapelig eiendom fullstendig usjenert beliggende i det kulturhistorisk viktige området Lagåsen, hvor en rekke av landets mest kjente kunstnere bygget og bodde rundt år 1900. Fridtjof Nansen var drivkraften bak denne bosettingen, og bygget ''Polhøgda'' som egen bolig og kontor. Lagåsen har beholdt sitt særpreg og spesielle vegetasjon fra 100 år tilbake, som en følge av at området har vært spesielt ivaretatt reguleringsmessig. Området er i dag regulert til bevaringsverdig.
De fleste av de bevaringsverdige bygningene på Lagåsen er tegnet av arkitektene Arnstein Arneberg og Magnus Paulsson. Sistnevnte tegnet ''Gullia'' i 1912 og bebodde selv eiendommen frem til 1944. Huset brant i 1944 og Paulsson tegnet et tilnærmet likt, men rommessig mer modernisert bygg på fundamentet av den gjenstående kjellermuren. Pga rasjonalisering av byggematerialer etter 2. verdenskrig ble eiendommen solgt til den selvforsynte brukseier Fritjof Plathe. Dagens hovedbygning sto ferdig i 1953.
Arkitekt Paulsson står som den sterkeste representant for den modifiserte nasjonalromantiske arkitektur i Norge og var sentral i kunstnermiljøet rundt Erik Werenskiold, Eilif Pettersen, Gerhard Munthe m.fl., kalt for ''Lysakerkretsen''.
Eiendommen består av til sammen seks bygninger.
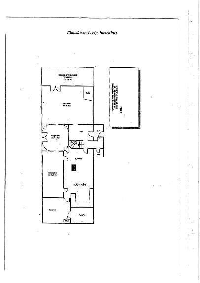
Hovedhus
Underetasje:
Kjellerstue med peis, vindfang med dør til terreng, hall med trapp til 1. etg, omkledningsrom, dusjbad/wc, rom med garderobeskap, vinkjeller, gang, fyrrom og vaskerom.
1. etasje:
Entré, hall, gjestetoalett, stor peisestue med utgang til delvis overbygget terrasse, salong (flygelrom), romslig spisestue, lekkert kjøkken med spiseplass og peis og soverom med eget tilhørende bad/wc.
2. etasje:
3 soverom (ett med snekkerbygget "himmelseng" og de andre med snekkerbygde senger, alle rommene med innebygde skap), 2 bad/wc, omkledningsrom med garderobeskap og gang med skyvedørsgarderobe. Kott/loftsrom bak knevegger.
Kårboligen - ''Rødstuen'' (bta/bra/p.rom: 72/67/67)
Entré, hall, 2 stuer, kjøkken med spiseplass, soverom, dusjbad og separat wc.
Anneks med klokketårn - ''Sukkertoppen'' (bta/bra: 20/18)
To innredede rom og en utvendig bod. Takhøyden er ca 1,94 m
Lysthus:
Lysthuset består av ett rom med åpen atkomst.
Stor garasje (bta/bra: 40/33)
Garasje med plass til en bil og div. sesongutstyr. Lagerloft med adkomst gjennom luke i bakre gavlvegg. Loftsgulvet er ca 30 kvm. Mnehøyde fra gulvet er ca 2 m.
Lekestue: ((bta: 6)
Lekestuen er oppført på høye trepilarer. Ett rom og tremmegulv. Atkomst fra terreng med fast trapp.
Bruttoareal alle bygninger: 623 kvm
Adkomst
Ta kontakt med megler for komplett informasjon
Nærområdet
Advokat Ek
Lillian Ch. Nilsen
Annonsene kan være mangelfulle i forhold til lovpålagt opplysningsplikt. Før bindende avtale inngås oppfordres interessenter til å innhente komplett informasjon fra meglerforetaket, selger eller utleier.



















