Bildegalleri

Hytta med Skeikampen i bakgrunnen.
Skeikampen - Flott familiehytte m/ lett tilgang til alt Skei kan tilby!
- Kommunale avg.
- 18 344 kr per år
- Formuesverdi
- 1 091 420 kr
- Verditakst
- 3 850 000 kr
Nøkkelinfo
- Beliggenhet
- På fjellet
- Boligtype
- Hytte
- Eieform
- Eier (Selveier)
- Primærrom
- 115 m²
- Bruksareal
- 120 m²
- Tomteareal
- 1 185 m² (eiet)
- Byggeår
- 2007
- Soverom
- 4
- Energimerking
- G - Oransje
Fasiliteter
Om eiendommen
Innhold
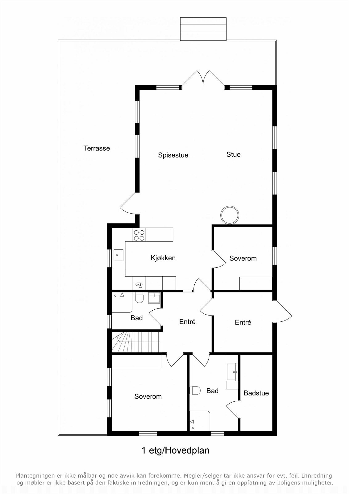
Nyere, flott hytte med attraktiv beliggenhet som inneholder følgende:
1. ETG.: Vindfang, 2 soverom, bad/vask med tilhørende badstue, dusj/wc, kjøkken og stue med åpen røst og flate himlinger. Utvendig bod. Fra stuen er det direkte utgang til stor veranda på ca 50 kvm.
2. ETG.: Loftstue med utgang til overbygget veranda, samt 2 soverom. Åpen røst med skråhimling.
Utvendig boden ved inngangen med flislagt gulv og gulvvarme.
Standard
Tiltalende og moderne hytte med meget godt standard. Godt håndverksmessig utførelse med høy standard både innvendig og utvendig. Vannbåren gulvvarme i alle gulv i 1. etasje.
Gulv: Flislagt gulv på begge bad, samt i vindfang, gang og bod. For øvrig parkettgulv i alle oppholdsrom i 1. etasje. Tregulv i alle rom i 2. etasje.
VEGGER: 1. etg. har bred stående panel med fasprofil i alle rom. Sokkelflis på bad med malt/umalt bred stående panel med fasprofil. Umalt stående bred panel med fasmønster i alle rom i 2. etg.
HIMLING: 1. etg. har åpen røst i stue med malt skyggepanel. For øvrig malt skyggepanel i flate himlinger.
2. etg. har åpen røst med skyggepanel og laminerte dragere. Downlightsbelysning i flere rom.
STUE:
Romslig stue med dobbelfløyet verandadør ut til terrasse på ca. 50 kvm. Åpent møne og lys-innslipp fra 3 sider gir god romfølelse. Elementpeis med innsats og glassdører gir god varme og den rette hyttekosen. God plass til langbord mellom stue- og kjøkkendel.
KJØKKEN:
Pen, sortmalt heltreinnredning i U-løsning. Takhøye overskap med lyslist, samt 2 frittstående lave overskap over kjøkkenvindu. Heltre benkeplate med nedfelt oppvask og skyllekum. Integrert stekeovn samt keramisk platetopp. Rund stålhette over koketoppen. Integrert kjøl- og fryseskap.
BAD:
Bad 1 med tilgang til badstue har dusjkabinett med glassdør. Innredning med nedfelt stålservant. Heltre benkeplate. Toalett og opplegg for vaskemaskin. Varme i gulv og downlights i tak.
Badstue med glassdør. Trebenker og flislagt gulv. Lagerholm Finsauna ovn.
Bad II / teknisk rom har dusjkabinett og innredning med liten servant. Toalett. CTC varmtvannsbereder på 116 liter er plassert her. Varme i gulv.
ØVRIG:
Loftstue med utgang til overbygget balkong på ca. 9 kvm.
Romslig hovedsoverom med plass til dobbeltseng. 3 soverom med familiekøye, hvorav 2 ligger i 2. etasje. Det er 11 sengeplasser i hytta slik den fremstår i dag.
Oppvarming
Peis med innsats på stue. Vannbåren gulvvarme i hele
1. etg. med CTC Ferroo fyr på 12 kw. Separate termostater i alle rom.
Ellers elektrisk oppvarming via panelovner.
Fastmonterte varmekilder som var i fritidsboligen under visning medfølger.
Beliggenhet
Hytta ligger meget fint og solrikt til på Sør-Skei, et veletablert og meget populært hytteområde rett ved Skeikampen alpinanlegg. Vestvendt naturtomt som grenser mot friområde på nordsiden. Fin utsikt mot Skeitjernet og Skeikampen. Preparerte langrennsløyper rett utenfor stuedøra. Skei er en komplett skidestinasjon spesielt rettet mot familier. Skeikampen er et av de mest snøsikre alpinanleggene i Norge og har et stort utvalg av løyper for både store og små. Skei er et frilufts eldorado sommer som vinter. Om vinteren er det alpinbakke med 11 heiser og 17 nedfarter bl.a 8 seter stolheis rett til toppen. Er du glad i å gå på langrennski finnes det 220 km maskinpreparerte løyper. Tilførselsheis og tilførselsløyper i nærområdet er prosjektert og innregulert. Om sommeren kan du spille golf på landets høytliggende 18 hulls golfbane, spille tennis, fiske, sykle, ridning, elgsafari, bade i vann og bekker eller på hotellet som har nyåpnet spa og velværeavdeling; 500 kvm med lagune, fossefall, grotte, steambad, isdusj, badstue og behandlingsrom. Nærhet til Austlid Fjellstue, Segalstad Seter med bl.a. dagligvareforretning og kafeteria. Gode fiske/- og jaktmuligheter i nærområdet. Innenfor 1 timers kjøring er Hunderfossen familiepark, rafting i Sjoa, Maihaugen samt Lillehammer by med et rikt kunst og kulturliv. For mere info gå inn på www.skeikampen.no
Adkomst
Fra Lillehammer kjør RV 255 mot Gausdal og følg denne ca 20 km til Segalstad Bru i Østre Gausdal. Fortsett her rett fram på RV 254. I Svingvoll, ta av til Skei på venstre hånd og følg Skeisvegen til Sørskeivegen tar av til høyre rett etter at man har passert skilt med 'Velkommen til Skeikampen'. Følg vegen oppover og hytta ligger så på høyre hånd etter ca. 500 meter og er skiltet med DNB Eiendom.
Tomten
Flott beliggende vestvendt tomt, opparbeidet med gressplen rundt bebyggelsen. Fri og usjenert beliggenhet med utsikt mot omkringliggende områder. Meget gode lys- og solforhold. Gruset biloppstillingsplass og adkomstvei.
Parkering
Biloppstilling på egen tomt sommer som vinter.
Ta kontakt med megler for komplett informasjon
Nyttige lenker
Nærområdet
DNB Eiendom AS
Annonsene kan være mangelfulle i forhold til lovpålagt opplysningsplikt. Før bindende avtale inngås oppfordres interessenter til å innhente komplett informasjon fra meglerforetaket, selger eller utleier.





























