Bildegalleri

Vakre Valdresgata 25 C presentert av Aktiv v/ Stein Chr. Dykesteen, mob 48 99 20 03.
Grünerløkka - Lekker og gjennomført 4(5)-roms med to flotte bad. Stor balkong. Garasjeplass. Barnevennlig, stille.
Nøkkelinfo
- Boligtype
- Leilighet
- Eieform
- Andel
- Soverom
- 3
- Primærrom
- 109 m²
- Bruksareal
- 112 m²
- Etasje
- 3
- Byggeår
- 1980
- Rom
- 4
- Tomteareal
- 16 774 m² (eiet)
- Boligselgerforsikring
- Ja
Fasiliteter
Innhold
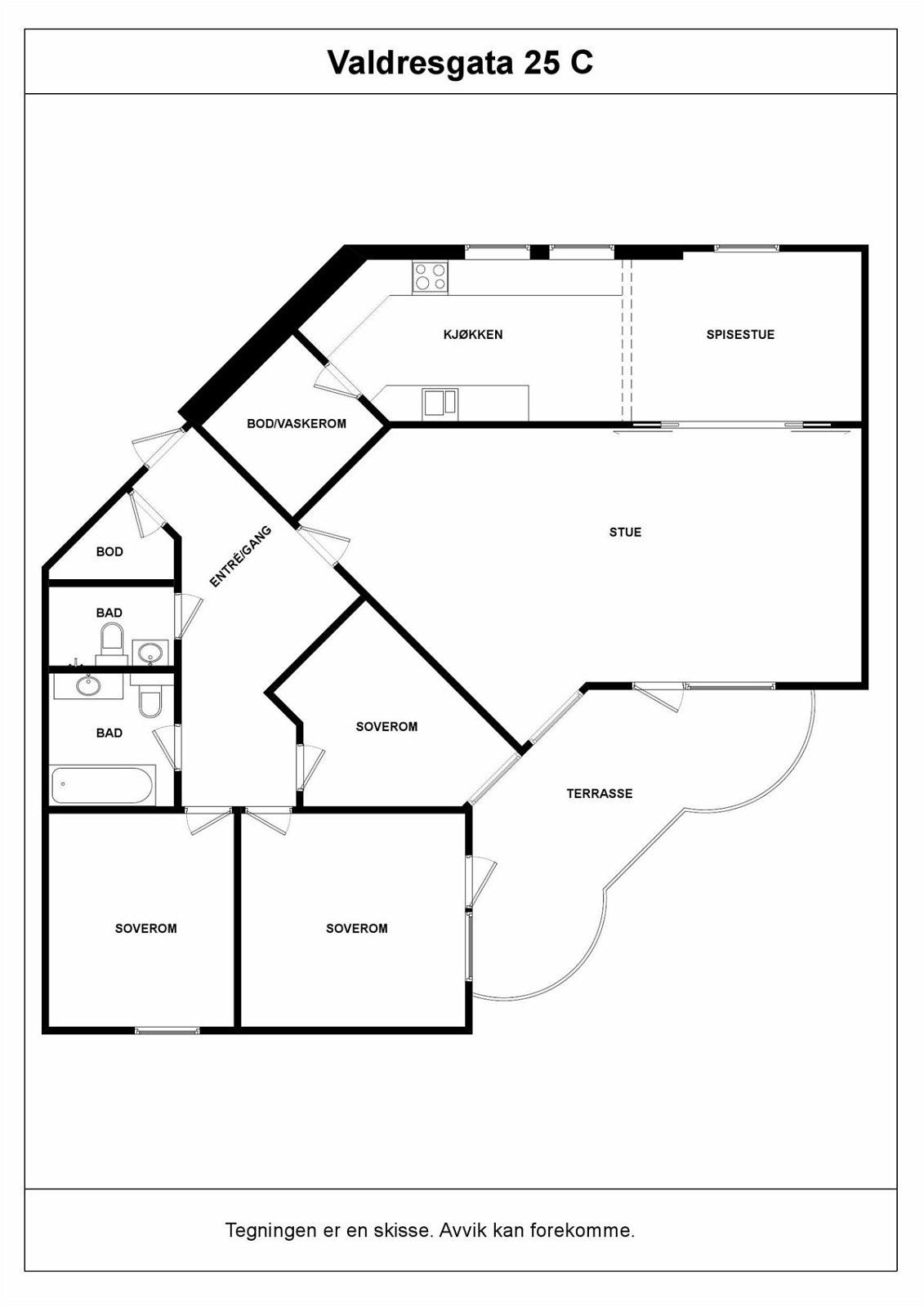
Boligen ligger i 3. etasje og inneholder:
Pen entré med skyvedørsgarderobe. Plass til å sette fra seg sko / henge fra seg yttertøy.
Stuen er på hele 30 kvm og har store vindusflater - mange innredningsmuligheter.
Fra stuen er det utgang til balkong på ca. 16 kvm. Balkongen har god plass til både utemøbler og grill - perfekt til sosiale stunder med famille eller venner.
Pent, praktisk kjøkken med meget god kombinasjon av benke- og oppbevaringsplass. Delvis åpent mot stue. Spesielt fin plass stort spisebord ved vinduet - perfekt til middagsselskap.
Smart indre bod - innredet som vaskerom.
To lekre bad, flislagt bad, et med dusjnisje og et med badekar.
Stort hovedsoverom med garderobe, plass til dobbeltseng.
Soverom nr. 2, med plass til seng og garderobe.
Soverom nr. 3, perfekt som barnerom/ kontor.
Alle soverom vender inn mot stille bakgård.
Leiligheten disponerer egen ekstern bod og garasjeplass. Sykkelparkering på fellesareal.
Boligens særpreg:
Leiligheten fremstår som tidsriktig, meget velholdt med god plassutnyttelse - lys og tiltalende. Kjøkkenet er samlingsplassen i leiligheten, balkongen er plassen for å nyte sommerhalvåret. Foruten meget god innvendig standard bemerkes det at leiligheten tilhører et veletablert borettslag og har spesielt god intern beliggenhet.
Standard
Leiligheten fremstår som meget velholdt. Det er gjort betydelige oppgraderinger de seneste år. Begge bad ble oppgradert 2013. Vegg og takflater er behandlet og innmat i sikringsskap er byttet. Kjøkken er fra 2011. Boligen er holdt i tidsriktige, lyse farger og egner seg til å flytte rett inn i.
To lekre baderom fra 2013 og vaskerom:
Hovedbad: Lekkert, flislagt med heldekkende servant, vegghengt klosett og badekar med dusjvegg av herdet glass. Baderomsinnredning med glatte skapfronter. Speil og belysning over servant. Felles mekanisk avtrekk. Downlights. Rør-i-rør opplegg.
Bad nr. 2: Lekkert, flislagt med dusj, vegghengt klosett og servant med servantskap. Speilskap med integrert belysning over servant. Felles mekanisk avtrekk. Rør-i-rør opplegg.
Begge badene ble rehabilitert i 2013 og arbeid er utført av Skap og Bygg As
Vaskerom: Vaskerom med vaskekum og opplegg for vaskemaskin. Skapinnredning med integrert fryseskap.
Kjøkken:
Ikea kjøkkeninnredning (fra 2011) med glatte, hvite skapfronter. Oppvaskkum/benkebeslag med ettgreps blandebatteri. Benkeplater i heltre eik. Belysning under overskap. Kullfilterventilator. Avtrekkshette i stål fra Gorenje. Integrert oppvaskmaskin, kjøleskap, stekeovn og induksjonstopp.
Gulv:
Eikeparkett og linoleum i entré. Linoleum i bod. Fliser på begge bad. Eikeparkett i øvrige rom. Ny parkett i 2011.
Vegger:
Fliser på begge bad. Malte overflater i øvrige rom.
Tak:
Malte himlinger.
Borettslagets hjemmeside:
www.valdresgataborettslag.no
Beliggenhet
Denne leiligheten har svært attraktiv beliggenhet på øvre Grünerløkka, godt tilbaketrukket fra støy og trafikk i populære Valdresgata borettslag, like ved Rignes Park. Det er gangavstand til et av Norges beste servicetilbud med serveringssteder, butikker, apotek, treningssenter, vinmonopol, bensinstasjon og friarealer.
I Ringnes Park Senter finnes det meste til hverdagen, som frisør, Meny, Jernia, Tanum og Mester Grønn. Det er ikke langt til Kiellands Hus, et trivelig nærsenter med ICA, Vinmonopolet, Ark, blomster og sportsforretning.
I nærområdet er det en rekke populære spise- og serveringssteder som Nighthawk Diner, Food Story, Kaffebrenneriet, Bar Boca, Fru Hagen, Parkteateret, Aku-Aku, Villa Paradiso, Jacob Aall, Delicatessen og SüdØst.
For den kulturglade finnes et av Nord-Europas mest moderne og avanserte kinoanlegg i Rignes Park. Ikke langt unna ligger Parkteateret, Popsenteret, Kuba og Schous Kulturstasjon.
For den aktive finnes både Dælenenga Idrettsplass og flere treningssentre som Elixia, SATS Schous Plass, Vulkan klatresenter, Pilates Room, Fitness24seven og Jimu, ved Alexander Kiellands plass.
Flere populære friarealer i nærmiljøet som Birkelunden, Olaf Ryes plass og Sofienbergparken. Flotte tur og rekreasjonsmuligheter med tursti fra Grünerløkka til Maridalen. I tillegg er det store grøntområder langs Akerselva og kort vei til Kuba og Vulkan.
Gode muligheter for spennede dagligvarehandel med grønnsaksbutikker, bakeri og ikke minst Mathallen. I tillegg har man døgnåpne Deli de Luca og 7-Eleven som nære alternativer. Søndagsåpne butikker som Joker og Bunnpris.
Boligen har kort gangavstand til Sagene- og Grünerløkka skole. I området finner man flere kommunale barnehager som bl.a. Vennelyst, Hallénhagen i Hallénparken, og to barnehager i
Barnas Hus.
Svært godt kollektivtilbud, du finner trikkestoppet Biermannsgate (11,12 og 13) og bussholdeplassen Sannergata (21 og 33) i umiddelbar nærhet. Fra Ring 2 kan du også ta flybuss direkte til Gardermoen. Leiligheten ligger i gangavstand til utdanningsinstitusjoner som AHO, KhiO, Westerdals, Tannlegehøyskolen, Lovisenberg Diakonale Høyskole og kun en trikketur unna BI, UiO og HiO.
Bebyggelse
Det er primært leilighets-/gårdsbebyggelse i området.
Adkomst
Enkel adkomst via felles oppgang. Inngang til gården fra borettslagets indre fellesareal. Både Biermannsgate og Sunnmørgata leder til Valdresgata med borettslaget. Leiligheten liger i indreste rekke mot friareal. Se vedlagte kart. Det vil bli satt opp AKTIV visningsskilt ved fellesvisninger.
Byggemåte
Boliggård over 5 etasjer, oppført i 1980. Bygningen er oppført i henhold til normal byggeskikk på oppføringstidspunktet. Bærende konstruksjoner i betong. Antatt fundamentert til fast grunn. Takkonstruksjoner tekket med korrugerte plater. Yttervegger i tegl. Vinduer med 2-lags isolerglass fra byggeår. Entrédør er B30, 35 db (brann- og lydklassifisert) med sikkerhetslås. Balkongdører med 2-lags energiglass. Dørene ble skiftet i 2009. Se vedlagte verditakst avholdt iht. NS 3451 av Torgeir Lien for ytterliggere teknisk beskrivelse av eiendommen.
Areal
3.etg: Bra /p-rom: 112 kvm / 109 kvm.
Følgende rom inngår i primærareal:
Entré, stue, kjøkken, 3 soverom, 2 bad/wc, vaskerom.
Utstyr
Brannslukningsapparat og røykvarsler.
Dørtelefon med portåpner og bilde.
Kabel-TV fra Get.
Strømuttak på balkong.
Oppvarming
Elektrisk oppvarming. Varmekabler på begge bad.
Tomten
Pent opparbeidet felles tomt med beplantning, gressplener, sittegrupper og belysning. Bilfrie internveier og flere lekeplasser.
Tomtens grunnareal: 16774 kvm.
Parkering
Med leiligheten følger 1 garasjeplass i felles lukket garasjehus.
Vei/vann/avløp
Offentlig.
Forretningsfører
Forretningsførselen er utført av OBOS i henhold til kontrakt. Borettslagets revisor er PricewaterhouseCoopers AS.
Borettslaget
Borettslaget er registrert i Foretaksregisteret i Brønnøysund med organisasjonsnummer 946827908, og ligger i bydel 2 Grünerløkka i Oslo kommune med gnr. 225 bnr. 267.
Borettslaget består av 195 andelsleiligheter. I tillegg kommer 1 tjenesteleilighet.
Adresser: Sannergt 14 (p-Hus), Valdresgt 1 A-B, Valdresgt 3 A-B-C-D 5-11, Valdresgt 13 A-B-C-D, Valdresgt 15-23 25 A-B-C-D
Første innflytting skjedde i 1980. Tomten, kjøpt i 1986 er på 17 000 m2.
Styret:
Styret kan kontaktes på e-post nard.valdres@gmail.com
Se også borettslagets hjemmesider på: www.valdresgataborettslag.no.
Vaktmestertjeneste:
Vaktmester Øystein Skjenken ivaretar den daglige drift og det løpende vedlikeholdet i borettslaget i henhold til stillingsbeskrivelse. Vaktmesterkontoret har adresse Valdresgata 1 B, nedre inngang.
Vektertjeneste:
Borettslaget har avtale med Norsk Sikkerhetstjeneste A/S om vakthold. Dersom andelseier har behov for assistanse kan vektertjenesten kontaktes.
Renhold:
Borettslaget har avtale med Økonomiske Løsninger AS om vask av trappeoppganger / fellesarealer.
Kabel-TV:
Get er borettslagets leverandør av TV- og bredbåndstjenester.
Vi oppfordrer alle til å sette seg inn i vedtekter, husordensregler, regnskap, budsjett og årsberetning. Dokumentene vil være tilgjengelig hos meglerforetaket. Det gjøres oppmerksom på at fellesgjeld og felleskostnader kan variere over tid som følge av beslutninger foretatt i borettslagets styre og/eller generalforsamling.
Forkjøpsrett
Medlemmer av borettslaget/boligbyggelaget har forkjøpsrett. For hver enkelt bolig blir det ved salg fastsatt en egen frist for å melde bruk av forkjøpsretten. Det er utlyst parallell avklaring av forkjøpsretten og avklaring skjer kort tid etter endt budrunde. Konferer megler for ytterliggere informasjon.
Styregodkjennelse
Kjøper skal godkjennes av styret og har selv risikoen for at godkjennelse blir gitt. Styregodkjennelse kan ikke nektes uten saklig grunn.
Dyrehold
Det er tillatt for husstandene i borettslaget å eie husdyr som hund og/eller katt etter på forhånd å ha søkt styret om anskaffelse, og under den forutsetning at en kontrakt er underskrevet av eier.
Forsikring
If Skadeforsikring
Polisenummer: 589190
Felleskostnader
5 288 pr. mnd.
Borettslagsmodellen innebærer at en andelseier kan bli ansvarlig for felleskostnader andre andelseiere ikke betaler, herunder felleskostnader for usolgte andeler i et prosjekt. Enkelte borettslag er tilknyttet en sikringsordning som reduserer borettslagets risiko for tap på grunn av andelseiernes betalingsmislighold. En avtale om sikringsordning kan sies opp, være tidsbestemt og beløpsmessig avgrenset.
Andel fellesgjeld/fellesformue
Andel fellesgjeld pr. 01.01.2015 kr. 148.274,-.
Andel fellesformue pr. 31.12.2013 kr. 28.222,-.
Lånevilkår
Lånenr: NORDEA-60308069713A
Restsaldo: 18.137.888,-
Restløpetid: 25 år
Term pr år: 4
Type rente: Flyt
Rente pr. 22.01.15: 3,25 %
Lånenr: NORDE1-60308069748 A
Restsaldo: 5.908.144,-
Restløpetid: 24 år 6 mnd
Term pr år: 12
Type rente: Flyt
Rente pr. 22.01.15: 3,25 %
Sikringsordning
Borettslaget har avtale med OBOS om garantert betaling av felleskostnader. OBOS garanterer for
overførsel til borettslaget hver måned og overtar deretter alt ansvar og risiko for eventuell manglende innbetaling av felleskostnader.
Faste løpende kostnader
Hovedsakelig felleskostnader og strøm.
Ferdigattest/midlertidig brukstillatelse
Det er utstedt ferdigattest på eiendommen.
Utleie
Med godkjenning fra styret er utleie tillatt for inntil 3 år, dersom andelseier selv eller person nevnt i Borettslagsloven § 5-6 (3) har bebodd eiendommen i minst ett av de to siste årene.
Diverse
Større vedlikehold og rehabilitering i borettslaget:
2013 - 2014: Utredning parkeringshus. Start oppussing oppgangene. Ulike utbedringer utearealet.
2012 - 2013: Utskiftning takrenner / utbedring av råteskade. Drenering av 25-rekka.
2011 - 2012: Utskiftning brannutstyr. - Oppussing fellesrom. - Utbedring av svartsopp i 5, 13 A, 23.
2010 - 2010: Balkongdører, trappehusvinduer, varmtvannstanker. Ny avtale kabel-tv og internett.
2009 - 2009: Maling v tak, fasader, balkongdør/fronter. Nye lekeapparater.
2008 - 2008: Yttertak, porttlf, drenering nr 15. - Byttet varmekilder i oppgang.
2007 - 2007: Løpende vedlikehold.
2006 - 2006: Balkongrehab, rengjøring ventilasjonskanaler, m.m.
2005 - 2005: Balkonger, trappehustak og grøntanlegg. Utbedring av grøntanlegget.
2004 - 2004: Maling vinduer, skifte trappehustak, balkongrehab. Utbedring av grøntanlegg.
2003 - 2003: Fuging/maling av vinduene. Oppgradert kabelnettet. Rehabilitering av garasjehustak.
Reguleringsmessige forhold
Eiendommen ligger i et område regulert til boligformål.
Eiendommens betegnelse
Andelsnr. 98 Orgnr. 946827908 i Oslo kommune
Oppgjør
Med mindre annet er avtalt forutsettes det at kjøpesum inkludert omkostninger er innbetalt og disponibelt på meglerforetakets klientkonto innen overtagelse.
Eierskifteforsikring
Selger har tegnet eierskifteforsikring som dekker selgers ansvar etter avhendingsloven begrenset oppad til kr 5.000.000,-. I den forbindelse har selger utarbeidet en egenerklæring som kjøper bør gjøre seg kjent med før budgivning.
Boligkjøperforsikring
Vi ber om at dere tar stilling til om dere ønsker å tegne boligkjøperforsikring, se vedlagt produktark for nærmere informasjon. Forsikringen gir deg umiddelbar tilgang til spesialisert advokat, og fritar deg for den økonomiske prosessrisikoen ved reklamasjoner. Vi vil legge dette inn i kontrakten med mindre dere ikke ønsker å tegne forsikringen.
Løsøre og tilbehør
Listen over løsøre og tilbehør utarbeidet av Norges Eiendomsmeglerforbund av 1. februar 2012 legges til grunn for salget dersom ikke annet fremkommer av salgsoppgaven. Listen er tilgjengelig hos oppdragsansvarlig samt på www.nef.no. Til orientering er det full avtalefrihet om hva som skal følge med bolig og fritidsbolig ved salg.
Solgt "som den er"
Eiendommen selges i den stand den var ved kjøpers besiktigelse, jf. avhendingsloven § 3-9. Dette innebærer bl.a. at det kun kan påberopes mangel der dette følger av § 3-7 eller 3-8: "kjøper ikke har fått opplysninger som selger kjente eller måtte kjenne til, og som kjøperen hadde grunn til å regne med å få, eller når selger har gitt uriktige opplysninger om eiendommen. Dette gjelder likevel bare dersom man kan gå ut fra at det har innvirket på avtalen at slik opplysning ikke ble gitt." Det kan også foreligge mangel hvis eiendommen er i vesentlig dårligere stand enn kjøper hadde grunn til å regne med ut fra kjøpesummen og forholdene for øvrig. Kjøper kan ikke påberope seg noen andre bestemmelser etter avhl. kap 3 enn de regler som er ufravikelige i forbrukerforhold, jf. avhendingsloven § 3-9, jfr § 1-2 (2).
Finansiering
Aktiv Eiendomsmegling samarbeider med sparebankene i Eika Gruppen AS og konsernets produktselskaper om formidling av finansielle tjenester. Ta gjerne kontakt med oppdragsansvarlig for et uforpliktende tilbud vedrørende finansiering. Meglerforretningene kan motta provisjon ved formidling av finansielle tjenester.
Ta kontakt med megler for komplett informasjon
Nærområdet
Aktiv Carl Berner
Annonsene kan være mangelfulle i forhold til lovpålagt opplysningsplikt. Før bindende avtale inngås oppfordres interessenter til å innhente komplett informasjon fra meglerforetaket, selger eller utleier.














































