Bildegalleri

1.Fasade-1
Gamlebyen - Sjelden mulighet til å skape din egen leilighet. Næringslokale med godkjent bruksendring til bolig.
Nøkkelinfo
- Boligtype
- Leilighet
- Eieform
- Andel
- Primærrom
- 94 m²
- Bruksareal
- 94 m²
- Etasje
- 1
- Byggeår
- 1902
- Tomteareal
- 446 m² (eiet)
Fasiliteter
Innhold
Tidligere næringslokale med godkjent bruksendring til leilighet. Veldrevet borettslag, det siste året har de gjennomført utbedringer, b.la rehabilitering av pipeløp, oppgradering av nederste del av fasade samt brannsikringstiltak
Lokalet har et stort potensiale, her kan du skape din egen drømmeleilighet,
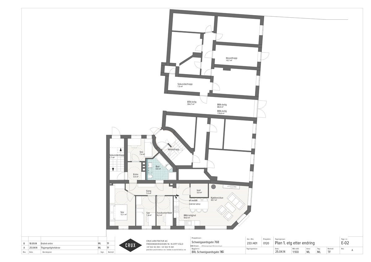
I hht godkjent bruksendring vil du her kunne etablere fire soverom, bad, kjøkken og stue. Se vedlagte tegninger.
Lokalet er meget arealeffektivt.
Lokalet har tidligere vært et næringslokale/forretning med inngang på byggets utvendige hjørne og med store vinduer ut mot fortauet. I dag omfatter lokalet et rom for forretningsdrift samt bakrom med gang, toalett og kjøkken. I forretningsdelen er gulvet dels hevet og taket senket.
Det er høyhastighet fibernet fra homenet i bygget som kjøper har anledning til å koble seg til på vanlige vilkår. Borettslaget har en grunnpakke fra Get på TV til alle beboere
Det er vann koblet i lokalet, tilknyttet felles varmtvannsanlegg.
Standard
Det er et toalett i lokalet. Dette inneholder frittstående toalett og håndvask med ettgreps batteri.
Det er en eldre kjøkkenbenk med underskap, overskap og stålkum. Det er opplegg for oppvaskmaskin/vaskemaskin på kjøkkenet.
Gulvene har belegg av laminat, med unntak av gangen som har banebelegg. Vegger er hvitmalt på underlag av panel og strietapet.
Takene er hvitmalt.
Det er svært god takhøyde i lokalet. På kjøkkenet er det målt en takhøyde på 3,0 meter. I de øvrige rommene er det foret ned tak, til høyder varierende fra ca. 2,30 til ca. 2,55. Det antas at det i disse rommene også er tilsvarende høyde som på kjøkkenet. Deler av forretningslokalet har idag en del som har oppforet gulv, antydet til ca. 10 cm.
Leiligheten vender delvis ut mot stille bakgård. Fantastisk prisbelønt fellesbakgård.
Beliggenhet
Med sin sentrale beliggenhet i Gamlebyen er dette et herlig sted å bo.
Dette er fantastisk beliggenhet for deg som ønsker å bo med nærhet til alt. Bydelen er i sterk utvikling og ansees for å være et av de mest attraktive stedene å bo i gamle Oslo.
Gangavstand til den nye Fjordbyen, samt Bjørvika som er i ferd med å bli et promenadestrøk med åpne byrom, vannspeil og Akerselva.
Samtidig ligger boligent i et område med gangavstand til Middelalderparken og Vannspeilet, Ruinparken, Svartdalsparken samt Botanisk hage og Ekebergsletta med fantastiske tur og rekreasjonsarealer. Kort vei til Ekebergrestauranten med sin spektakulære utsikt.
For barnefamilier vil Ekebergparken vil være et populært alternativ: dyregård, rideskole, flere lekeplasser og minigolf. Her finner du også skiløyper og morsomme akebakker langs Brannfjellskogen om vinteren.
Flere barnehager og skole i nærområdet.
Buss til Oslo sentrum ligger rett ved døren og bruker få minutter til Oslo sentrum og ca 10 minuttes gange til Oslo s.
Bebyggelse
Det er primært leilighets-/gårdsbebyggelse i området.
Adkomst
Adkomst fra Schweigaardsgate.
Det vil bli satt opp visningsskilt under visning.
Byggemåte
Det antas at bygningen er fundamentert på treflåter med grunnmurer av blokkstein. Det ble ikke avdekket tydelige setningsskader under befaringen, men det må påregnes at det kan være setningsskader og skjevheter som følge av setninger på slike eldre bygårder. Bærende konstruksjoner utført med pussede teglsteinsvegger og etasjeskillere utført med trebjelkelag, sannsynligvis med stubloftsleire.
Det er to ytterdører i lokalet. Dør ved utvendig hjørne er en ståldør/aludør med vindu, gitter og dørpumpe. Mot trappegangen er det en tredør av typen Swedoor, klassifisert som B30/30dB. Denne er noe skadet og slitt. Begge dørene har sikkerhetslås. Innvendige dører er enkle finerdør og furudører med profiler (speil).
Vinduene er med trerammer, luftespalte og isolerglass av eldre type (1989), med unntak av de to store vinduene i forretningen. Disse har også isolerglass, men av nyere dato (2013). De åpningsbare vinduene i forretningen er limt igjen /skrudd. På kjøkkenet er de åpningsbare, men dels ødelagt av boltehull.
I forretningslokalet er det et røykrør som tydet på at det tidligere har vært montert en ovn, her kan ildsted etableres. Alle pipene er oppgradrt i 2014. Eventuell brannmur er tapetsert. Det er ikke kontrollert eventuelle krav knyttet til et fremtidig ildsted her.
Det er elektrisk oppvarming av lokalene.
Det er et toalett i lokalet. Dette inneholder frittstående toalett og håndvask med ettgreps batteri. Det er en mekanisk vifte i taket, men denne fungerte ikke.
Alle overflater er slitte og trenger oppgradering. Det er også endel uferdige arbeider hva gjelder blant annet belistning, foringer etc.
Areal
1.etg: 94 kvm P-rom.
Følgende rom inngår i primærareal:
Forretningslokale, gang, toalett, kjøkken.
Lokalet har i dag ikke bod i kjeller eller på loft. Når borettslaget nå gjør om lokalet til en egen andelsleilighet, er det opplyst at borettslaget samtidig vil besørge plass til bod i kjeller og på loft som skal tilhøre leiligheten. Størrelser eller plassering er ikke gitt, men det legges til grunn at krav til bodareal dekkes.
Oppvarming
Strøm.
Tomten
Bygningen ligger sentralt til med en fantastisk flott bakgård. Her er det gressplener, store trær, sandkasser, lekestativ og felter med belegningsstein. Plass for sosiale grupper med benker og bord. Sykkelstativ.
Parkering
Gateparkering etter gjeldende bestemmelser.
Vei/vann/avløp
Offentlig. Kopi av tinglyste avtaler vil bli utlevert ved henvendelse til megler.
Forretningsfører
Usbl.
Borettslaget
Vi oppfordrer alle til å sette seg inn i vedtekter, husordensregler, regnskap, budsjett og årsberetning. Dokumentene vil være tilgjengelig hos meglerforetaket. Det gjøres oppmerksom på at fellesgjeld og felleskostnader kan variere over tid som følge av beslutninger foretatt i borettslagets styre og/eller generalforsamling.
Forkjøpsrett
Det praktiseres forkjøpsrett i borettslaget.
Styregodkjennelse
Kjøper skal godkjennes av styret og har selv risikoen for at godkjennelse blir gitt.
Dyrehold
Dyrehold er tillatt iht.borettslagets husordensregler.
Forsikring
If skadeforsikring
Polisenummer: 586985
Felleskostnader
4325,- pr. mnd estimert ved salg på 2.500.000,-
4508,- pr. mnd. estimert ved salg på 2.000.000,-
Dette er et estimat, vil variere i henhold til kjøpesum.
Andel fellesgjeld/fellesformue
Fellesgjeld:
91.095,- (estimert ved salg på, 2.500.000,-)
122.602,- (estimert på salg på 2.000.000,-)
Lånevilkår
Lånenummer: 12127267292, DNB Bank ASA
Annuitetslån, 4 terminer per år.
Rentesats per 16.01.2015: 3.5% pa.
Antall terminer til innfrielse: 116
Saldo per 16.01.2015: 2 755 335
Andel av saldo: 253 143
Sikringsordning
Borettslaget er sikret mot tap av felleskostnader i BBL Finans AS, Boligbyggelagenes Finansieringsforetak AS. Borettslaget er, etter gjeldende bestemmelser fastsatt av finansieringsselskapet, sikret mot tap som følge av at en andelseier unnlater å betale sine felleskostnader. Avtalen om sikring er gyldig til avtalen sies opp av en av partene. Oppsigelsesfrist er 1. desember med gyldighet fra førstkommende årsskifte.
Faste løpende kostnader
Strøm, forsikringer og felleskostnader.
Ferdigattest/midlertidig brukstillatelse
Det er gitt bruksendring fra Plan og byggningsmyndighetene.
Utleie
Med godkjenning fra styret er utleie tillatt for inntil 3 år, dersom andelseier selv eller person nevnt i Borettslagsloven § 5-6 (1) nr. 3 har bebodd eiendommen i minst ett av de to siste årene.
Diverse
Det er en forutsetning for salget er at kjøper tar lokalet i bruk som bolig (det er gitt rammetillatelse til bruksendring). Det er en forutsetnng at bruksendringen gjennomføres hos kommunen.
Næringsvirksomhet vil ikke akspeteres.
Bygningen er kommunalt listeført som verneverdig forøvrig ligger eiendommen innenfor fredet område. Det vises til Byantikvarens gule liste.
Reguleringsmessige forhold
Eiendommen ligger i et område regulert til boligformål.
Eiendommens betegnelse
Andelsnr. 2 Orgnr. 951388564 i Oslo kommune
Oppgjør
Med mindre annet er avtalt forutsettes det at kjøpesum inkludert omkostninger er innbetalt og disponibelt på meglerforetakets klientkonto innen overtagelse.
Eierskifteforsikring
Selger har ikke tegnet eierskifteforsikring på boligen. Selger har likevel utarbeidet en egenerklæring som kjøper bør gjøre seg kjent med før budgivning.
Boligkjøperforsikring
Vi ber om at dere tar stilling til om dere ønsker å tegne boligkjøperforsikring, se vedlagt produktark for nærmere informasjon. Forsikringen gir deg umiddelbar tilgang til spesialisert advokat, og fritar deg for den økonomiske prosessrisikoen ved reklamasjoner. Vi vil legge dette inn i kontrakten med mindre dere ikke ønsker å tegne forsikringen.
Løsøre og tilbehør
Listen over løsøre og tilbehør utarbeidet av Norges Eiendomsmeglerforbund av 1. februar 2012 legges til grunn for salget dersom ikke annet fremkommer av salgsoppgaven. Listen er tilgjengelig hos oppdragsansvarlig samt på www.nef.no. Til orientering er det full avtalefrihet om hva som skal følge med bolig og fritidsbolig ved salg.
Solgt "som den er"
Eiendommen selges i den stand den var ved kjøpers besiktigelse, jf. avhendingsloven § 3-9. Dette innebærer bl.a. at det kun kan påberopes mangel der dette følger av § 3-7 eller 3-8: "kjøper ikke har fått opplysninger som selger kjente eller måtte kjenne til, og som kjøperen hadde grunn til å regne med å få, eller når selger har gitt uriktige opplysninger om eiendommen. Dette gjelder likevel bare dersom man kan gå ut fra at det har innvirket på avtalen at slik opplysning ikke ble gitt." Det kan også foreligge mangel hvis eiendommen er i vesentlig dårligere stand enn kjøper hadde grunn til å regne med ut fra kjøpesummen og forholdene for øvrig. Kjøper kan ikke påberope seg noen andre bestemmelser etter avhl. kap 3 enn de regler som er ufravikelige i forbrukerforhold, jf. avhendingsloven § 3-9, jfr § 1-2 (2).
Finansiering
Aktiv Eiendomsmegling samarbeider med sparebankene i Eika Gruppen AS og konsernets produktselskaper om formidling av finansielle tjenester. Ta gjerne kontakt med oppdragsansvarlig for et uforpliktende tilbud vedrørende finansiering. Meglerforretningene kan motta provisjon ved formidling av finansielle tjenester.
Ta kontakt med megler for komplett informasjon
Nærområdet
IKKE I BRUK - Aktiv Nordre Aker
Annonsene kan være mangelfulle i forhold til lovpålagt opplysningsplikt. Før bindende avtale inngås oppfordres interessenter til å innhente komplett informasjon fra meglerforetaket, selger eller utleier.
























