Bildegalleri

Lekkert kjøkken med god takhøyde
SKILLEBEKK/VIKA. Unik og lekker loftsleilighet. Peis. Takterrasse på ca. 22 kvm. Solrikt og usjenert.
Nøkkelinfo
- Boligtype
- Leilighet
- Eieform
- Eier (Selveier)
- Soverom
- 2
- Primærrom
- 111 m²
- Bruksareal
- 111 m²
- Byggeår
- 1895
- Energimerking
- G - Rød
- Tomteareal
- 521 m²
- Bruttoareal
- 120 m²
- Boligselgerforsikring
- Ja
Fasiliteter
Beskrivelse
Moderne og særdeles gjennomført toppleilighet beliggende i ett lite sameie. Leiligheten går over to plan. Den er lys og gjennomgående med usjenert beliggenhet, uten innsyn og solrikt. Den store fredelige terrassen, som har himmelretning mot syd og vest har adkomst fra soverommet. Det er fine solforhold på terrassen, også kveldsol.
Eksklusiv, lys og stilfull selveierleilighet som ble gjennomgående modernisert i 2007 og i 2012. Alle overfalter ble malt på nytt i 2012. Leiligheten ligger i 5. og 6. etasje (toppetasje) og fremstår som meget gjennomført, ny, og med høy standard. Det er god takhøyde, plassbygde innredninger og fine løsninger. En topp moderne og lekker leilighet med mange fasiliteter. Delikat bredplanket enstavs eikeparkett på alle rom og lekre fliser på badene. Lyse overflater, downlights og elegante material- og fargevalg. En meget detaljrik og gjennomført leilighet av de sjeldne. Det er utgang til solrik terrasse på ca. 22 kvm fra soverom. En topp leilighet som må oppleves!
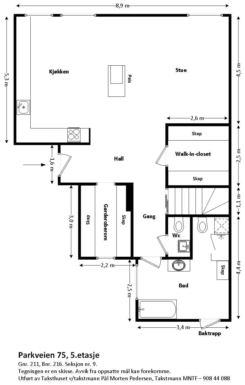
Inneholder 5. etg: Entré, hall, garderobe/soverom, gjeste toalett, gang, stort lekkert kjøkken/spisestue med peis, stor lys stue som er åpen mot kjøkken og peis, walk-in-closet, lekkert bad/wc.
6. etg: Stort soverom med utgang til sydvestvendt terrasse. Det kan enkelt gjøres om til flere soverom.
I tillegg disponerer leiligheten 1 kjellerbod og liten bod i baktrappen.
Beliggenhet
Leiligheten tilhører et lite sameie i nedre del av Parkveien med utsikt mot Bervens Løkke. Gaten ligger sentralt til i Vika med alle byens fasiliteter "rett rundt hjørnet". Det er kort vei til alle typer servicetilbud, forretninger og offentlig kommunikasjon samt barnehage, skole og idrettsanlegg. Parkanlegg i umiddelbar nærhet. 2 minutters gange til Solli Plass/Bygdøy Allé samt Aker Brygge og Tjuvholmen med rikelig tilbud av restauranter og kulturliv. Frognerstranda og Bygdøy tilbyr både friluftsområder og bademuligheter på sommertid.
Parkering
I gate etter gjeldende bestemmelser.
Standard
Gulv: Fliser i bad og wc-rom. Forøvrig enstavs eikeparkett.
Påkostninger:
Ny enstavs eikeparkett og fliser i 2007.
Vegger: Malte flater og malt teglstein. Tapet på 1 vegg i soverommet.
Påkostninger:
Gjennomgående modernisert i 2007 og malt på nytt i 2012 ifølge eier.
Himlinger: Malte himlinger. Lys i vegg i trappen.
Downlights i garderoberom, gang og bad.
Takhøyde er fra 205 cm til 356 cm i 5.etasje. I loft er takhøyde 290 cm.
Kjøkkeninnredning: Hvit, høyglans kjøkkeninnredning med glatte skapdører og skuffefronter. Godt med skap- og benkeplass. Romslig spiseplass/spisestue. Kjøkkenvifte. Integrert kjøleskap, fryser, komfyr, keramisk topp og oppvaskmaskin. Stål vaskekum nedfelt i kalkstein benkeplate. Påkostninger:
Ny kjøkkeninnredning i 2007 ifølge eier.
Sanitær:
Bad: Fliser på gulv med varmekabler. På vegger er det dels fliser og dels malte flater. Opplegg for vaskemaskin og tørketrommel i skap. Servant på kalkstein benkeplate med hylle. Downlight. Veggfestet toalett med skjult sisterne. Badekar innmurt/fliset med termostat blandebatteri. Dusj med glassvegg/dør.
Wc-rom:
Fliser på gulv med varmekabler. Malte vegger. Servant. Downlight. Veggfestet toalett med skjult sisterne.
Påkostninger:
Badet ble pusset opp i 2007 ifølge eier.
Skap og reoler:
Garderoberom med 6 doble garderobeskap. Walk-in-closet.
Oppvarming
Peis i kjøkken/stue. Varmekabler på bad og toalett. Elektrisk oppvarming med panelovner.
Tomt
Meget hyggelig bakgård med belegningsstein, benker og bord.
Regulering
Eiendommen er regulert til boligformål, se vedlagte reguleringskart.
Lånevilkår fellesgjeld
Sameiet har lån i Fornebu Sparebank med en effektiv rentesats på 5,71% pr. d.d.
P-rom
5. etg.: Entré, hall, garderoberom, gang, wc, bad/wc, kjøkken med stor spiseplass, stue, walk-in-closet. 6. etg.: Soverom med utgang til terrasse.
Byggemåte
Grunn og fundamenter:
Fundamentert med betong, trolig til faste masser.
Takkonstruksjoner:
Trekonstruksjon tekket med stålplater.
Påkostninger:
Taktekkingen ble tekket om i 2012 ifølge eier.
Sekundære bygningsdeler utvendig, generelt:
Murkonstruksjon, utvendig pusset og malt samt forblendet med tegl og
ornamenter.
Vinduer:
Vinduer og terrassedør med 2-lags glass fra 1986.
Lyd (35 dB) og brannklassifisert (B-30) entredør.
Hvite, glatte innerdører. Glass skyvedør foran trappen. Glassdør til badet. Veluxvinduer.
Takstmann
Pål Morten Pedersen
Taksttype
Verditakst
Energimerking
Eier skal legge frem energiattest for kjøper, før avtale om salg av boligen blir inngått. Se www.energimerking.no for mer informasjon.
Forsikring
Gjensidige Forsikring
Polisenummer
56317465
Ta kontakt med megler for komplett informasjon
Nærområdet
Advokat Ek
Annonseinformasjon
| FINN-kode | 50878165 |
|---|---|
| Sist endret | 25. okt. 2014 09:44 |
| Referanse | EK0114128 |
Annonsene kan være mangelfulle i forhold til lovpålagt opplysningsplikt. Før bindende avtale inngås oppfordres interessenter til å innhente komplett informasjon fra meglerforetaket, selger eller utleier.




























