Bildegalleri

Bærums Verk - Lys og smakfull enebolig m/flott utsikt og meget gode solforh. Barnevennlig omr.
Nøkkelinfo
- Boligtype
- Enebolig
- Eieform
- Eier (Selveier)
- Soverom
- 5
- Primærrom
- 162 m²
- Bruksareal
- 164 m²
- Byggeår
- 1987
- Energimerking
- F - Oransje
- Tomteareal
- 293 m² (eiet)
- Bruttoareal
- 178 m²
Fasiliteter
Innhold
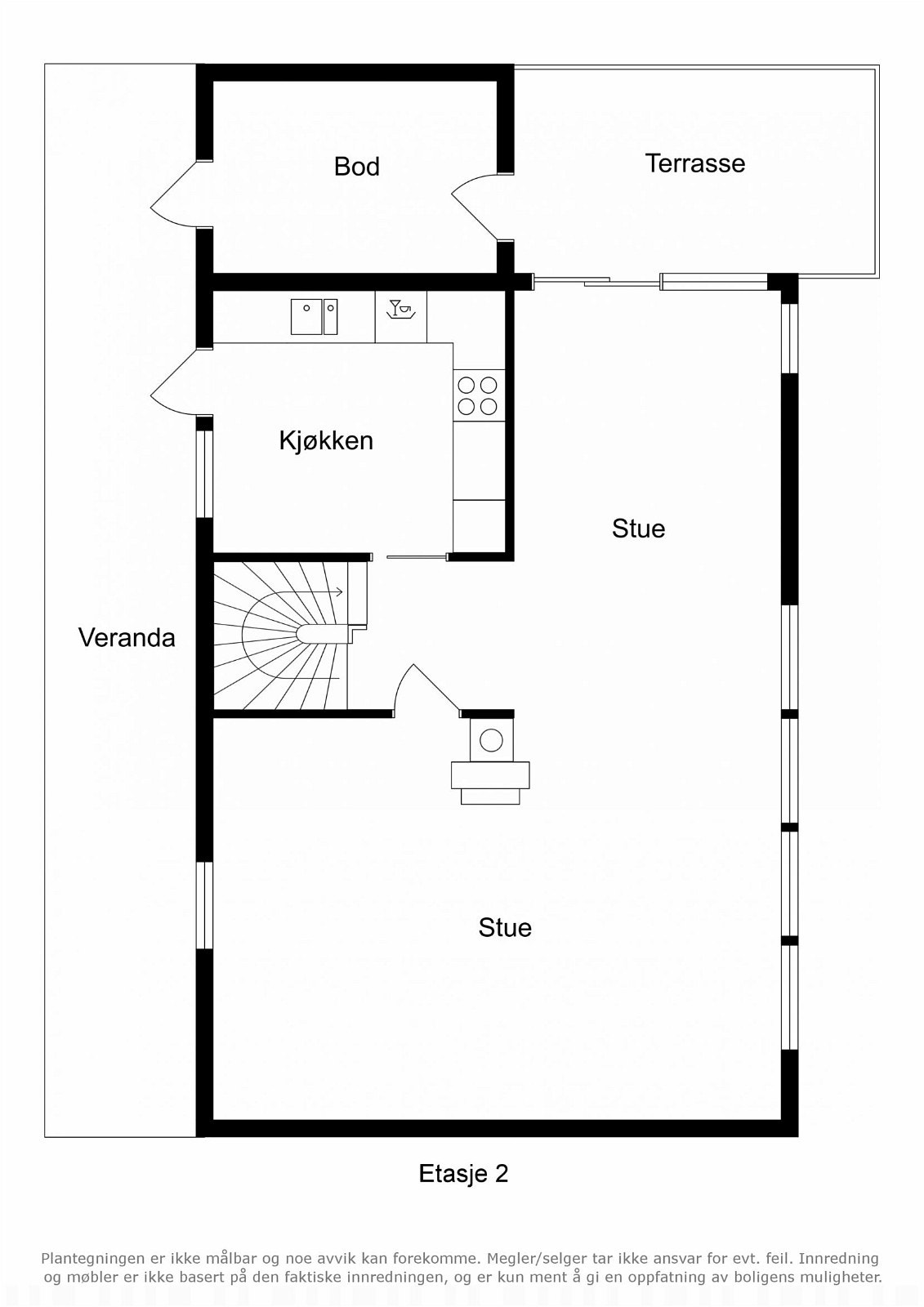
Enebolig over 3 plan som inneholder:
U.etg.: Entré/gang, tre soverom, to bad, vaskerom og bod.
1.etg.: Stue, spisestue og kjøkken.
2.etg.: To soverom, loftstue og kott.
Fra stuen er det utgang til terrasse på ca 11 kvm med meget flott utsikt, hvor solen kan nytes til langt på kveld.
Fra kjøkken er det utgang til usjenert terrasse med god plass.
Boligen har to uteboder, en i u.etg som er på 4 m2 og en i 1.etg som er på 7 m2.
Til boligen medfølger det en garasjeplass i felles garasjeanlegg.
Standard
Enebolig med en gjennomgående god standard. Boligen har en praktisk og fin planløsning, boligen fremstår som lys og romslig. Dette er en bolig som bør passe en barnefamilie perfekt. Store deler av boligen ble oppusset i 2010 og i 2014.
Pent kjøkken med hvit innredning i profilerte fronter, laminat benkeplate, ventilator, plater over kjøkkenbenk og opplegg til oppvaskmaskin. Kjøkkeninnredning er fra 2010.
Hovedbad med fliser på vegger og gulv, badekar, servant og wc. Det er sprekk i noen fliser.
Baderom 2 med vinyl på gulv, våtromsplater på vegger, dusjhjørne, servant og wc. Badet ble pusset opp i 2010.
På gulvene i 2-etg. er det i hovedsak malt furu. Parkett på det store soverommet.
1-etg. med ny parkett i stuen og laminat på kjøkken.
U-etg. med fliser på hovedbad. Vinyl i vaskerom og bibadet. Det er laminat i gangen og på soverommene.
På veggene er det fliser på hovedbad. Våtromsplater på bibadet. Hovedsak malte flater i de øvrige rom fra 2014.
I himling er det hovedsak malte flater og malt panel.
Oppvarming
På hovedbadet er det varmekabler.
Det er peis i stuen.
Boligen er forøvrig oppvarmet med panelovner.
Beliggenhet
Solrik, barnevennlig og landlig beliggende i bilfritt boområde på Helset, Bærums Verk. Kort vei til idylliske Bærums Verk hvor du finner de fleste servicetilbud og variert serveringstilbud fra pizzeria, baker, hollansk pannekakehus til gourmet mat på Vertshuset.
Kort vei til barnehage og Bærums Verk eller Lesterud barneskole, samt Mølladammen ungdomsskole
Bærums Verk har et variert tilbud til de sportsinteresserte med marka i umiddelbar nærhet, fotball- og isbane, ridesenter, hopp- og slalombakker, lysløype, golfbane og idrettsanlegg.
God offentlig kommunikasjon til Sandvika, Bekkestua og Oslo med bl.a. ekspressbuss og nattbuss i tillegg til de ordinære bussavgangene
Ca 10 minutter med bil til Sandvika sentrum med alle nødvendige servicetilbud, samt badestrender på Kalvøya og Kadettangen.
Adkomst
Fra Bærums Verk Handelsted kjør mot Shell-stasjonen. Ta til høyre i rundkjøringen. Deretter opp Linderudveien på høyre side.
Det vil bli skiltet godt med visningskilt til felles visninger.
Tomten
Tomten er opparbeidet gressplen, busker og trær. Fellesarealer har asfalterte gangveier og øvrige arealer er beplantet.
Det er særdeles gode solforhold på eiendommen. Tomten heller mot vest.
Parkering
Til boligen medfølger det en garasjeplass i felles garasjeanlegg.
Det er i tillegg opparbeidet flere gjesteparkeringsplasser.
Diverse
Denne eiendommen er pliktig medlem i Linderudveien Huseierforening og må betale årlig avgift på ca 8 000,- kr for vedlikehold av fellesarealer og kabeltv avgift. Kommualeavgifter, vedlikehold og forsikringer må dekkes av den enkelte.
Det er montert opplegg til:
- Sentralstøvsuger
- Kabel antenne.
- 8 markiser
Ta kontakt med megler for komplett informasjon
Nyttige lenker
Nærområdet
DNB Eiendom AS
Annonsene kan være mangelfulle i forhold til lovpålagt opplysningsplikt. Før bindende avtale inngås oppfordres interessenter til å innhente komplett informasjon fra meglerforetaket, selger eller utleier.

































