Bildegalleri

Stue
Sinsen: Arealeffektiv 1-roms med stort bad. Flott, felles takterrasse!
Nøkkelinfo
- Boligtype
- Leilighet
- Eieform
- Andel
- Primærrom
- 19 m²
- Bruksareal
- 19 m²
- Byggeår
- 2005
- Rom
- 1
- Tomteareal
- 8 375 m² (eiet)
- Bruttoareal
- 21 m²
Fasiliteter
* Effektiv planløsning
* Sentralt beliggende
* Kort vei til offentlig kommunikasjon
Innhold:
Adkomst til store, felles takterrasser i byggets 6. og 7. etasje! Flotte solforhold og lekker utsikt over Oslo by.
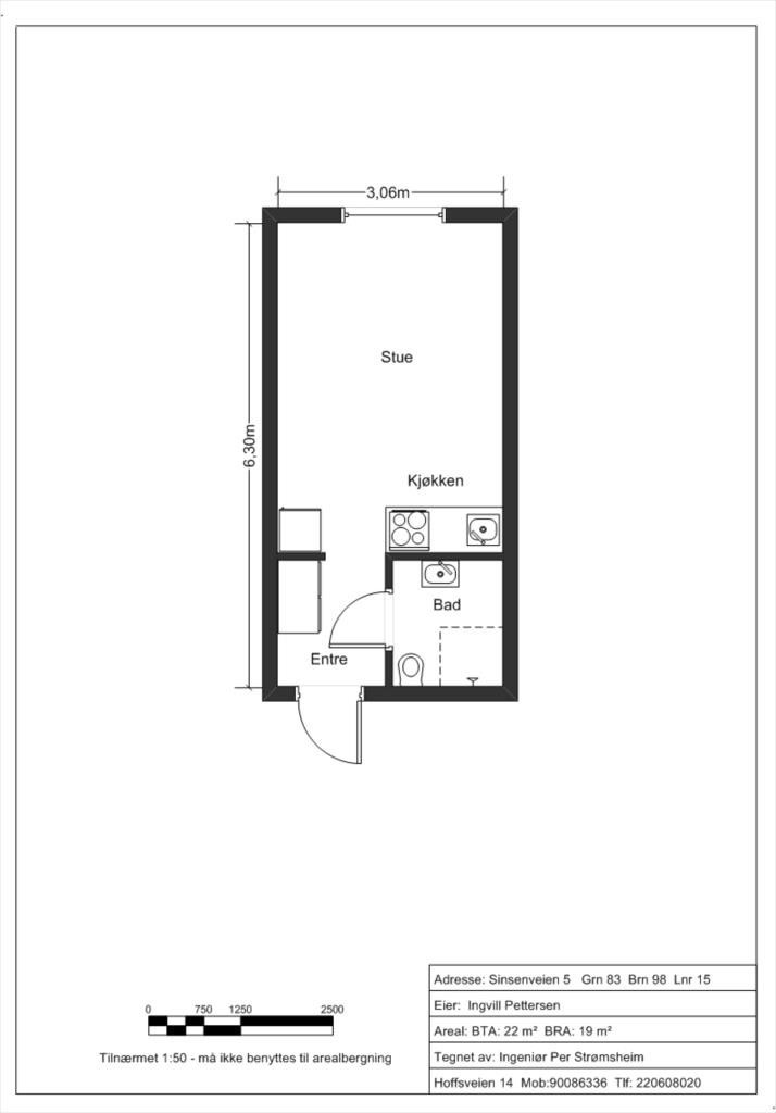
Leiligheten ligger i 1. etasje og inneholder: Entré, bad/wc, kjøkken og stue. I tillegg disponeres 1 bod i kjeller.
Standard:
Praktisk kjøkken i åpen løsning mot stue. Innredning med glatte, folierte fronter og laminat benkeplate. Stue med utsyn over fellesområder.
Romslig bad med dusj, veggmontert wc med skjult sisterne og servant med overskap. Varmekabler i gulv.
Entré med garderobeskap.
Gulv: Støpte etasjeskiller. Eikeparkett. Fliser på bad.
Vegg: Malte plater og malt mur. Fliser på bad.
Himling: Malt og pusset betong. Stålplatehimling på bad.
Beliggenhet:
Meget sentralt og attraktivt beliggende på Sinsen/Carl Berner. I nærområdet er det godt utvalg
av forretninger, restauranter, treningssenter (Bare Trening & ELIXIA) og øvrige
servicefasiliteter.
Torshovdalen med store grøntområder i umiddelbar nærhet. Det er gangavstand til Grünerløkka og Carl Berner, Botanisk Hage, Tøyenbadet, Sofienbergparken og Tøyenparken.
Veien er også kort til Nydalen som har gjennomgått stor utvikling de siste år, her finner du bla Handelshøyskolen BI.
Godt med offentlig kommunikasjon (buss og trikk) i Trondheimsveien, flybuss til Gardermoen og T-bane fra Sinsen eller Carl Berner som går direkte til BI Nydalen og UiO på Blindern.
Diverse:
INGEN FORKJØPSRETT!
- Borettslaget består av 237 leiligheter fordelt på 4 bygninger, samt 110 garasjeplasser.
- Borettslaget har egen hjemmeside: www.carlberner.net.
- I tillegg til opplegg for vaskemaskin på bad er det fellesvaskeri i 1. etasje i hver bygning. Må kjøpes vaskekort før bruk.
- Get er leverandør av kabel-tv tjenester.
- Alle hvitevarer medfølger i handelen. Dette gjelder ikke løse småapparater.
- Sikringsskap med automatsikringer i felles gang.
- Det eksisterer ferdigattest på eiendommen.
Adkomst:
Adkomst fra Sinsenveien, enkel adkomst med buss, trikk og t-bane. Det vil skiltes under annonserte visninger.
Parkering:
Parkering i gate etter gjeldende bestemmelser. Ved ønske om garasjeplass i borettslagets anlegg kan man sette seg opp på forkjøpsrettlisten ved å sende mail til styret, alternativt ved direkte kjøp fra eier av plassen (her er det også forkjøpsrett).
Fyring/Oppvarming:
Elektrisk oppvarming. Varmekabler på bad.
Byggemåte:
Fra takst: Støpte fundamenter og grunnmur på fast grunn. Bærende konstruksjoner i betong, utfyllende isolert bindingsverk med platekledd fasade. Flatt oppforet papptekket tak med innvendig nedløp.
Trevinduer og balkongdør med energi-isolerglass. Lyd- og brannklassifisert entrédør.
Tomt:
Pent opparbeidede fellesarealer med plen, beplantning, lekeapparater og sittegruppe.
Lånevilkår:
Lånegiver: Husbanken
Type lån: Annuitet
Restsaldo: kr. 74.686.032,-
Andel av saldo: kr 136.033,-
Restløpetid: 23 år
Terminer per år: 4
Rente: Flytende
Lånegiver: Husbanken
Type lån: Annuitet
Restsaldo: kr. 49.863.662,-
Andel av saldo: kr 90.826,-
Restløpetid: 22 år 9 mnd
Terminer per år: 4
Rente: Fast
Lånegiver: Husbanken
Type lån: Annuitet
Restsaldo: kr. 127.956.610,-
Andel av saldo: kr 233.067,-
Restløpetid: 22 år 9 mnd
Terminer per år: 4
Rente: Fast
Borettslaget har inngått avtale om "Average Rate Swap" for halvparten av Husbanklånet. Rentene justeres hvert kvartal iht Husbankens flytende rente og avtalen løper til 2017.
Borettslaget er medlem av Stiftelsen Borettslagenes Sikringsfond. Det er ikke IN-ordning på fellesgjelden.
Vei, vann og avløp:
Offentlig adkomst, øvrig ikke opplyst i takst.
Overtakelse:
Etter nærmere avtale med selger, dog må styregodkjennelse foreligge før overtagelse.
Energimerking:
Det foreligger ikke energiattest på denne boligen pr. avtaletidspunkt.
Selges "som den er":
Eiendommen selges "som den er", jf. avhendingsloven § 3-9. Dette innebærer at avhendingslovens regler om når eiendommen har mangel fravikes til ugunst for kjøper. Eiendommen har allikevel mangel der dette følger av avhendingslovens § 3-7 "manglende opplysninger om eiendommen" eller § 3-8 "uriktige opplysninger om eiendommen" eller eiendommen viser seg å være i vesentlig dårligere stand enn kjøper hadde grunn til å regne med ut fra kjøpesummen og forholdene for øvrig.
Regulering
Ta kontakt med megler for komplett informasjon
Nærområdet
Schala & Partners Carl Berner
Annonsene kan være mangelfulle i forhold til lovpålagt opplysningsplikt. Før bindende avtale inngås oppfordres interessenter til å innhente komplett informasjon fra meglerforetaket, selger eller utleier.

















