Bildegalleri

Langoddveien 121 - Presentert av Nils Nordvik
SNARØYA / LANGODDEN- Praktfull strandeiendom - Brygge - Sandstrand - Solrike terrasser - Dbl garasje - Svømmebasseng
Nøkkelinfo
- Boligtype
- Enebolig
- Eieform
- Eier (Selveier)
- Primærrom
- 423 m²
- Bruksareal
- 434 m²
- Byggeår
- 1991
- Energimerking
- E - Rød
- Rom
- 7
- Tomteareal
- 1 364 m² (eiet)
Fasiliteter
Visning
Ta kontakt for å avtale visning.Beskrivelse:
Velkommen til Langoddveien 121 - Eiendommen er beliggende vestvendt nest ytterst på en liten høyde og med egen strandlinje. Utsyn til fjorden mot Kjeholmen, Borøya, Storøya og friområder mot nordvest. Meget barnevennlig område - gode solforhold - Ingen trafikkstøy. Bryggeanlegg og stor flytebrygge med dybde ca. 6 meter Bøyemoring i sjøen på ca 8 meters dyp.
Kjøkken:
U. etasje: Hybelkjøkken i svømmehall. Bauknecht med 2 kokeplater, rustfri kum og
kjøleskap. Laminat benk og overskap.
1. etasje: Innredning fra Tone Hammel med malte profilerte fronter, er fra byggeåret. Heltre benkeplate. Fliser over benken. Elektrisk avtrekksvifte. Integrert stekeovn, komfyr med keramisk topp, grill, mikrobølgeovn og oppvaskmaskin. Kjøleskap med fryser samt kaldt vann og isbitmaskin.
Baderom:
U. etasje: 1) Omkledningsrom med dusj. Skyvedør til dusjen. Varmekabler i gulv.
2) Wc og søyleservant. Hvit porselen. Varmekabler i gulv.
1. etasje:
1) Wc og servant. Hvit porselen. Varmekabler i gulv.
2) Vaskerom. Hvit laminat innredning med rustfri kum. Opplegg for vaskesøyle.
Utgang til hagen. Varmekabler i gulvet.
2. etasje:
1) Dusj, wc, bidé og servant. Hvit porselen. Skyvedør til dusjen. Varmekabler i
gulv. Inngang fra trappegang.
2) Dusj, wc, bidé og 2 servanter. Hvit porselen. Glassdør til dusjen. Laminat benk med marmor benkeplate og underlimte servanter. Innmurt speil over benken. Varmekabler i gulvet. Downlights i himling. Inngang fra soverom i gjesteavdeling.
3) Hjørne boblekar, dusj, wc og 2 servanter. Hvit porselen. Innmurt kar. Glassdør til dusjen. Laminat benk med nedfeldte servanter. Innmurt speil over
benken. I dusjen er det fast dusjhode, dusjhode med slange samt 6 faste dyser på sidevegger. Varmekabler i gulvet. Inngang fra hovedsoverom. Inngang til Walk in closeth.
Uteareal:
Bryggeanlegg, stor terrasse med tredekke med oppmurt utepeis i naturstein, dusj med varmt og kaldt vann samt overbygget benk, areal ca 55 m². Gangbru ned til stor flytebrygge, 2,5 x 12 meter. Terrasse med utgang fra svømmehall med tredekke. Areal ca 30 m². Terrasse med utgang fra stuen med fliser på gulv, dels overbygget. Areal ca 54 m². Terrasse med utgang fra spisestuen med bruddskifer lagt på bakken, overbygget. Areal ca 10 m².
Innhold:
U. etg: Trappegang, svømmehall med peisestue,
teknisk rom, gang, wc, dusj/omkledning,
badstue, bod
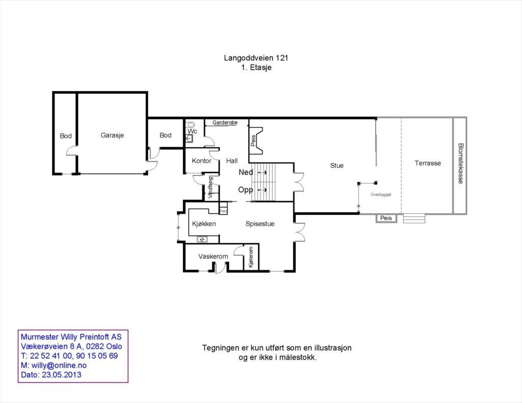
1 etg: Vindfang, hall, kontor, wc, spisestue, kjøkken, vaskerom, kjølerom, trappegang, stue.
2 etg: Trappegang, 4 soverom, gang, 2 walk in
closeth, bad/wc, 2 dusj/wc/bidé. (hovedsoverom har eget bad og walk in closeth, gjesteavdeling med eget dusj/wc og walk in closeth)
Garasje: Dobbeltgarasje, verksted/bod
(hems over del av garasjen, ca 7 m²)
Beliggenhet:
En perle nest ytterst på Langodden!
Langoddveien 121 ligger praktfull til i et etablert villastrøk med flotte eneboliger. Praktfull eiendom med sol hele dagen, praktfull utsikt og usjenert beliggenhet. For deg som liker båtlivet og nærhet til sjøen er eiendommen en unik mulighet. Snarøya regnes som et av Bærums mest eksklusive villastrøk. Nær Oslo sentrum, i snitt ca. 15 minutter med bil inn til byen. Med idylliske bukter, flere marinaer og badeplasser finner du et helt lite kystsamfunn her, hvor tilværelse langt på vei er innrettet mot sjø og sommerliv.10 min. med båt til Oustøen golfbane. Meget barnevennlig med skoler og barnehager, samt idrettsanlegg i nærheten.
Parkering:
Gode parkeringsforhold på egen gårdsplass samt i egen dobbeltgarasje.
Fyring/Oppvarming:
Hovedoppvarmingen er boligen er elektrisk. Varmekabler i alle våtrom, vaskerom, garasje og hobbybod, hele 1. etasje og U. etasje med unntak av bod, badstuen og kjølerom. Oppvarming ved elektriske ovner i soverom og gang Ventilasjon og avfuktningsanlegg i svømmehall med tilføring av oppvarmet luft til rommet via spalter i gulv ved dør til terrassen. Balansert ventilasjonsanlegg med tilbakeføring av varm luft til oppholdsrom. Diverse peiser, ved og gass. Alle vinduer i huset er tre lags isolerglass.
Adkomst:
Asfaltert adkomstvei og gårdsplass med granitt kantstein. Belegningsstein foran garasjen og inngangsparti. Skiferheller i gangveier. Støpt trapp med skifer i trinn fra hagen og ned til strandområdet og bryggen, rekkverk i børstet og rustfritt stål og tau.
Salgsbetingelser:
Eiendommen selges som den er, det vil si i den stand den forelå ved besiktigelse, jfr. lov av 3. juli 1992 nr 93 om avhending av fast eiendom, § 3-9 hvor det heter: Eigedom selt "som han er" el. - Endå om eigedomen er selt "som han er "eller med liknande allment atterhald, har eigedomen likevel mangel der dette følger av §§ 3-7 eller 3-8. Eigedomen har også mangel dersom han er i vesentlig ringare stand enn kjøparen hadde grunn til å rekne med ut frå kjøpesummen og tilhøva elles.
Selgeren bekrefter at han ikke er kjent med at eiendommen er beheftet med mangler i relasjon til offentligrettslige krav utover det som opplyst tidligere, jfr. Avhendingslovens § 3-2. Skulle det vise seg at slike krav likevel ikke er oppfylt er selgeren ikke ansvarlig for disse.
Med henvisning til Avhendingslovens § 3-10, oppfordres kjøper til å undersøke eiendommen grundig og gjerne med fagmann før avtale inngås (aksept av bud).
I forbrukerforhold skal megler ikke formidle bud med kortere akseptfrist enn kl 12.00 første virkedag etter siste annonserte visning, jfr. § 8-6 i forskrift om eiendomsmegling.
VED INNSENDING AV BUD OPPFORDRES ALLE BUDGIVERE TIL Å KONTAKTE MEGLER FOR BEKREFTELSE OM AT BUDET ER KOMMET MEGLER I HENDE.
Hvitvaskingsloven:
Eiendomsmeglere er fra 1/1-2004 underlagt hvitvaskingsloven. Dette innebærer at eiendomsmegler er forpliktet til å melde mistanke om forsøk på hvitvasking til ØKOKRIM.
Diverse:
- Alarm for innbrudd og røyk som har direkte link til Bærum Brannvesen.
- Sensorer og styringsenheter for utvendig belysning. 3 separate kretser. Timer
enheter plassert flere steder i boligen og i garasjen.
- Eritel hustelefonanlegg med sentral plassert i utvendig bod.
- Stikkontakter plassert utvendig flere steder rundt boligen.
- Tilknyttet Canal Digital kabel-TV.
- Det er montert høytalere i flere rom samt på terrasse ved stuen.
- Sentralstøvsuger: Beam sentralstøvsuger plassert i bod på repos i U. etasje. Tilkobling for slange i etasjene.
- Innvendig basseng i svømmehall. Utført i betong og med fliser på gulv og vegger. Størrelse er ca 8,5 x 3,75 meter og med vekslende dybde. Elektrisk trekk over bassenget. Motstrømsanlegg. Galvanisert ståltrapp ned i basseng. Elektrisk
oppvarming via varmekolbe i teknisk rom.
Beskaffenhet
Ta kontakt med megler for komplett informasjon
Nærområdet
Annonsene kan være mangelfulle i forhold til lovpålagt opplysningsplikt. Før bindende avtale inngås oppfordres interessenter til å innhente komplett informasjon fra meglerforetaket, selger eller utleier.





















































