Bildegalleri

Velkommen til en herskaplig villaperle av de sjeldne
SNARØYA-Lekkert arkitekttegnet teglsteinshus-Strandtomt-Panoramautsikt-Unikt
Nøkkelinfo
- Boligtype
- Enebolig
- Eieform
- Eier (Selveier)
- Soverom
- 5
- Primærrom
- 406 m²
- Bruksareal
- 438 m²
- Byggeår
- 2001
- Energimerking
- B - Gul
- Renovert år
- 2001
- Tomteareal
- 5 100 m² (eiet)
- Grunnflate
- 145 m²
- Boligselgerforsikring
- Ja
Fasiliteter
Beskrivelse
SE VEDLAGTE INNE OG UTEVIDEO - VIDEO NEDERST I ANNONSEN.
Eksklusiv strandeiendom med nyere herskapelig teglsteinsvilla, beliggende idyllisk til innerst i blindvei, på spissen av Snarøya med fantastisk fjordutsikt.
Vakker eiendom beliggende på en høyde med mektig utsikt og fantastiske solforhold. En stilsikker og meget påkostet bolig i 1. linje til fjorden med strand, brygge og fine badeområde.
En sjeldent innholdsrik eiendom med høy standard både utvendig og innvendig, med elegant arkitektonisk uttrykk i "lett engelsk stil". En særdeles gjennomført bolig med arealeffektiv og god, men samtidig fornem planløsning over 3 plan. Fremstår svært lys og luftig med ekstra takhøyde, store flotte vindusflater og gode rominndelinger som gir en behagelig og eksklusiv atmosfære. Gjennomgående snekkertilpasset innredning fra Giving som gir er forfinet og avslappende eleganse. Høy og utsøkt standard på innredninger, overflater og utstyr med bl.a. massivt heltre eikegulv, 4 stk gasspeiser, snekkertilpasset og delikat kjøkken fra Giving, utstrakt bruk av downlights med datastyrt belysning fra hovedenhet, balansert ventilasjonsanlegg, integrerte høytalere og meget høy teknisk standard i solid utførelse m.m.
MERK ! Eiendommen kan selges med eller uten ekstra tomt ( eget gårds-/bruksnummer) ta kontakt med megler for nærmere pris på denne!
En stor, representativ og flott hage i engelsk stil omkranser boligen. Smakfullt opparbeidet og tilpasset bygningen med bl.a. flotte grøntarealer, trære, beplantning, natursti, brostein, sjarmerende steinlagte og tilpassede gangstier samt solrike terrasseområder.
Eiendommen har i tillegg en flott, verdifull og utparsellert tomt beliggende på et høydedrag bakenfor hovedeiendommen med et stort potensial for boligbyging.
Store lysflater, panoramautsikt, meget gode solforhold, utsøkte materialvalg samt gjennomgående høy standard gjør atmosfæren komplett både innvendig og utvendig.
Dette er en unik anledning for den kresne! Utsett aldri til i morgen hva du kan nyte i dag. "Josh Billings"
Bildene som følger er kun et utvalg av hva eiendommen tilbyr, både når det gjelder ute og inne. Se også vedlagt VIDEO.
TOMT :
Tomteområdet er inndelt som følger:
Gnr. 43, Bnr.690: Hovedbolig: 2.461,7 kvm.
Pent opparbeidet tomt med stilriktig beplantning, trær, busker og grøntarealer med stenbelagt forgård, skiferbelagt terrasseområder og naturstier med brostein og trappesatser i sten. Vakker naturtomt ned til strandkant og brygge.
Gnr. 43, Bnr. 55: Ideell ½ part av strandparsell 1.912,3 kvm.
Naturtomt med sjarmerende trær og diverse beplantning.
Gnr. 43, Bnr. 742: Ideell ½ part av veiparsell 532,9 kvm
MERK ! Det er i tillegg mulig å få kjøpt tomten bak (kontakt megler)
Gnr. 43, Bnr. 741: Ubebygd tomt i bakkant av boligen: 740,5 kvm.
20 % BYA Naturtomt på høydedrag. men er IKKE medtatt i denne prisen !!
Beliggenhet
Sjelden eiendom beliggende stille og tilbaketrukket innerst i blindvei, på spissen av Snarøya i populært villaområde. Barnevennlig, trafikkstille og etablert område med landlige forhold og gode oppvekstvilkår for liten og stor. Eiendommen er beliggende med dirkete adkomst til strand, brygge, badeplass samt muligheter for båtfeste (ikke etablert). Kort gange til nærbutikk, bare noen minutters kjøretur til storsenteret CC-vest og flytog på Lysaker. Nærområdet byr på en rekke fritidstilbud på Hundsund med bl.a. tennisbaner, kunstgressbane, svømmehall og skøytebane på vinterstid. Et idyllisk område med kort gange til flotte turområder og maritimt miljø. Store friområder med supre rekreasjonsområder i Fornebuparken, sommer som vinter. Stor badestrand på Storøya.
Inneholder
Bolig med god arealutnyttelse, luftige rom og store lysflater hvor det er lagt stor vekt på panoramautsikt mot fjorden og utsøkt materialvalg.
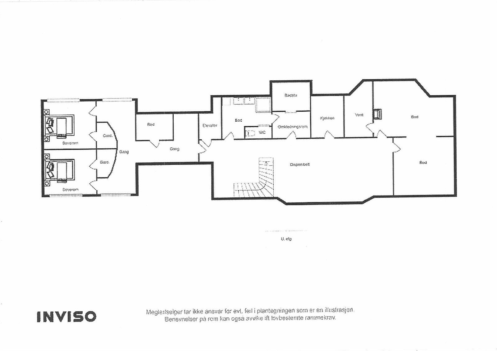
U etasje:
Sjeldent flott kjellerstue/Gildehall med stor spiseplass, innredet disp. rom/ kontor, bod, teknisk rom, elektrisk rom, kjølerom, praktisk omkledningsrom, pent bad, separat WC, badstue, mellomgang, gang, garderoberom, 2 sjarmerende soverom med oval vegg og bra med garderobeplass.
1. etasje:
Entré/hall med stor elegant inngangsdør, mektig takhøyde og lekkert trapperom, praktisk snekkertilpasset garderobe, romslig bibliotek, WC rom, innbydende kjøkken med delikat og klassisk spesialtilpasset kjøkkeninnredning med spiseplass og utsikt, elegant og åpen spisestue med nivåforskjell ned til lys og stor stue med direkte utgang til steinbelagt terrasse og hage med imponerende utsikt.
2. etasje:
Mesanin med utsikt ned til inngangsparti, gang, praktisk vaskerom, 2 stk pene bad med WC, stort walk-in closet, 3 gode soverom med skapplass hvorav hovedsoverom med utgang til romslig balkong på ca.10 kvm med vakker utsikt. Adkomst via nedfellbar stige til stort kaldtloft.
Standard
Vinduer/dører:
2 lags energiglass. Lakkert og profilert tofløyet ytterdør i ekstra høyde. Terrasse og balkongdør med 2 lags energiglass hvor alle vindusbrett i kobber. Malte trefyllingsdører innvendig av typen Swedoor.
Dekker- gulv og overflater:
Etasjeskillere av betongelementer med innstøpt vannbåren varme i gulv. Overflater med heltre massiv eikegulv, marmorfliser, keramiske fliser. Fliser i hele U-etasje, bad, vaskerom og hall.
Innervegger:
Pusset og malte innvendige flater, diverse eksklusive tapeter, trepanel, fliser på alle bad og vaskerom.
Himling:
Kistetak med skåhimling og flat himling. Pusset og malte flater, trepanel.
Trapperom:
Heltre massiv eiketrapper mellom etasjene.
Kjøkken:
Klassisk og delikat snekkertilpasset kjøkkeninnredning fra Giving. Malte profilerte heltre fronter. Slipt steinplate på benk med nedfelt vaskekum og keramisk gass/platetopp. Integrert komfyr, kjøl, frys og oppvaskmaskin. Avtrekksvifte med hette. Godt med skapplass. Hyggelig spiseplass med utsikt.
Sanitær:
U etasje:
Bad 3: Pent bad/WC med dusjnisje og dører i herdet glass, servant med underskap. Veggmontert WC.
Badstue med el. ovn. Tilpasset TYLØ baderomsinnredning i badstue og omkledningsavdeling.
1 etasje:
Separat WC med søyleservant og toalett.
2 etasje:
Bad 2: Pent bad /WC med dusjnisje og dører i herdet glass. Slip Larvekit benkeplate med underlimt servant, underskap/skuffer. Toalett. Håndkletørker.
Bad 1: Pent bad/WC med innmurt flislagt badekar og dusjnisje med dører i herdet glass. Slipt Larvekit benkeplate med underlimt 2 stk. servanter, underskap og skuffer. Veggmontert WC, håndkletørker.
Vaskerom: Praktisk vaskerom med benkeplate og nedfelt utslagsvask, skapinnredning. Opplegg for vaskemaskin/tørketrommel/tørkeskap.
HTH-skapinnredninger.
Diverse:
- Innfelt downlights med lysdimmere i de fleste rom. Datastyrt belysning fra hovedenhet.
- Sentralstøvesuger med uttak i alle etasjer. Flere uttak i hver etasje.
- Velutstyrt sikringsskap med automatsikringer og overspenningsvern i eget elektrisk rom i U. etasje.
- Teknisk rom for røranlegg og varmepumpeinstallasjoner.
- Innfelt høytalere i stue, vaskerom og på kjøkken for musikkanlegg.
- Bokseksjon i bibliotek.
- 2 utekraner. En frostfri utekran samt en som stenges fra kjeller.
- Klassisk utebelysning.
- Rørsystem med vannbåren varme ute ved inngangs- og garasjeområde, flere egne sløyfer som styres fra ventiler i garasje.
- Røyk og tyverivarsling til Bærum brannvesen.
Oppvarming
Vannbåren gulvvarme i alle gulv i alle etasjer.
Jordvarmeanlegg (varmepumpe) med 2 stk. dypboring til ca. 150 meter.
2 balanserte ventilasjonsanlegg med varmegjenvinning av type Villavent.
4 stk. pipeløp/ 4 stk gasspeiser. Murt pipeløp i stue, Stålpipe på kjøkken, Stål/murt pipe i bibliotek og stålpipe i U-etasje. Vifte på tak til alle peiser.
Nedgravd gasstank.
Parkering
Dobbelgarasje:
Elegant dobbelgarasje med 2 biloppstillingsplasser og automatisk leddport. Arbeidsbenk samt hems med lagerplass. Dobbelgarasje med støpt dekke, flislagt. Yttervegger i Leca blokk. Utvendig forblendet med antikk håndbanket Hollandsk teglstein. Pyramidetak. Yttertak i trekonstruksjon tekket med Hollandsk glasert takstein. Renner og nedløp i kobber.
Brostensbelagt gårdsplass med biloppstillingsplasser og utebelysning med lyssensor.
Annen info 3
Annen info 4
Annen info 5
Beskaffenhet
Brutto eiet tomt inklusiv ubebygd tomt: 3.202,2 kvm.
Brutto eiet ideell halvpart 2.445,2 kvm.
Tomteområdet er inndelt som følger:
Gnr. 43, Bnr.690: Hovedbolig: 2.461,7 kvm.
Pent opparbeidet tomt med stilriktig beplantning, trær, busker og grøntarealer med stenbelagt forgård, skiferbelagt terrasseområder og naturstier med brostein og trappesatser i sten. Vakker naturtomt ned til strandkant og brygge.
Gnr. 43, Bnr. 741: Ubebygd tomt i bakkant av boligen: 740,5 kvm.
20 % BYA Naturtomt på høydedrag.
Gnr. 43, Bnr. 55: Ideell ½ part av strandparsell 1.912,3 kvm.
Naturtomt med sjarmerende trær og diverse beplantning.
Gnr. 43, Bnr. 742: Ideell ½ part av veiparsell 532,9 kvm
Ta kontakt med megler for komplett informasjon
Nærområdet
Nordvik Bolig
Annonsene kan være mangelfulle i forhold til lovpålagt opplysningsplikt. Før bindende avtale inngås oppfordres interessenter til å innhente komplett informasjon fra meglerforetaket, selger eller utleier.















































