Bildegalleri

Fasade.
Pent og innholdsrikt rekkehus med solrik beliggenhet på Flatåsen. Barnevennlig boområde.
Nøkkelinfo
- Boligtype
- Rekkehus
- Eieform
- Andel
- Soverom
- 4
- Primærrom
- 152 m²
- Bruksareal
- 159 m²
- Byggeår
- 1977
- Energimerking
- E - Oransje
- Rom
- 6
- Tomt
- Eiet
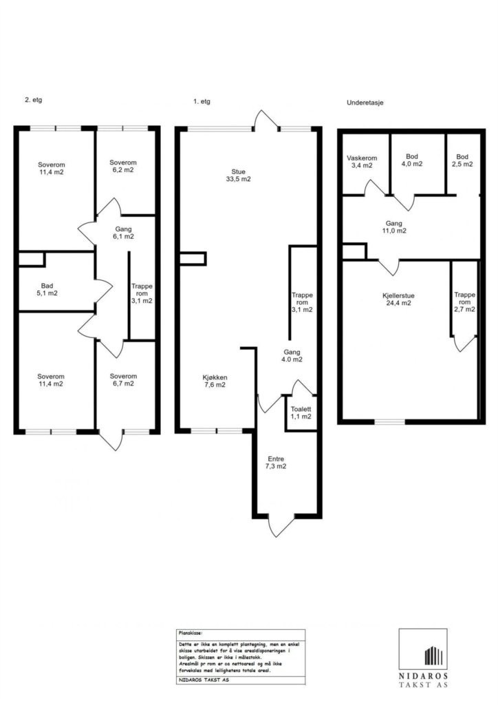
Innhold:
Primærrom:
Underetasje: Kjellerstue, gang og vaskerom.
1. etasje: Entré, toalett, gang, stue og kjøkken.
2. etasje: Gang, bad og 4 soverom.
Sekundærrom:
Kjeller: 2 boder.
Diverse:
Terrasse og plen med utgang fra stue, veranda med utgang fra soverom samt utvendig bod og mulighet for sittegruppe ved inngangsparti.
Standard:
Underetasje:
Kjellerstue:
Laminatparkett på gulv, malt panel på vegger og malt betongdekke i himling.
Gang:
Pusset betong på gulv, panel og ubehandlede betongvegger, malt betongdekke i himling.
Vaskerom:
Malt betong på gulv, plater og ubehandlede betongvegger, betongdekke i himling.
Innredning/utstyr: Kran og avløp for vaskemaskin, vaskekar.
Bod 1:
Sponplater på gulv, plater og betongvegger, betongdekke i himling.
Bod 2:
Malt betong på gulv, panel og betongvegger, malt betongdekke i himling.
Innredning: Hyller.
1 etg.:
Entre:
Flis på gulv, malte panelplater på vegger og folierte takplater i himling.
Innredning: Skyvedørsgarderobe.
Toalett:
Flis på gulv, malte panelplater og tapet på vegger, folierte takplater i himling.
Innredning/utstyr: Gulvmontert WC. Servant med underskap og speil.
Gang:
Laminatparkett på gulv, malte panelplater på vegger og malt betongdekke i himling.
Stue:
Laminatparkett på gulv, malte panelplater og malt tapet på vegger, malt betongdekke i himling.
Kjøkken:
Vinylbelegg på gulv, tapet på vegger, flis over benk, malt betongdekke i himling.
Innredning: Kjøkkeninnredning med over- og underskap. Ventilator.
2 etasje.:
Gang:
Laminatparkett på gulv, malt panel på vegger og malt betongdekke i himling.
Soverom 1:
Laminatparkett på gulv, malt strie og malt panel på vegger, malt betongdekke i himling.
Soverom 2:
Laminatparkett på gulv, malte panelplater på vegger og malt betongdekke i himling.
Innredning: Garderobeskap.
Soverom 3:
Laminatparkett på gulv, malt tapet på vegger og malt betongdekke i himling.
Innredning: Garderobeskap.
Soverom 4:
Laminatparkett på gulv, malt tapet og malt panel på vegger, malt betongdekke i himling.
Bad:
Flis på gulv, flis på vegger, malt panel i himling.
Innredning/utstyr: Gulvmontert WC, dusjkabinett. Baderomsinnredning: Servant med underskap, overskap, speil og høyskap.
Fyring/Oppvarming:
Elektrisk oppvarming og vedovn.
Beliggenhet:
Solrik beliggenhet på Flatåsen med gangavstand til skoler, butikk, postkontor og offentlig kommunikasjon.
Adkomst:
Følg E6 sørover fra sentrum. Avkjøring mot Flatåsen over Bjørndalsbrua. Følg skilting mot Flatåsen. Nedre Flatås vei blir første vei på høyre side. Følg skilting mot 17 J. Det vil bli satt opp visningsskilt fra Eiendomsmegler 1 på annonserte fellesvisninger.
Parkering:
Felles oppstillingsplass. Det kan søkes om garasjeplass og oppstillingsplass med motorvarmer. Tildeles etter ansiennitet.
Overtakelse:
Etter nærmere avtale med selger.
Byggemåte:
Bygningen, som er et rekkehus oppført i 1977, er på 3 etasjer + loft.
Hovedkonstruksjonen er oppført i betong og tre.
Utvendige fasader i liggende trekledning.
Etasjeskillere i betong.
Saltak tekket med betongstein.
Vinduer med 2-lags isolerglass.
Lånevilkår:
Lånenummer:14618326, Den Norske Stats Husbank. Annuitetslån, 2 terminer pr. år.
Rentesats per 21.03.2012: 2,9%.
Antall terminer til innfrielse: 28
Saldo per 21.03.2012: 20 977 608.
Andel av saldo: 115 099.
Første termin/avdrag: 01.11.2007. (Siste termin 01.11.2025). Fastrente til 01.07.2012
Lånenummer:1461832610, Den Norske Stats Husbank. Annuitetslån, 2 terminer pr. år.
Rentesats per 21.03.2012: 2,9%.
Antall terminer til innfrielse: 40
Saldo per 21.03.2012: 23 054 392.
Andel av saldo: 126 493.
Første termin/avdrag: 01.11.2007. (Siste termin 01.11.2031). Fastrente til 01.07.2012
Lånenummer:146183264, Den Norske Stats Husbank. Annuitetslån, 2 terminer pr. år.
Rentesats per 21.03.2012: 3,7%.
Antall terminer til innfrielse: 41
Saldo per 21.03.2012: 11 966 665.
Andel av saldo: 65 658.
Første termin/avdrag: 01.11.2007. (Siste termin 01.05.2032). Fastrente til 01.09.2014
Lånenummer: 146319546, Den Norske Stats Husbank. Annuitetslån, 2 terminer pr. år.
Rentesats per 21.03.2012: 2,8%.
Antall terminer til innfrielse: 56
Saldo per 21.03.2012: 5 146 236.
Andel av saldo: 28 236.
Første termin/avdrag: 01.09.2010. (Siste termin 01.03.2040). Innfridd del av lån i handelsbanken.
Lånenummer:90517199728, Handelsbanken. Annuitetslån, 2 terminer pr. år.
Rentesats per 21.03.2012: 3,8%.
Antall terminer til innfrielse: 37
Saldo per 21.03.2012: 15 106 697.
Andel av saldo: 82 886.
Første termin/avdrag: 30.06.2010 (Siste termin 30.06.2030).
Energimerking:
Energimerke E og oppvarmingskarakter ORANSJE.
Kjøpsbetingelser:
Avtale om kjøp skjer i henhold til de avtalebetingelser som fremgår av komplett salgsprospekt.
Beskaffenhet
Regulering
Ta kontakt med megler for komplett informasjon
Nyttige lenker
Nærområdet
EiendomsMegler 1 Trondheim sentrum, Søndre gate
Annonsene kan være mangelfulle i forhold til lovpålagt opplysningsplikt. Før bindende avtale inngås oppfordres interessenter til å innhente komplett informasjon fra meglerforetaket, selger eller utleier.




















